TÉCNICAS DE CONSTRUÇÃO CIVIL E CONSTRUÇÃO DE EDIFÍCIOS
PREFÁCIO
Estas anotações de aulas, compiladas em forma de apostila, tem o intuito de facilitar a consulta e o
acompanhamento da disciplina de Técnicas das Construções Civis e Construções de Edifícios da Faculdade de Ciências Tecnológicas da P.U.C. Campinas e Faculdade de Engenharia de Sorocaba. Não houve pretensão de escrevê-la para ser publicada como livro, mas sim reuniram coletânea, conhecimentos extraídos de livros, catálogos, informativos, pesquisas, palestras, seminários, etc... constantes da bibliografia final.
Contém um bom número de exemplos e informações gerais úteis para que, ao projetar ou edificar, se esteja atento para não cometer os erros mais graves, que são encontrados em grande quantidade, principalmente nas habitações.
Espera-se que, de alguma forma, se contribua para acrescentar algo de novo aos não iniciados e se mostre a importância do assunto, para que nos futuros projetos, seja dedicado algum tempo, com cuidados necessários às técnicas das edificações, contribuindo para tornar melhor e mais amena a vida, o que constitui o principal objetivo da ciência.
JOSÉ ANTONIO DE MILITO
SUMÁRIO
1 ESTUDOS PRELIMINARES
1.1 Estudo com o cliente ... 2
1.2.Exame local do terreno ... 4
1.3 Limpeza do terreno ... 5
1.4 Levantamento topográfico de lotes urbanos ... 5
1.5 Nivelamento ... 7
2 TRABALHOS PRELIMINARES
2.1 Terraplenagem ... 15
2.2 Instalação da obra ... 17
2.3 Locação da obra ...20
2.4 Traçado ...22
2.4.1 Traçado de ângulos retos e paralelas ...22
2.4.2 Traçado de curvas ...23
2.4.3 Locação de estacas ...25
2.4.4 Locação da fôrma de fundação ...26
3 FUNDAÇÕES
3.1 Sondagem ...30
3.2 Escolha de fundações ...35
3.3 Fundação direta ou rasa ...37
3.4 Fundação indireta ou profunda ...43
3.5 Impermeabilização ...51
3.6 Drenos ...55
4 ALVENARIA
4.1 Elementos de alvenaria ...59
4.2 Elevação das paredes ...65
4.2.1 Paredes de tijolos maciços ...65
4.2.2 Paredes com blocos de concreto ...73
4.2.3 Paredes com tijolos furados e baianos ...74
4.3 Vãos em paredes de alvenaria ...78
4.4 Outros tipos de reforços em paredes de alvenaria ...78
4.5 Muros ...80
4.6 Argamassa - Preparo e aplicação ...83
5 FORROS
5.1 Forro de madeira ...89
5.2 Lajes pré-fabricada ...90
5.2.1 Generalidades sobre a Laje Pré-Fabricada "comum" ...90
5.2.2 Generalidades sobre laje treliça ...94
5.2.3 Montagem e execução de lajes pré-fabricadas ...99
6 COBERTURA
6.1 Estrutura de madeira ...105
6.1.4 Telhado pontaletado ...115
6.2 Cobertura ...118
6.3 Condutores ...124
6.4 Dimensionamento das calhas ...127
6.5 Formas dos telhados ...129
6.6 Regra geral para desenho das linhas dos telhados ...133
6.6.1 Exercícios para desenho de telhados ...134
7 ESQUADRIAS
7.1 Esquadrias de madeira ...137
7.1.1 Portas ...137
7.1.3 Janelas ...142
7.1.4 Tipos de janelas de madeira ...143
7.2 Esquadrias de metal ...147
7.3 Representação gráfica ...151
7.4 Dimensões comerciais ...154
8 REVESTIMENTO
8.1 Argamassas ...159
8.2 Gesso ...165
8.3 Azulejos ...167
8.4 Pastilhas ...170
8.5 Revestimento de pisos ...170
8.5.1 Preparo do piso ...170
8.5.2 Piso cimentado ...172
8.5.3 Pisos de madeira ...172
8.5.4 Pisos cerâmicos ...176
8.5.5 Porcelanato ...181
8.5.6 Carpete ...181
8.5.7 Granilite ...182
8.5.8 Pedras decorativas ...182
8.5.9 Pedras brutas ...184
8.5.10 Pisos vinílicos ...186
8.5.11 Pisos de borracha ...187
8.5.12 Pisos laminados ...189
8.5.13 Piso de Concreto ...190
9 MANIFESTAÇÕES, ASPECTOS, CAUSAS PROVÁVEIS
E REPAROS EM REVESTIMENTO
9.1 Análise das causas ...195
9.1.1 Causas decorrentes da qualidade dos materiais utilizados ...195
9.1.2 Causas decorrentes do traço da argamassa ...197
9.1.3 Causa decorrente do modo de aplicação do revestimento ...198
9.1.4 Causa decorrente do tipo de pintura ...200
9.1.5 Causas externas ao revestimento ...200
9.2 Reparos ...203
10 TINTAS E VIDROS
10 1 Seus tipos ...207
10.1.2 Sua qualidade ...208
10.1.3 Preparação da superfície ...209
10.1.4 Esquema de pintura ...209
10.1.5 Cuidado na aplicação das tintas ...211
10.1.6 Condições ambientais durante a aplicação ...214
10.1.7 Material de trabalho ...215
10.1.8 Rendimentos ...217
10.2 Vidro ...217
10.2.1 Vidro temperado ...218
11 DETALHES DE OBRAS COM CONCRETO ARMADO
11.1 Materiais empregados em concreto armado ...223
11.2 Sistemas de fôrmas e escoramentos convencionais ...229
11.3 Recomendações quanto ao manuseio e colocação das barras de ...245
aço
11.4 Como se prepara em bom concreto ...248
11.4.4 Aplicação do concreto em estruturas ...253
11.4.6 Cura ...259
11.4.7 Desforma ...260
11.4.8 Consertos de falhas ...260
12 ESCADAS
12.1 Condições gerais, normas e terminologia ...265
12.2 Cálculos e desenhos práticos de escadas ...270
12.3 Escadas com seções em curva ...273
12.4 Escadas de segurança ...274
12.5 Como executar as escadas na obra ...275
ANEXOS
Ferramentas ...279
EPI - Equipamentos de proteção individual ...281
Pregos na escala 1:1 ...282
Tabelas para obras em concreto armado ...285
Tabelas de pesos específicos de materiais usuais ...288
Tabelas para caibros e terças ...292
Referências Bibliográficas ...295
TÉCNICAS DE CONSTRUÇÃO CIVIL E CONSTRUÇÃO DE EDIFÍCIOS
1 - PROJETO - ESTUDOS PRELIMINARES
APÓS ESTUDAR ESTE CAPÍTULO; VOCÊ DEVERÁ SER CAPAZ DE:
• Elaborar um bom projeto arquitetónico;
• Utilizando métodos simples, definir a planimetria e a altimetria de um terreno;
• Analisar a topografia de um terreno; • Utilizar melhor a topografia dos terrenos.
1.1 - ESTUDO COM O CLIENTE
Sabemos que para se executar qualquer projeto devemos antes de mais nada, realizar uma entrevista com o interessado em executar qualquer tipo de construção. No nosso caso, será o cliente, juntamente com os seus familiares, pois vamos nos ater a pequenas obras (residências unifamiliares).
Devemos considerar que geralmente o cliente é praticamente leigo, cabendo então ao profissional orientar esta entrevista, para obter o maior número possível de dados.
Para nos auxiliar na objetividade da entrevista inicial com o cliente, damos abaixo um possível modelo de questionário (Tabela 1,.1), que tem a função de orientar evitando esquecimentos.
Tabela 1.1 - Modelo de questionário
1.2 - EXAME LOCAL DO TERRENO
Sem sabermos as características do terreno, é quase impossível executar-se um bom projeto.
As características ideais de um terreno para um projeto econômico são:
a) Não existir grandes movimentações de terra para a construção;
b) Ter dimensões tais que permita projeto e construção de boa residência; c) Ser seco;
d) Ser plano ou pouco inclinado para a rua;
e) Ser resistente para suportar bem a construção; f ) Ter facilidade de acesso;
g) Terrenos localizados nas áreas mais altas dos loteamentos;
h) Escolher terrenos em áreas não sujeitas a erosão;
i) Evitar terrenos que foram aterrados sobre materiais sujeitos a decomposição orgânica.
Mas como nem sempre estas características são encontradas nos lotes urbanos, devemos levá-las em consideração quando da visita ao lote, levantando os seguintes pontos:
a) Deve-se identificar no local o verdadeiro lote adquirido segundo a escritura, colhendo-se todas as informações necessárias;
b) Verificar junto a Prefeitura da Municipalidade, se o loteamento onde se situa o terreno, foi devidamente aprovado e está liberado para construção;
c) Números das casa vizinhas ou mais próximas do lote;
d) Situação do lote dentro da quadra, medindo-se a distância da esquina ou construção mais próxima.
e) Com bússola de mão, confirmar a posição da linha N-S.
f) Verificar se existem benfeitorias.(água, esgoto, energia)
g) Sendo o terreno com inclinação acentuada, em declive, verificar se existe viela-sanitária vizinha do lote, em uma das divisas laterais ou fundo;
h) Verificar se passa perto do lote, linha de alta tensão, posição de postes, bueiros, etc...
i) Verificar se existe faixa non edificandi .( de não construção)
j) Verificar a largura da rua e passeio.
Obs.: Todos esses dados poderão ser acrescidos no questionário anterior.
Geralmente, estes dados colhidos na visita ao terreno não são os suficientes, e na maioria das vezes, devemos pedir previamente que se execute uma limpeza do terreno e um levantamento plani-altimétrico.
1.3 - LIMPEZA DO TERRENO
Temos algumas modalidades para limpeza do terreno, que devemos levar em consideração e sabermos defini-las:
1.3.1 - Carpir - Quando a vegetação é rasteira e com pequenos arbustos, usando para tal, unicamente a enxada.
1.3.2 - Roçar - Quando além da vegetação rasteira, houver árvores de pequeno porte, que poderão ser cortadas com foice.
1.3.3 - Destocar - Quando houver árvores de grande porte, necessitando desgalhar, cortar ou serrar o tronco e remover parte da raiz. Este serviço pode ser feito com máquina ou manualmente.
Os serviços serão executados de modo a não deixar raízes ou tocos de árvore que possam dificultar os trabalhos. Todo material vegetal, bem como o entulho terão que ser removidos do canteiro de obras.
1.4 - LEVANTAMENTO TOPOGRÁFICO DE LOTES URBANOS
O levantamento topográfico é geralmente apresentado através de desenhos de planta com curavas de nível e de perfis.Deve retratar a conformação da superfície do terreno, bem como as dimensões dos lotes, com a precisão necessária e suficiente proporcionando dados confiáveis que, interpretados e manipulados corretamente, podem contribuir no desenvolvimento do projeto arquitetônico e de implantação (Pinto Jr.et al, 2001)
1.4.1 - MEDIDAS DO TERRENO (LEVANTAMENTO PLANIMÉTRICO)
Executada a limpeza do terreno e considerando que os projetos serão elaborados para um determinado terreno, é necessário que se tenha as medidas corretas do lote, pois nem sempre as medidas indicadas na escritura conferem com as medidas reais.
Apesar de não pretendermos invadir o campo da topografia, vamos mostrar em alguns desenhos, os processos mais rápidos para medir um lote urbano.
Os terrenos urbanos, são geralmente de pequena área possibilitando, portando, a sua medição sem aparelhos ou processos próprios da topografia desde que se tenha uma referência (casa vizinha, esquina, piquetes etc). No entanto, casos mais complexos, sem referência, necessitamos de um levantamento executado por profissional de topografia.
a) Lote regular
Geralmente em forma de retângulo, bastando portanto medir os seus "quatro" lados, e usar o valor médio, caso as medidas encontradas forem diferentes as da escritura.(Figura 1.1).Figura 1.1-Lote regular
Obs. Para verificar se o lote está no esquadro, devemos medir as diagonais que deverão ser iguais.b) Lote irregular com pouco fundo
Medir os quatro lados e as duas diagonais (Figura 1.2).Figura 1.2-Lote irregular com pouco fundo
c) Lote irregular com muita profundidade
Neste caso, a medição da diagonal se torna imperfeita devido a grande distância Convém utilizar um ponto intermediário "A" diminuindo assim o comprimento da diagonal (Figura 1.3).Figura 1.3-Lote irregular com muita profundidade
d) Lote com um ou mais limites em curva
Para se levantar o trecho em curva, o mais preciso será a medição da corda e da flecha (central).
Nestes casos devemos demarcar as divisas retas até encontrarmos os pontos do início e fim da corda. Medir a corda e a flecha no local.
E com o auxílio de um desenho (realizado no escritório) construir a curva a partir da determinação do centro da mesma utilizando a flecha e a corda (Figura 1.4).
c = corda f = flecha Construção da curva
Figura 1.4-Lote com setor curvo
1.5 - NIVELAMENTO (LEVANTAMENTO ALTIMÉTRICO)
É de grande importância para elaborarmos um projeto racional, que sejam aproveitadas as diferenças de nível do lote.
Podemos identificar a topografia do lote através das curvas de níveis.
A curva de nível é uma linha constituída por pontos todos de uma mesma cota ou altitude de uma superfície qualquer. Quando relacionadas a outras curvas de nível permite comparar as altitudes e se projetadas sobre um plano horizontal podem apresentar as ondulações, depressões, inclinações etc. de uma superfície (Figura 1.5)
Podemos observar na Figura 1.5 que quando mais inclinada for a superfície do terreno, as distâncias entre as curvas serão menores, menos inclinada as distâncias serão maiores d1 < d2.
Figura 1.5-Representação de curva de nível (Pinto Jr.et al, 2001)
As curvas de níveis são elaboradas utilizando aparelhos topográficos que nos fornecem os níveis, os angulos, as dimensões de um terreno ou área.Este levantamento não é muito preciso, quando utilizamos métodos simples para a sua execução (descritos nos itens 1.5.1; 1.5.2; 1.5.3), mas é o suficiente para construção residencial unifamiliar, que geralmente utilizam pouco terreno. Caso seja necessário algo mais rigoroso, devemos fazer um levantamento com aparelhos recorrendo a um topógrafo.
Geralmente é suficiente tirar um perfil longitudinal e um transversal do terreno, mas nada nos impede de tirarmos mais, caso necessário.
Nos métodos descritos abaixo se usa basicamente balizas com distância uma da outra no máximo de 5,0m, ou de acordo com a inclinação do terreno. Terrenos muito íngremes a distância deverá ser menor e terrenos com pouca inclinação podemos utilizar as balizas na distância de 5,0 em 5,0m.
Alguns métodos para levantarmos o perfil do terreno:
a) Com o nível e Abney ( clinômetro)
b) Com o nível de mão
c) Com o nível de mangueira
1.5.1) Com uso do clinômetro (Nível de Abney)
Materiais: - clinômetro
- 2 balizas - trena
Figura 1.6-Clinômetro ou Nível de Abney (Borges, 1972)
Coloca-se o clinômetro (Figura 1.8), na 1ª baliza a uma altura de 1,50m (ponto A). Inclina-se o tubo do clinômetro para avistarmos o ponto B. Pela ócula se vê a bolha e giramos o parafuso até colocá-la na vertical e produzirá sobre a graduação e leitura do ângulo α.Resta medir a distância horizontal "d" ou a inclinada "m".
Figura 1.7-Clinômetro inclinado proporcionando a leitura (Borges, 1972)
Figura 1.8-Realização das medidas utilizando o Clinômetro (Borges, 1972)
1.5.2) Nível de bolha
Materiais: - Nível de bolha; - 2 balizas;
- régua - trena.Figura 1.9 Utilização do nível de bolha
1.5.3) Nível de mangueira
O método da mangueira é um dos mais utilizados. Fundamenta-se no princípio dos vasos comunicantes, que nos fornece o nível. Este é o método que os pedreiros utilizam para nivelar a obra toda, desde a marcação da obra até o nivelamento dos pisos, batentes, azulejos etc...
A mangueira deve ter pequeno diâmetro, parede espessa para evitar dobras e ser transparente.
Para uma boa marcação ela deve estar posicionada entre as balizas, sem dobras ou bolhas no seu interior. A água deve ser colocada lentamente para evitar a formação de bolhas.
Materiais: - Mangueira - 2 balizas - Trena
Figura 1.10 - Processo da mangueira de nível
Para facilitar a medição, podemos partir com o nível d'água em uma determinada altura "h" em uma das balizas, que será descontada na medida encontrada na segunda baliza. Fazemos isso para não precisarmos colocar o nível d'água direto no ponto zero (próximo do terreno), o que dificultaria a leitura e não nos forneceria uma boa medição.Exemplos de medição com mangueira:
• Em terrenos com aclive
• Em terrenos com declive
a) Terreno em aclive:
Portanto: h1 = H -h ; h2 = H'- h' ......
Htot = h1 + h. 2 + hn
Figura 1.11 - Levantamento altimétrico em terreno com aclive
b) Terreno em declive:
Portanto: h1 = H -h ; h2 = H'- h' ......
Htot = h1 +. h2 + hn
Figura 1.12 - Levantamento altimétrico em terreno com declive
ANOTAÇÕES
1 - Devemos ter o cuidado de não deixar nenhuma bolha de ar dentro da mangueira, para não dar erro nas medições (Figura 1.13).2 - A mangueira deve ser transparente, e de pequeno diâmetro, da ordem de ∅ 1/4" ou 5/16" para obter maior sensibilidade.
3 - A espessura da parede da mangueira deve ser espessa para evitar dobras
Figura 1.13 - Posição da água quando não existe bolhas
Obs: Quando existe bolhas de ar a água da mangueira não fica nivelada como indicado na Figura 1.13TÉCNICAS DE CONSTRUÇÃO CIVIL E CONSTRUÇÃO DE EDIFÍCIOS
2 - TRABALHOS PRELIMINARES
APÓS ESTUDAR ESTE CAPÍTULO; VOCÊ DEVERÁ SER CAPAZ DE:
• Calcular os volumes de corte e aterro;
• Realizar as compensações de volume;
• Analisar e executar um canteiro de obras; • Realizar ou conferir a marcação de uma obra.
2.1 - TERRAPLENAGEM
Efetuado o levantamento planialtimétrico, temos condições de elaborar os projetos e iniciar sua execução.
Começamos pelo acerto da topografia do terreno, de acordo com o projeto de implantação e o projeto executivo.
Podemos executar, conforme o levantamento altimétrico, cortes, aterros, ou ambos:
2.1.1 - Cortes: No caso de cortes, deverá ser adotado um volume de solo correspondente à área da seção multiplicada pela altura média, acrescentando-se um percentual de empolamento (Figura 2.1). O empolamento é o aumento de volume de um material, quando removido de seu estado natural e é expresso como uma porcentagem do volume no corte. Relacionamos na Tabela 2.1 alguns empolamentos.
Tabela 2.1 - Relação de Empolamentos
| materiais | % |
| Argila natural | 22 |
| Argila escavada, seca | 23 |
| Argila escavada, úmida | 25 |
| Argila e cascalho seco | 41 |
| Argila e cascalho úmido | 11 |
| Rocha decomposta 75% rocha e 25% terra 50% rocha e 50% terra 25% rocha e 75% terra | 43 33 25 |
| Terra natural seca | 25 |
| Terra natural úmida | 27 |
| Areia solta, seca | 12 |
| Areia úmida | 12 |
| Areia molhada | 12 |
| Solo superficial | 43 |
OBS.: Quando não se conhece o tipo de solo, podemos considerar o empolamento entre 30 a 40%
Vc = Ab . hm . 1,4
Sendo Ab = área de projeção do corte hm= altura média
Figura 2.1 - Corte em terreno
O corte é facilitado quando não se tem construções vizinhas, podendo faze-lo maior. Mas quando efetuado nas proximidades de edificações ou vias públicas, devemos empregar métodos que evitem ocorrências, como: ruptura do terreno, descompressão do terreno de fundação ou do terreno pela água.
No corte os materiais são classificados em:
- materiais de 1ªcategoria: terra em geral, piçarra ou argila, rochas em decomposição e seixos com diâmetro máximo de 15cm.
- materiais de 2ª categoria: rocha com resistência à penetração mecânica inferior ao do granito.
- Materiais de 3ª categoria: rochas com resistência à penetração mecânica igual ou superior ao granito.
2.1.2 - Aterros e reaterros: No caso de aterros, deverá ser adotado um volume de solo correspondente a área da seção multiplicada pela altura média, acrescentando em torno de 30% devido a contração considerada que o solo sofrerá, quando compactado (Figura 2.2).
Va = Ab . hm . 1,3
Sendo Ab = área de projeção do corte hm= altura média
Figura 2.2 - Aterro em terreno
Para os aterros as superfícies deverão ser previamente limpas, sem vegetação nem entulhos. O material escolhido para os aterros e reaterros devem ser de preferência solos arenosos, sem detritos, pedras ou entulhos. Devem ser realizadas camadas sucessivas de no máximo 30 cm, devidamente molhadas e apiloadas manual ou mecanicamente.2.2 - INSTALAÇÃO DE CANTEIRO DE SERVIÇOS - OU CANTEIRO DE OBRAS
Após o terreno limpo e com o movimento de terra executado, O canteiro é preparado de acordo com as necessidades de cada obra. Deverá ser localizado em áreas onde não atrapalhem a circulação de operários veículos e a locação das obras.
No mínimo devemos fazer um barracão de madeira, chapas compensadas, ou ainda containers metálicos que são facilmente transportados para as obras com o auxílio de um caminhão munck.
Nesse barracão serão depositados os materiais (cimento, cal, etc...) e ferramentas, que serão utilizados durante a execução dos serviços.
Áreas para areia, pedras, tijolos, madeiras, aço, etc...deverão estar próximas ao ponto de utilização, tudo dependendo do vulto da obra, sendo que nela também poderão ser construídos escritórios, alojamento para operários, refeitório e instalação sanitária, bem como distribuição de máquinas, se houver.
Em zonas urbanas de movimento de pedestres, deve ser feito um tapume, "encaixotamento" do prédio, com tábuas alternadas ou chapas compensadas, para evitar que materiais caiam na rua.
O dimensionamento do canteiro compreende o estudo geral do volume da obra, o tempo de obra e a distância de centros urbanos. Este estudo pode ser dividido como segue:
• Área disponível para as instalações;
• Empresas empreiteiras previstas;
• Máquinas e equipamentos necessários;
• Serviços a serem executados;
• Materiais a serem utilizados;
• Prazos a serem atendidos.
Deverá ser providenciada a ligação de água e construído o abrigo para o cavalete e respectivo hidrômetro.
Ouso da água é intensivo para preparar materiais no canteiro. Ela serve também para a higiene dos trabalhadores e deve ser disponível em abundância.
Não existindo água, deve-se providenciar abertura de poço de água, com os seguintes cuidados:
a) - que seja o mais distante possível dos alicerces;
b) - o mais distante possível de fossas sépticas e de poços negro, isto é, nunca a menos de 15 metros dos mesmos;
c) - o local deve ser de pouco trânsito, ou seja, no fundo da obra, deixando-se a frente para construção posterior da fossa séptica.
Deve-se providenciar a ligação de energia. As instalações elétricas nos canteiros de obras são realizadas para ligar os equipamentos e iluminar o local da construção, sendo desfeitas após o término dos serviços. Mas precisam ser feitas de forma correta, para que sejam seguras.
Antes do início da obra, é preciso saber que tipo de fio ou cabo deve ser usado, onde ficarão os quadros de força, quantas máquinas serão utilizadas e, ainda, quais as ampliações que serão feitas nas instalações elétricas.
2.2.1 - Exemplo de barracão para obra de pequeno porte
Utilizando chapas compensadas, pontalete de eucalipto ou caibros 8x8, e telhas de fibrocimento podemos montar um barracão de pequenas dimensões, desmontável para utilizar em obras, como segue (figura 2.3):
Figura 2.3 - Barracão para pequenas obras
Aproveitamento das chapas compensadas:Tabela 2.2 - Relação de materiais para execução de barracão para pequenas obras
| Quant. | un | Descrição |
| 03 | un | Pontaletes ou caibros de 3,00m |
| 03 | un | Pontaletes ou caibros de 3,50m |
| 16 | pç | Chapas de compensado 6,0 ou 10,0mm |
| 11 | pç | Telhas fibrocimento 4,0mm de 0,50x2,44 |
| 11 | pç | Telhas fibrocimento 4,0mm de 0,50x1,22 |
| 01 | pç | Viga 6x12 de 5,0m |
| 60 | m | Sarrafo de 7,0cm |
| 01 | pç | Cadeado médio |
| 0,5 | m | Corrente |
| 03 | pç | Dobradiças |
| 0,5 | kg | Prego 15x15 |
| 0,3 | kg | Prego 18x27 |
2.3 - LOCAÇÃO DA OBRA
Podemos efetuar a locação da obra, nos casos de obras de pequeno porte, com métodos simples, sem o auxílio de aparelhos, que nos garantam uma certa precisão. No entanto, os métodos descritos abaixo, em caso de obras de grande área, poderão acumular erros, sendo conveniente, portanto, o auxílio da topografia.
Os métodos mais utilizados são:
• Processo dos cavaletes.
• Processo da tábua corrida (gabarito)
2.3.1 - Processo dos cavaletes
Os alinhamentos são fixados por pregos cravados em cavaletes. Estes são constituídos de duas estacas cravadas no solo e uma travessa pregada sobre elas (Figura 2.4).Devemos sempre que possível, evitar esse processo, pois não nos oferece grande segurança devido ao seu fácil deslocamento com batidas de carrinhos de mão, tropeços, etc...
Figura 2.4 - Cavalete
Após distribuídos os cavaletes, previamente alinhados conforme o projeto, linhas são esticadas para determinar o alinhamento do alicerce e em seguida inicia-se a abertura das valas (Figura 2.5)
Figura 2.5 - Processo dos cavaletes
2.3.2 - Processo da tábua corrida (gabarito)
Este método se executa cravando-se no solo cerca de 50cm, pontaletes de pinho de (3" x 3" ou 3" x 4") ou varas de eucalipto a uma distância entre si de 1,50m e a 1,20m das paredes da futura construção, que posteriormente poderão ser utilizadas para andaimes.Nos pontaletes serão pregadas tábuas na volta toda da construção (geralmente de 15 ou 20cm), em nível e aproximadamente 1,00m do piso (Figura 2.7). Pregos fincados na tábuas com distâncias entre si iguais às interdistâncias entre os eixos da construção, todos identificados com letras e algarismos respectivos pintados na face vertical interna das tábuas, determinam os alinhamentos (Figura 2.6).
Nos pregos são amarrados e esticados linhas ou arames, cada qual de um nome interligado ao de mesmo nome da tábua oposta. Em cada linha ou arame está materializado um eixo da construção. Este processo é o ideal.
Figura 2.6 - Marcação sobre gabarito
Figura 2.7 - Processo da Tábua Corrida - Gabarito
Como podemos observar o processo de "Tábua Corrida" é mais seguro e as marcações nele efetuadas permanecem por muito tempo, possibilitando a conferência durante o andamento das obras. Não obstante, para auxiliar este processo, podemos utilizar o processo dos cavaletes.2.4 - TRAÇADO
Tendo definido o método para a marcação da obra, devemos transferir as medidas, retiradas das plantas para o terreno.
Quando a obra requer um grau de precisão, que não podemos realizar com métodos simples devemos utilizar aparelhos topográficos. Isto fica a cargo da disciplina de Topografia, cabendo a nós, para pequenas obras, saber locá-las com métodos simplificados.
2.4.1 - Traçado de ângulos retos e paralelas
É indispensável saber traçar perpendiculares sobre o terreno, pois é através delas que marcamos os alinhamentos das paredes externas, da construção, determinando assim o esquadro. Isto serve de referência para locar todas as demais paredes.
Um método simples para isso, consiste em formar um triângulo através das linhas dispostas perpendicularmente, cujos lados meçam 3 - 4 e 5m (triângulo de Pitágoras), fazendo coincidir o lado do ângulo reto com o alinhamento da base (Figura 2.8).
Figura 2.8 - Traçado de ângulos retos e paralelas sobre o gabarito
Outro método consiste na utilização de um esquadro metálico (geralmente 0,60x0,80x1,00m) para verificar o ângulo reto (Figura 2.9).
O esquadro deve ficar tangenciando as linhas sem as tocá-las, quando as linhas ficarem paralelas ao esquadro garantimos o ângulo reto.
Figura 2.9 - Traçado de ângulos retos e paralelas sobre o gabarito utilizando esquadro metálico
2.4.2 - Traçado de curvas
A partir do cálculo do raio da curva (que pode ser feito previamente no escritório) achamos o centro e, com o auxílio de um arame ou linha, traçamos a curva no terreno (como se fosse um compasso) Figura 2.10.
Figura 2.10 - Traçado de curva de pequeno raio
Este método nos fornece uma boa precisão, quando temos pequenos raios. No caso de grandes curvas, podemos utilizar um método aproximado, chamado método das quatro partes. Consiste em aplicar, sucessivamente, sobre a corda obtida com a flecha precedente, a quarta parte deste último valor (Figura 2.11). Encontram-se assim, por aproximações sucessivas, todos os pontos da curva circular (G.Baud, 1976)Figura 2.11 - Traçado de curva pelo método das quatro partes (G.Baud,1976)
r
sendo: r = raio da curva
t = tangente à curva (na intercessão da curva com a reta)
Portanto, com o auxílio do gabarito, inicialmente devemos locar as fundações profundas do tipo estacas, tubulões ou fundações que necessitam de equipamentos mecânicos para a sua execução, caso contrário podemos iniciar a locação das obras pelo projeto de forma da fundação ("paredes").
2.4.3 - Locação de estacas
Serão feitas inicialmente a locações de estacas, visto que qualquer marcação das "paredes", irá ser desmarcada pelo deslocamento de equipamentos mecânicos. O posicionamento das estacas é feito conforme a planta de locação de estacas, fornecida pelo cálculo estrutural (Figura 2.12).
A locação das estacas é definida pelo cruzamento das linhas fixadas por pregos no gabarito. Transfere-se esta interseção ao terreno, através de um prumo de centro (Figura 13).
No ponto marcado pelo prumo, crava-se uma estaca de madeira (piquete), geralmente de peroba, com dimensões 2,5x2,5x15,0cm.
Figura 2.12 - Projeto de locação de estacas
Utilizando o gabarito, podemos passar todos os pontos das estacas para o terreno, utilizando como já descrito a linha o prumo de centro e estacas de madeira:Figura 2.13 - Locação da estaca
Após a execução das estacas e com a saída dos equipamentos e limpeza do local podemos efetuar, com o auxílio do projeto estrutural de formas a locação das "paredes".
2.4.4 - Locação da Forma de Fundação "paredes"
Devemos locar a obra utilizando os eixos, para evitarmos o acúmulo de erros provenientes das variações de espessuras das paredes (Figura 2.14).
Em obras de pequeno porte ainda é usual o pedreiro marcar a construção utilizando as espessuras das paredes. No projeto de arquitetura adotamos as paredes externas com 25cm e as internas com 15cm, na realidade as paredes externas giram em torno de 26 a 27cm e as internas 14 a 14,5cm difícil de serem desenhadas a pena nas escalas usuais de desenho 1:100 ou 1:50, por isso da adoção de medidas arredondadas que acumulam erros. Hoje com o uso de softwares específicos ficou bem mais fácil.
Figura 2.14 - Projeto de forma locadas pelo eixo
ANOTAÇÕES
1 - Nos cálculos dos volumes de corte e aterro, os valores são mais precisos se o número de seções for maior.2 - Na execução do gabarito, as tábuas devem ser pregadas em nível.
3 - A locação da obra deve , de preferência, ser efetuada pelo engenheiro ou conferido pelo mesmo.
4 - A marcação pelo eixo, além de mais precisa, facilita a conferência pelo engenheiro.
5 – Verificar os afastamentos da obra, em relação às divisas do terreno.
6 – Constatar no terreno a existência ou não de obras subterrâneas ( galerias de águas pluviais, ou redes de esgoto, elétrica ) e suas implicações.
7 – Verificar se o terreno em relação as ruas está sujeito a inundação ou necessita de drenagem para águas pluviais.
8 – Confirmar a perfeita locação da obra no que se refere aos eixos das paredes, pilares, sapatas, blocos e estacas.
• Noções de segurança para movimentação de terra:
1 - Depositar os materiais de escavação a uma distância superior à metade da profundidade do corte.
2 - Os taludes instáveis com mais de 1,30m de profundidade devem ser estabilizados com escoramentos.
3 - Estudo da fundação das edificações vizinhas e escoramentos dos taludes.
4 - Sinalizar os locais de trabalho com placas indicativas.
5 - Somente deve ser permitido o acesso à obra de terraplenagem de pessoas autorizadas.
6 - A pressão das construções vizinhas deve ser contida por meio de escoramento.
• Instalações elétricas em Canteiro de obras:
1 - Os quadros de distribuição devem ser de preferência metálicos e devem ficar fechados para que os operários não encostem nas partes energizadas.
2 - Os quadros de distribuição devem ficar em locais bem visíveis, sinalizados e de fácil acesso mas longe da passagem de pessoas, materiais e equipamentos.
3 - As chaves elétricas do tipo faca devem ser blindadas e fechar para cima. Não devem ser usadas para ligar diretamente os equipamentos.
4 - Os fios e cabos devem ser estendidos em lugares que não atrapalhem a passagem de pessoas, máquinas e materiais.
5 - Os fios e cabos estendidos em locais de passagem, devem estar protegidos por calhas de madeira, canaletas ou eletrodutos. Podem ser colocados a uma certa altura que não deixe as pessoas e máquinas encostarem neles.
6 - Os fios e cabos devem ser fixados em isoladores. As emendas devem ficar firmes e bem isoladas, não deixando partes descobertas.
TÉCNICAS DE CONSTRUÇÃO CIVIL E CONSTRUÇÃO DE EDIFÍCIOS
3 - FUNDAÇÕES CONVENCIONAIS
APÓS ESTUDAR ESTE CAPÍTULO; VOCÊ DEVERÁ SER CAPAZ DE:
• Determinar o número de furos de sondagem, bem como a sua localização;
• Analisar um perfil de sondagem;
• Saber escolher a fundação ideal para uma determinada edificação;
• Especificar corretamente o tipo de impermeabilização a ser utilizada em alicerce;
• Especificar o tipo de dreno e a sua localização.
3.1 - SONDAGENS
Não querendo invadir o campo da Engenharia de Fundações, damos nestas anotações de aulas, um pequeno enfoque sobre fundações mais utilizadas em residências unifamiliares térreas e sobrados, ficando a cargo da Cadeira de Fundações aprofundar-se no assunto.
É sempre aconselhável a execução de sondagens, no sentido de reconhecer o subsolo e escolher a fundação adequada, fazendo com isso, o barateamento das fundações. As sondagens representam, em média, apenas 0,05 à 0,005% do custo total da obra.
Os requisitos técnicos a serem preenchidos pela sondagem do subsolo são os seguintes (Godoy, 1971):
• Determinação dos tipos de solo que ocorrem, no subsolo, até a profundidade de interesse do projeto;
• Determinação das condições de compacidade (areias) ou consistência (argilas) em que ocorrem os diversos tipos de solo;
• Determinação da espessura das camadas constituintes do subsolo e avaliação da orientação dos planos (superfícies) que as separam;
• Informação completa sobre a ocorrência de água no subsolo.
3.1.1 - Execução da sondagem
A sondagem é realizada contando o número de golpes necessários à cravação de parte de um amostrador no solo realizada pela queda livre de um martelo de massa e altura de queda padronizadas. A resistência à penetração dinâmica no solo medida é denominada S.P.T. - Standart Penetration Test.A execução de uma sondagem é um processo repetitivo, que consiste em abertura do furo, ensaio de penetração e amostragem a cada metro de solo sondado.
Desta forma,, em cada metro faz-se, inicialmente, a abertura do furo com um comprimento de 55cm, e o restante dos 45cm para a realização do ensaio de penetração. (Figura 3.1)
As fases de ensaio e de amostragem são realizadas simultaneamente, utilizando um tripé, um martelo de 65kg, uma haste e o amostrador. (Figura 3.2) (Godoy, 1971)
Figura 3.1 - Esquema de sondagem
Figura 3.2 - Equipamento de sondagem à percussão
3.1.2 - Resistência à penetração
O amostrador é cravado 45cm no solo, sendo anotado o número de golpes necessários à penetração de cada 15 cm.O Índice de Resistência à Penetração é determinado através do número de golpes do peso padrão, caindo de uma altura de 75cm, considerando-se o número necessário à penetração dos últimos 30 cm do amostrador. Conhecido como S.P.T.
A Tabela 3.1 apresenta correlações empíricas, que permite uma estimativa da compacidade das areias e da consistência das argilas, a partir da resistência à penetração medida nas sondagens. (Godoy, 1971)
Tabela 3.1 - Compacidade das areias e consistência das argilas "in situ" (Godoy, 1971)
| COMPACIDADES E CONSISTÊNCIAS SEGUNDO A RESISTÊNCIA À PENETRAÇÃO - S.P.T. | ||
| SOLO | DENOMINAÇÃO | No DE GOLPES |
| Compacidade de areias e siltes arenosos | Fofa | ≤ 4 |
| Pouco Compacta | 5 - 8 | |
| Med. Compacta | 9 - 18 | |
| Compacta | 19 - 41 | |
| Muito Compacta | > 41 | |
| Consistência de argilas e siltes argilosos | Muito Mole | < 2 |
| Mole | 2 - 5 | |
| Média | 6 - 10 | |
| Rija | 11 - 19 | |
| Dura | > 19 |
3.1.3 - Determinação do número de sondagens a executar
Os pontos de sondagem devem ser criteriosamente distribuídos na área em estudo, e devem ter profundidade que inclua todas as camadas do subsolo que possam influir, significativamente, no comportamento da fundação.No caso de fundações para edifícios, o número mínimo de pontos de sondagens a realizar é função da área a ser construída (Tabela 3.2).
Tabela 3.2 - Número mínimo de pontos em função da área construída (NBR8036/1983)
| ÁREA CONSTRUÍDA | Nº DE SONDAGENS |
| de 200m² até 1,200m² | 1 sondagem para cada 200m² |
| de 1,200m² até 2,400m² | 1 sondagem para cada 400m² que exceder a 1,200m² |
| acima de 2,400m² | Será fixada a critério, dependendo do plano de construção. |
:
• 2 furos para terreno até 200m²
• 3 furos para terreno entre 200 a 400m², ou
• No mínimo, três furos para determinação da disposição e espessura das camadas.
Os furos de sondagens deverão ser distribuídos em planta, de maneira a cobrir toda a área em estudo. A Figura 3.3 apresenta alguns exemplos de locação de sondagens em terrenos urbanos.
A distância entre os furos de sondagem deve ser de 15 a 25m, evitando que fiquem numa mesma reta e de preferência, próximos aos limites da área em estudo.
Figura 3.3 - Exemplo de locação de sondagens em pequenos lotes
Em relação a profundidade das sondagens, existem alguns métodos para determiná-las:• pelo critério do bulbo de pressão
• pelas recomendações da norma brasileira
Mas, um técnico experimentado pode fixar a profundidade a ser atingida, durante a execução da sondagem, pelo exame das amostras recuperadas e pelo número de golpes.
Em geral, quatro índices elevados de resistência à penetração, em material de boa qualidade, permitem a interrupção do furo.
Nos terrenos argilosos, a sondagem deverá ultrapassar todas as camadas.
Nos terrenos arenosos, as sondagens raramente necessitam ultrapassar os 15 a 20m. Obs.: profundidade mínima 8,0m. Essa profundidade pode ser corrigida, à medida que os primeiros resultados forem conhecidos.
Poderá ocorrer obstrução nos furos de sondagens do tipo matacões (rochas dispersas no subsolo) confundindo com um embasamento rochoso. Neste caso a verificação é realizada executando-se uma nova sondagem a 3,0m, em planta, da anterior. Se for confirmada a ocorrência de obstrução na mesma profundidade, a sondagem deverá ser novamente deslocada 3,0m numa direção ortogonal ao primeiro deslocamento. Caso necessário, a sondagem na rocha é realizada com equipamento de sondagem rotativo.
3.1.4 - Perfil de Sondagem
Os dados obtidos em uma investigação do subsolo, são normalmente apresentados na forma de um perfil para cada furo de sondagem.A posição das sondagens é amarrada topograficamente e apresentada numa planta de locação bem como o nível da boca do furo que é amarrado a uma referência de nível RN bem definido ( Figura 3.4)
No perfil do subsolo as resistências à penetração são indicadas por números à esquerda da vertical da sondagem, nas respectivas cotas. A posição do nível d'água - NA - também é indicada, bem como a data inicial e final de sua medição (Figura 3.5). (Godoy, 1971)
Figura 3.4 - Planta de locação das sondagens
Figura 3.5 - Exemplo de um perfil de subsolo
3.2 - ESCOLHA DO TIPO DE FUNDAÇÃO
Com os resultados das sondagens, de grandeza e natureza das cargas estruturais e conhecendo as condições de estabilidade, fundações, etc... das construções vizinhas, pode , o engenheiro, proceder a escolha do tipo de fundação mais adequada, técnica e economicamente.
O estudo é conduzido inicialmente, pela verificação da possibilidade do emprego de fundações diretas.
Mesmo sendo viável a adoção das fundações diretas é aconselhável comparar o seu custo com o de uma fundação indireta.
E finalmente, verificando a impossibilidade da execução das fundações diretas, estudase o tipo de fundação profunda mais adequada.
3.2.1 - Tipos de fundações
Os principais tipos de fundações podem ser reunidos em dois grandes grupos:fundações diretas ou rasas e fundações indiretas ou profundas (Figura 3.6).
Alvenaria
Sapata Corrida Pedra ou Contínua
Armada
Diretas Simples ou Sapata Isolada Rasas Armada
Rígidos
Radier
Flexíveis
Protendida
Estacas Brocas sem camisa Escavadas
Raiz
Moldadas monotube in loco perdidas Indiretas Raynond
ou com camisa
Profundas
Strauss recuperadas Simples
Duplex Franki
de madeira
de aço
Tipo poço céu aberto Tipo Chicago
Tipo gow
Tubulões
Pneumático Tipo Benoto
(ar comprimido)
Tipo Anel de concreto
Figura 3.6 - Relação dos tipos de fundações usuais em construção
Portanto os principais tipos de fundações são: • Fundações diretas ou rasas; • Fundações indiretas ou profundas.
Para a escolha das fundações podemos iniciar analisando uma sapata direta (Figura 3.7).
• quando Df ≤ B ⇒ Fundações diretas • quando Df > B ⇒ Fundações profundas
-(sendo “B” a menor dimensão da sapata)
Quando a camada ideal for encontrada à profundidade de 5,0 à 6,0m, podemos adotar brocas, se as cargas forem na ordem de 4 a 5 toneladas
Em terrenos firmes a mais de 6,0m, devemos utilizar estacas ou tubulões.
3.3 - FUNDAÇÕES DIRETAS OU RASAS
As fundações diretas são empregadas onde as camadas do subsolo, logo abaixo da estrutura, são capazes de suportar as cargas.
Com o auxílio da sondagem, obtemos o SPT na profundidade adotada e calculamos a
(Snec).
Snec =
Encontrada a área, adota-se as dimensões e verificamos se são econômicas (Figura 3.12).
Condições econômicas: A - a = B - b
A - B = a - b
Como referência temos
Boa = 4,0 kg/cm²
Regular = 2,0 kg/cm²
Fraca = 0,5 kg/cm²
A Distribuição das pressões, no terreno, é função do tipo de solo e da consideração da sapata ser rígida ou flexível, podendo ser bitriangular, retangular ou triangular.
Uma sapata será considerada flexível quando possuir altura relativamente pequena e , sob atuação do carregamento, apresentar deformação de flexão (Caputo, H.P, 1973)
Descrevemos com mais detalhes as fundações diretas mais comuns para obras de pequeno porte.
3.3.1 - Sapata Corrida em Alvenaria
São utilizadas em obras de pequena área e carga, (edícula sem laje, barraco de obras, abrigo de gás; água etc.).
É importante conhecer esse tipo de alicerce pois foram muito utilizados nas construções antigas e se faz necessário esse conhecimento no momento das reformas e reforços dos mesmos. As etapas de execução são:
a) Abertura de vala
* Profundidade nunca inferiores a 40cm* Largura das valas: - parede de 1 tijolo = 45cm
- parede de 1/2 tijolo = 40cm
• Em terrenos inclinados, o fundo da vala é formado por degraus (Figura 3.8), sempre em nível
• mantendo-se o valor "h" em no mínimo 40 cm e h1, no máximo 50cm.
Figura 3.8 - Detalhe do nivelamento do fundo da vala
b) Apiloamento
Se faz manualmente com soquete (maço) de 10 à 20kg, com o objetivo unicamente de conseguir a uniformização do fundo da vala e não aumentar a resistência do solo.c) Lastro de concreto
Sobre o fundo das valas devemos aplicar uma camada de concreto magro de traço 1:3:6 ou 1:4:8 (cimento, areia grossa e pedra 2 e 3) e espessura mínima de 5cm com a finalidade de:• diminuir a pressão de contato, visto ser a sua largura maior do que a do alicerce;
• Uniformizar e limpar o piso sobre o qual será levantado o alicerce de alvenaria
d) Alicerce de alvenaria ( Assentamento dos tijolos)
• Ficam semi-embutidos no terreno;• Tem espessuras maiores do que a das paredes sendo: paredes de 1 tijolo - feitos com tijolo e meio. paredes de 1/2 tijolo - feitos com um tijolo.
• seu respaldo deve estar acima do nível do terreno, a fim de evitar o contato das paredes com o solo;
• O tijolo utilizado é o maciço queimado ou requeimado;
• assentamento dos tijolos é feito em nível;
• Argamassa de assentamento é de cimento e areia traço 1:4.
e) Cinta de amarração
É sempre aconselhável a colocação de uma cinta de amarração no respaldo dos alicerces. Normalmente a sua ferragem consiste de barras "corridas", no caso de pretender a sua atuação como viga deverá ser calculada a ferragem e os estribos. Sobre a cinta será efetuada a impermeabilização.Para economizar formas, utiliza-se tijolos em espelho, assentados com argamassa de cimento e areia traço 1:3.
A função das cintas de amarração é "amarrar" todo o alicerce e distribuir melhor as cargas, não podendo contudo serem utilizadas como vigas.
f) Reaterro das valas
Após a execução da impermeabilização das fundações, podemos reaterrar as valas. O reaterro deve ser feito em camadas de no máximo 20cm bem compactadas.g) Tipos de alicerces para construção simples
Figura 3.9 - Sem cinta de amarração (Borges, 1972)
parede de um tijolo
Figura 3.10 - Com cinta de amarração (Borges, 1972)
parede de meio tijolo
Figura 3.11 - Com cinta de amarração (Borges, 1972)
Obs. Para manter os ferros corridos da cinta de amarração na posição, devem ser usados estribos, espaçados de mais ou menos 1,0m. A função desses estribos é somente posicionar as armaduras.3.3.2 Sapatas Isoladas
São fundações de concreto simples ou armado.
As sapatas de concreto simples (sem armaduras), possuem grande altura, o que lhes confere boa rigidez. Também são denominadas de Blocos.
As sapatas de concreto armado, podem ter formato piramidal ou cônico, possuindo pequena altura em relação a sua base, que pode ter forma quadrada ou retangular (formatos mais comuns).
Figura 3.12 - Sapata isolada retangular
3.3.3 - Sapatas corridas
Executadas em concreto armado e possuem uma dimensão preponderante em relação às demais (Figura 3.13; 3.14; 3.15)
Figura 3.13 - Sapata corrida sob paredes
Figura 3.14 - Sapata corrida sob pilares
Figura 3.15 - Sapata corrida com viga
3.3.4 - Radiers
Quando todas as paredes ou todos os pilares de uma edificação transmitem as cargas ao solo através de uma única sapata, tem-se o que se denomina uma fundação em radier. Os radiers são elementos contínuos que podem ser executados em concreto armado, protendido ou em concreto reforçado com fibras de aço.
Figura 3.16 - Radier
3.4 - FUNDAÇÕES INDIRETAS OU PROFUNDAS
Os principais tipos de fundações profundas são:3.4.1 - Estacas
São peças alongadas, cilíndricas ou prismáticas, cravadas ou confeccionadas no solo, essencialmente para:
a) Transmissão de carga a camadas profundas;
b) Contenção de empuxos laterais (estacas pranchas);
c) Compactação de terrenos.
- Moldadas in loco
As estacas recebem esforços axiais de compressão. Esses esforços são resistidos pela reação exercida pelo terreno sobre sua ponta e pelo atrito entre as paredes laterais da estaca e o terreno. Nas estacas prancha além dos esforços axiais temos o empuxo lateral (esforços horizontais), Figura 3.17.
Figura 3.17 - Esforços nas estacas
3.4.2 Blocos de coroamento das estacas
Os blocos de coroamento das estacas são elementos maciços de concreto armado que solidarizam as "cabeças" de uma ou um grupo de estacas, distribuindo para ela as cargas dos pilares e dos baldrames (Figura 3.18; 3.19).As estacas devem ser preparadas previamente, através de limpeza e remoção do concreto de má qualidade que, normalmente, se encontra acima da cota de arrasamento das estacas moldadas "in loco".
Os blocos de coroamento têm também a função de absorver os momentos produzidos por forças horizontais, excentricidade e outras solicitações (Caputo. H.P., 1973).
Figura 3.18 - Bloco de coroamento
Figura 3.19 - Configuração em planta dos blocos sobre estacas
3.4.3 - Brocas
São feitas a trado, em solo sem água, de forma a não haver fechamento do furo nem desmoronamento.
• Limite de diâmetro : 15 (6") a 25cm (10")
• Limite de comprimento: é da ordem de 6,0m, no mínimo. de 3,0 m a 4,0m
• Os ∅ mais usados são 20cm e 25cm.
A execução das brocas é extremamente simples e compreende apenas três fases:
• abertura da vala dos alicerces
• perfuração de um furo no terreno
• compactação do fundo do furo
• lançamento do concreto
Ao contrário de outros tipos de estacas, que veremos adiante, as brocas só serão iniciadas depois de todas as valas abertas, pois o trabalho é exclusivamente manual, não utilizando nenhum equipamento mecânico.
Inicia-se a abertura dos furos com uma cavadeira americana e o restante é executado com trado (Figura 3.20; 3.21), que tem o seu comprimento acrescido através de barras de cano galvanizado, (geralmente com 1,5m cada peça) até atingir a profundidade desejada.
Figura 3.20 - Tipos de trado
Figura 3.21 - Perfuração da broca
Ao atingir a profundidade das brocas, as mesmas são preenchidas com concreto fck 13,5 MPa utilizando pedra nº 2, sempre verificando se não houve fechamento do furo, bem como falhas na concretagem.Fazemos isso através da cubicagem (volume) de concreto que será necessária para cada broca.
Geralmente as brocas não são armadas, apenas levam pontas de ferro destinadas a amarrá-las à viga baldrame ou blocos. No entanto, certas ocasiões nos obrigam a armá-las e nesses casos, isto é feito com 4 (quatro) ferros e estribos em espiral ou de acordo com o projeto estrutural.
Devemos armar as brocas quando:
• Verificarmos que as mesmas, além de trabalharem a compressão, também sofrem empuxos laterais;
• Forem tracionadas;
• Quando em algumas brocas, encontrarmos solo resistente a uma profundidade inferior a 3,0m.
Resistência Estrutural da Broca quando bem executadas:
• broca de 20cm: - não armada ≅ 4 a 5t
- armada ≅ 6 a 7t
• broca de 25cm: - não armada ≅ 7 a 8t
- armada ≅ 10t
Esses valores são aproximados, pois sua execução é manual, geralmente o fundo do furo não é compactado e o lançamento do concreto é feito diretamente no solo, sem nenhuma proteção.
É conveniente adotar cargas não superiores a 5 toneladas por unidade, em solos suficientemente coesivos e na ausência de lençol freático.
A execução de brocas na presença de água deve ser evitada e somente é admitida quando se tratar de solos de baixa permeabilidade, que possibilitem a concretagem antes do acúmulo de água.
3.4.4 - Estacas Escavadas
As estacas escavadas caracterizam-se também por serem moldadas no local após a escavação do solo, que é efetuada mecanicamente com trado helicoidal.São executadas através de torres metálicas, apoiadas em chassis metálicos ou acoplados em caminhões (Figura 3.22). Em ambos os casos são empregados guinchos, conjunto de tração e haste de perfuração, podendo esta ser helicoidal em toda a sua extensão ou trados acoplados em sua extremidade. Seu emprego é restrito a perfuração acima do nível d'água. (Falconi et al, 1998)
Figura 3.22 - Perfuratriz
3.4.5 - Estaca Strauss
A estaca Strauss é executada utilizando equipamento mecanizado composto por um tripé, guincho, soquete (pilão) e a sonda (balde).
Inicia-se a perfuração utilizando o soquete. Após abertura inicial do furo com o soquete, coloca-se o tubo de molde do mesmo diâmetro da estaca, o soquete é substituído pela sonda com porta e janela a fim de penetrar e remover o solo no seu interior em estado de lama.
Alcançado o comprimento desejado da estaca, enche-se de concreto em trechos de 0,5 a 1,0 m que é socado pelo pilão à medida que se vai extraindo o molde formando o bulbo.
O procedimento acima se repete, exceto a formação do bulbo, até completar o nível proposto pelo projeto.
Figura 3.23 - Execução das Estaca Strauss
3.4.6 - Estacas Franki
Coloca-se o tubo de aço (molde), tendo no seu interior junto à ponta, um tampão de concreto de relação água/cimento muito baixa, esse tampão é socado por meio de um soquete (pilão) de até 4t; ele vai abrindo caminho no terreno devido ao forte atrito entre o concreto seco e o tubo e o mesmo é arrastado para dentro do solo. Alcançada a profundidade desejada o molde é preso à torre, coloca-se mais concreto no interior do molde e com o pilão, provocase a expulsão do tampão até a formação de um bulbo do concreto. Após essa operação descese a armadura e concreta-se a estaca em pequenos trechos sendo os mesmos fortemente, apiloados ao mesmo tempo em que se retira o tubo de molde.
Figura 3.24 - Execução das Estacas Franki
3.4.7 - Tubulões
São elementos de fundação profunda constituído de um poço (fuste), normalmente de seção circular revestido ou não, e uma base circular ou em forma de elipse (Figura 3.25) (Alonso et al, 1998).Figura 3.25 - Seção típica de um tubulão
Sendo: β ≥ 60odmin. = 70cm D ≅ de 3 a 3,5d
H ≥ D - d . tang60o sendo < 2,0m
2
Os tubulões dividem-se em dois tipos básicos: à céu aberto (com ou sem revestimento) e a ar comprimido (pneumático) revestido.
O revestimento dos tubulões podem ser constituídos de camisa de concreto armada ou de aço. Sendo a de aço perdida ou recuperada.
Os tubulões à céu aberto é o mais simples, resulta de um poço perfurado manualmente ou mecanicamente e a céu aberto. Seu emprego é limitado para solos coesivos e acima do nível d'água, existindo dois sistemas de execução Chicago e Gow.
No sistema Chicago a escavação é feita com pá, em etapas, as paredes são escoradas com pranchas verticais ajustadas por meio de anéis de aço. Já no sistema Gow o escoramento é efetuado utilizando cilindros telescópicos de aço cravados por percussão (Caputo, 1973).
Os tubulões a ar comprimido ou pneumáticos utiliza uma câmara de equilíbrio em chapa de aço e um compressor (Figura 3.26). O princípio é manter, pelo ar comprimido injetado, a água afastada do interior do interior do tubulão.
Figura 3.26 - Tubulão à ar comprimido
3.5 - IMPERMEABILIZAÇÃO
Os serviços de impermeabilização representam uma pequena parcela do custo e do volume de uma obra, quando anteriormente planejada.
As falhas corrigidas a posteriori, somam muitas vezes o custo inicial.
A impermeabilização das edificações não é uma prática moderna. Os romanos empregavam, clara de ovos, sangue, óleos, etc. para impermeabilizar saunas, aquedutos. Já no Brasil, nas cidade históricas, existem igrejas e pontes onde a argamassa das pedras foi aditivada com óleo de baleia.
Atualmente, dispomos de produtos desenvolvidos especialmente para evitar a ação prejudicial da água.
Podemos dividir os tipos de impermeabilização, de acordo com o ataque de água:
- contra a pressão hidrostática; - contra a infiltração; - contra a umidade do solo.
Os serviços de impermeabilização contra pressão hidrostática e contra água de infiltração não admitem falhas; a impermeabilização para esses tipos, mais utilizada há mais de 50 anos, é a por meio de membranas onde a plasticidade é a grande vantagem, pois acompanha o movimento das trincas que venham a se formar na estrutura permanecendo impermeáveis mesmo sob pressão hidrostática.
Temos também, no Brasil, já há algum tempo, um produto mineral que se aplica na estrutura, em especial as de concreto, que penetra nos poros através de água e se cristaliza até cerca de 6cm dentro da estrutura fechando os poros e ficando solidária com a estrutura. Tem sido bem aceito, pois esse produto pode ser aplicado, e com grande sucesso, nas recuperações de estruturas sujeitas a pressão hidrostática etc... E no caso de umidade do solo, a impermeabilização mais utilizada é com argamassa rígida e impermeabilizantes gordurosos.
Como podemos observar, existem basicamente tres sistemas principais de impermeabilização:
O rígido: - 1º Constituídos pêlos concretos e argamassas impermeáveis, pela inclusão de um aditivo.
- 2º Constituídos por cimentos especiais de cura rápida que são utilizados no tamponamento.
O semiflexível: - Semelhante à impermeabilização rígida somente que os aditivos favorecem pequenas movimentações.
O flexível: Constituído por lençóis de borracha butílica, membrana de asfalto com elastômetros, lençóis termoplásticos, etc...
Devemos ter alguns cuidados com a impermeabilização
- Uma impermeabilização não dá resistência à estrutura. Se a estrutura fissurar, a argamassa também o fará.
- Uma junta fissurada deve ser enchida com uma massa elástica e não com argamassa rígida.
- A obstrução da água fará com que ela procure nova saída e inicie o trabalho pelas áreas porosas.
3.5.1.-.Impermeabilização dos alicerces
Independente do tipo de fundação adotada, devemos executar uma impermeabilização no respaldo dos alicerces (Figura 3.25). A fundação sempre é executada num nível inferior ao do piso, sendo necessário assentar algumas fiadas de tijolos sobre a sapata corrida ou sobre o baldrame, até alcançarmos o nível do piso (Alvenaria de embasamento).
No tijolo a água sobe por capilaridade, penetrando até a altura de 1,50m nas paredes superiores, causando sérios transtornos.
Portanto é indispensável uma boa impermeabilização no respaldo dos alicerces, local mais indicado para isso, pois é o ponto de ligação entre a parede que está livre de contato com o terreno e o alicerce.
Figura 3.27 - Impermeabilização no respaldo do alicerce
O processo mais utilizado é através de argamassa rígida; usando, geralmente, impermeável gorduroso (Vedacit ou similar), dosado em argamassa de cimento e areia em traço 1:3 em volume:- 1 lata de cimento (18 litros)
- 3 latas de areia (54 litros)
- 1,5 kg de impermeável
Após a cura da argamassa impermeável a superfície é pintada com piche líquido (Neutrol ou similar), pois o piche penetra nas possíveis falhas de camadas, corrigindo os pontos fracos. Devemos aplicar duas demãos e em cruz.
Outro processo utilizado dispensa o uso da pintura com piche líquido sobre a argamassa.
Nesse sistema aplica-se uma argamassa de cimento e areia no traço 1:3 e pintura com cimento cristalizante e aditivo (Kz + água + K11 na proporção de 1:4:12; Viaplus 1000; Tec 100 ou similar). Podemos utilizar aditivo acrílico que proporciona uma composição semi flexível. Aplicar sempre com as paredes úmidas em três demãos cruzadas.
Recomendações importantes para uma boa execução da impermeabilização:
- Deve-se sempre dobrar lateralmente cerca de 10 a 15cm
- A camada impermeável não deve ser queimada, mas apenas alisada, para que sua superfície fique semi-áspera evitando rachaduras.
- Usa-se a mesma argamassa para o assentamento das duas primeiras fiadas da parede.
Figura 3.28 - Detalhe da aplicação da argamassa impermeável
Obs.: O tempo de duração de uma impermeabilização deverá corresponder ao tempo de uso de uma construção. Sua substituição envolve alto custo e transtorno aos usuários.3.5.2 - Impermeabilização nas alvenaria sujeitas a umidade do solo
Além dos alicerces, nos locais onde o solo entra em contato com as paredes, devemos executar uma impermeabilização. Faz-se necessário estudar caso a caso para adotar o melhor sistema de impermeabilização (rígido e semiflexível para umidade e flexível para infiltração).As figuras 3.27 e 3.28 detalham uma impermeabilização rígida em diversos locais de uma construção.
Figura 3.29 - Impermeabilização em locais de pouca ventilação
- Onde o solo encostar na parede levantar o revestimento interno e externo no mínimo 60cm acima do soloFigura 3.30 - Impermeabilização com ventilação
- Em ambos os casos o alicerce e o lastro impermeabilizado devem coincidir.
3.6 - DRENOS
Existem casos que para maior proteção da impermeabilização dos alicerces e também das paredes em arrimo, necessitamos executar DRENOS, para garantir bons resultados. Os drenos devem ser estudados para cada caso, tendo em vista o tipo de solo e a profundidade do lençol freático, etc...
Os drenos subterrâneos podem ser de três tipos:
- Drenos horizontais (ao longo de uma área) (figura 3.29)
- Drenos verticais (tipo estacas de areia)
- Drenos em camada (sob base de estrada)
De modo gerérico, os drenos horizontais são constituídos:
Figura 3.31 - Dreno horizontal
1 - Camada filtrante (areia de granulometria adequada ou manta de poliéster servindo como elemento de retenção de finos do solo.2 - Material drenante (pedra de granulometria apropriada) que serve para evitar carreamento de areia - 1 - para o interior do tubo, e conduzir as águas drenadas.
3 - Tubo coletor deve ser usado para grandes vazões. Normalmente de concreto, barro cozido ou PVC.
4 - Camada impermeável (selo) no caso do dreno ser destinado apenas à captação de águas subterrâneas. Se o dreno captar águas de superfície, esta camada será substituída por material permeável.
5 - Solo a ser drenado em um estudo mais aprofundado, a sua granulometria servirá de ponto de partida para o projeto das camadas de proteção.
Obs. No caso de não ter tubulação condutora de água, o dreno é chamado de cego (Figura 3.30). Os drenos cegos consistem de valas cheias de material granular (brita e areia). O material é colocado com diâmetro decrescente, de baixo para cima.
Figura 3.32 - Dreno horizontal cego
Uma das utilizações dos drenos é quando o nível de água é muito alto e desejamos rebaixa-lo.Figura 3.33 - Exemplo de aplicação dos drenos
Obs. Neste caso os furos do tubo devem estar para cima.
ANOTAÇÕES
1 – Verificar se o terreno confirma a sondagem quando da execução da fundação.2 – Verificar a exata correspondência entre os projetos, arquitetônico, estrutural e o de fundações.
3 – Verificar se o traço e o preparo do concreto, atendem as especificações de projeto.
4 – Verificar qual o sistema de impermeabilização indicada no projeto. Constatar se as especificações dos materiais, bem como as recomendações técnicas dos fabricantes estão sendo rigorosamente obedecidas
Noções de segurança na execução de fundação:
- Evitar queda de pessoas nas aberturas utilizando proteção com guarda corpos de madeira, metal ou telas.
- Realizar escoramento em valas para evitar desmoronamentos.
- O canteiro de obra deverá ser mantido limpo , organizado e desimpedidos, para evitar escorregões, e tropeços.
- Sinalizar com guarda-corpo, fitas, bandeirolas, cavaletes as valas, taludes poços e buracos
TÉCNICAS DE CONSTRUÇÃO CIVIL E CONSTRUÇÃO DE EDIFÍCIOS
4 - ALVENARIA
APÓS ESTUDAR ESTE CAPÍTULO; VOCÊ DEVERÁ SER CAPAZ DE:
• Escolher a alvenaria adequada;
• Orientar a elevação das paredes (primeira fiada, cantos, prumo, nível);
• Especificar o tipo de argamassa de assentamento;
• Especificar e conhecer o tipo de amarração;
• Especificar os tipos de reforços nos vãos das alvenarias.
• Executar corretamente os muros de fechamento de divisas.
Alvenaria, pelo dicionário da língua portuguesa, é a arte ou ofício de pedreiro ou alvanel, ou ainda, obra composta de pedras naturais ou artificiais, ligadas ou não por argamassa.
Modernamente se entende por alvenaria, um conjunto coeso e rígido, de tijolos ou blocos (elementos de alvenaria) unidos entre si por argamassa.
A alvenaria pode ser empregada na confecção de diversos elementos construtivos (paredes, abóbadas, sapatas, etc...) e pode ter função estrutural, de vedação etc...Quando a alvenaria é empregada na construção para resistir cargas, ela é chamada Alvenaria resistente, pois além do seu peso próprio, ela suporta cargas (peso das lajes, telhados, pavim. superior, etc...)
Quando a alvenaria não é dimensionada para resistir cargas verticais além de seu peso próprio é denominada Alvenaria de vedação. As paredes utilizadas como elemento de vedação devem possuir características técnicas que são:
• Resistência mecânica
• Isolamento térmico e acústico
• Resistência ao fogo
• Estanqueidade
• Durabilidade
As alvenarias de tijolos e blocos cerâmicos ou de concreto, são as mais utilizadas, mas existe investimentos crescentes no desenvolvimento de tecnologias para industrialização de sistemas construtivos aplicando materiais diversos. No entanto neste capítulo iremos abordar os elementos de alvenaria tradicionais.
4.1 - ELEMENTO DE ALVENARIA
Produto industrializado, de formato paralelepipedal, para compor uma alvenaria, podendo ser:
4.1.1 - Tijolos de barro cozido
a - Tijolo comum (maciço, caipira)
São blocos de barro comum, moldados com arestas vivas e retilíneas (Figura 4.1), obtidos após a queima das peças em fornos contínuos ou periódicos com temperaturas das ordem de 900 a 1000°C.
* dimensões mais comuns: 21x10x5
* peso: 2,50kg
* resistência do tijolo: 20kgf/cm² * quantidades por m²:
parede de 1/2 tijolo: 77un
parede de 1 tijolo: 148un
Figura 4.1 - Tijolo comum
b - Tijolo furado (baiano)
Tijolo cerâmico vazado, moldados com arestas vivas retilíneas. São produzidos a partir da cerâmica vermelha, tendo a sua conformação obtida através de extrusão.* dimensões: 9x19x19cm * quantidade por m²:
parede de 1/2 tijolo: 22un parede de 1 tijolo: 42un
* peso ≅ 3,0kg
* resistência do tijolo ≅ espelho: 30kgf/cm² e um tijolo: 10kgf/cm²
* resistência da parede ≅ 45kgf/cm²
A seção transversal destes tijolos é variável, existindo tijolos com furos cilíndricos (Figura 4.2) e com furos prismáticos (Figura 4.3).
No assentamento, em ambos os casos, os furos dos tijolos estão dispostos paralelamente à superfície de assentamento o que ocasiona uma diminuição da resistência dos painéis de alvenaria.
As faces do tijolo sofrem um processo de vitrificação, que compromete a aderência com as argamassas de assentamento e revestimento, por este motivo são constituídas por ranhuras e saliências, que aumentam a aderência.
Figura 4.2 - Tijolo com furo cilíndrico
Figura 4.3 - Tijolo com furo prismático
c - Tijolo laminado (21 furos)
Tijolo cerâmico utilizado para executar paredes de tijolos à vista (Figura 4.4). O processo de fabricação é semelhante ao do tijolo furado.* dimensões: 23x11x5,5cm * quantidade por m²: parede de 1/2 tijolo: 70un parede de 1 tijolo: 140un
* peso aproximado ≅ 2,70kg
* resistência do tijolo ≅ 35kgf/cm²
* resistência da parede: 200 a 260kgf/cm²
Figura 4.4 - Tijolo laminado
A tabela 4.1 determina as dimensões normalizadas para os elementos cerâmicos existentes comercialmente.Tabela 4.1 - Dimensões normalizadas dos elementos cerâmicos
| Tabela NBR - Dimensões nominais de blocos de vedação e estruturais, comuns e especiais | |||
| Tipo(A) L x H x C (cm) | Dimensões nominais (mm) | ||
| Largura (L) | Altura(H) | Comprimento(C) | |
| 10 x 20 x 20 | 90 | 190 | 190 |
| 10 x 20 x 25 | 90 | 190 | 240 |
| 10 x 20 x 30 | 90 | 190 | 290 |
| 10 x 20 x 40 | 90 | 190 | 390 |
| 12,5 x 20 x 20 | 115 | 190 | 190 |
| 12,5 x 20 x 25 | 115 | 190 | 240 |
| 12,5 x 20 x 30 | 115 | 190 | 290 |
| 12,5 x 20 x 40 | 115 | 190 | 390 |
| 15 x 20 x 20 | 140 | 190 | 190 |
| 15 x 20 x 25 | 140 | 190 | 240 |
| 15 x 20 x 30 | 140 | 190 | 290 |
| 15 x 20 x 40 | 140 | 190 | 390 |
| 20 x 20 x 20 | 190 | 190 | 190 |
| 20 x 20 x 25 | 190 | 190 | 240 |
| 20 x 20 x 30 | 190 | 190 | 290 |
| 20 x 20 x 40 | 190 | 190 | 390 |
| Medidas especiais L x H x C (cm) | Dimensões nominais (mm) | ||
| Largura (L) | Altura(H) | Comprimento(C) | |
| 10 x 10 x 20 | 90 | 90 | 190 |
| 10 x 15 x 20 | 90 | 140 | 190 |
| 10 x 15 x 25 | 90 | 140 | 240 |
| 12,5 x 15 x 25 | 115 | 140 | 240 |
4.1.2 - Tijolos de solo cimento
Material obtido pela mistura de solo arenoso - 50 a 80% do próprio terreno onde se processa a construção, cimento Portland de 4 a 10%, e água, prensados mecanicamente ou manualmente. São assentados por argamassa mista de cimento, cal e areia no traço 1:2:8 (Figura4.5) ou por meio de cola (Figura 4.6).
* dimensões: 20x10x4,5cm
* quantidade: a mesma do tijolo maciço de barro cozido
* resistência a compressão: 30kgf/cm²
Figura 4.5 - Tijolo de solo cimento comum
Figura 4.6 - Tijolo de solo cimento assentado com cola
4.1.3 - Blocos de concreto
Peças regulares e retangulares, fabricadas com cimento, areia, pedrisco, pó de pedra e água (Figura 4.7; 4.8). O equipamento para a execução dos blocos é a presa hidráulica. O bloco é obtido através da dosagem racional dos componentes, e dependendo do equipamento é possível obter peças de grande regularidade e com faces e arestas de bom acabamento. Em relação ao acabamento os blocas de concreto podem ser para revestimento (mais rústico) ou aparentes.
Figura 4.7 - Bloco de concreto
A Tabela 4.2 determina as dimensões nominais dos blocos de concreto mais utilizados.
Tabela 4.2 - Dimensões nominais dos blocos de concreto
| dimensões | a | b | c | peso | a | b | c | peso | |||||
| *: | 09 | x | 19 | x | 39 | 10kg | 09 | x | 19 | x | 19 | 4,8kg | |
| 11 | x | 19 | x | 39 | 10,7kg | 1/2 tijolo | 14 | x | 19 | x | 19 | 6,7kg | |
| 14 | x | 19 | x | 39 | 13,6kg | 19 | x | 19 | x | 19 | 8,7kg | ||
| 19 | x | 19 | x | 39 | 15,5kg |
* resistência do bloco: deve-se consultar o fabricante
Figura 4.8 - Bloco canaleta
Bloco Canaleta : 14 x 19 x 39 = 13,50 kg19 x 19 x 39 = 18,10 kg
4.2 – ELEVAÇÃO DA ALVENARIA:
4.2.1 - Paredes de tijolos maciços
Depois de, no mínimo, um dia da impermeabilização, serão erguidas as paredes conforme o projeto de arquitetura. O serviço é iniciado pêlos cantos (Figura 4.9) após o destacamento das paredes (assentamento da primeira fiada), obedecendo o prumo de pedreiro para o alinhamento vertical (Figura 4.10) e o escantilhão no sentido horizontal (Figura 4.9).
Os cantos são levantados primeiro porque, desta forma, o restante da parede será erguida sem preocupações de prumo e horizontalidade, pois estica-se uma linha entre os dois cantos já levantados, fiada por fiada.
A argamassa de assentamento utilizada é de cimento, cal e areia no traço 1:2:8.
Figura 4.9 - Detalhe do nivelamento da elevação da alvenaria
Figura 4.10 - Detalhe do prumo das alvenarias
Podemos ver nos desenhos (Figura 4.11; 4.12; 4.13) a maneira mais prática de executarmos a elevação da alvenaria, verificando o nível e o prumo.1o – Colocada a linha, a argamassa e disposta sobre a fiada anterior, conforme a Figura 4.11.
Figura 4.11 - Colocação da argamassa de assentamento
2o - Sobre a argamassa o tijolo e assentado com a face rente à linha, batendo e acertando com a colher conforme Figura 4.12.Figura 4.12 - Assentamento do tijolo
3o - A sobra de argamassa é retirada com a colher, conforme Figura 4.13.Figura 4.13 - Retirada do excesso de argamassa
Mesmo sendo os tijolos da mesma olaria, nota-se certa diferença de medidas, por este motivo, somente uma das faces da parede pode ser aparelhada, sendo a mesma à externa por motivos estéticos e mesmo porque os andaimes são montados por este lado fazendo com que o pedreiro trabalhe aparelhando esta face.Quando as paredes atingirem a altura de 1,5m aproximadamente, deve-se providenciar o primeiro plano de andaimes, o segundo plano será na altura da laje, se for sobrado, e o terceiro 1,5m acima da laje e assim sucessivamente.
Os andaimes são executados com tábuas de 1"x12" (2,5x30cm) utilizando os mesmos pontaletes de marcação da obra ou com andaimes metálicos.
No caso de andaimes utilizando pontaletes de madeira as tábuas devem ser pregadas para maior segurança do usuários.
4.2.1.a - Amarração dos tijolos maciços
Os elementos de alvenaria devem ser assentados com as juntas desencontradas, para garantir uma maior resistência e estabilidade dos painéis (Figuras4.14; 4.15; 4.16). Podendo ser:
a - Ajuste comum ou corrente, é o sistema mais utilizado (Figura 4.14)
Figura 4.14 - Ajuste corrente (comum)
b - Ajuste Francês também comumente utilizado (Figura 4.15)Figura 4.15 - Ajuste Francês
c - Ajuste Inglês, de difícil execução pode ser utilizado em alvenaria de tijolo aparente (Figura 4.16).Figura 4.16 - Ajuste Inglês ou gótico
4.2.1.b - Formação dos cantos de paredes
É de grande importância que os cantos sejam executados corretamente, pois como já visto, as paredes iniciam-se pêlos cantos. Nas Figuras 4.17; 4.18; 4.19; 4.20 e 4.21 mostram a execução de diversos cantos de parede nas diversas modalidades de ajustes.
Figura 4.17 - Canto em parede de meio tijolo no ajuste comum
Figura 4.18 - Canto em parede de um tijolo no ajuste francês
Figura 4.19 - Canto em parede de um tijolo no ajuste comum
Figura 4.20 - Canto em parede de espelho
Figura 4.21 - Canto em parede externa de um tijolo com parede interna de meio tijolo no ajuste francês
4.2.1.c - Pilares de tijolos maciços
São utilizados em locais onde a carga é pequena (varandas, muros etc...). Podem ser executados somente de alvenaria ou e alvenaria e o centro preenchido por concreto (Figura
4.22)
Figura 4.22 - Exemplo depilares de alvenaria
4.2.1.d - Empilhamento de tijolos maciços
Para conferir na obra a quantidade de tijolos maciços recebidos, é comum empilhar os tijolos de maneira como mostra a Figura 4.23. São 15 camadas, contendo cada 16 tijolos, resultando 240. Como coroamento, arrumam-se mais 10 tijolos, perfazendo uma pilha de 250 tijolos. Costuma-se, também, pintar ou borrifar com água de cal as pilhas, após cada descarga do caminhão, para não haver confusão com as pilhas anteriores.Figura 4.23 - Empilhamento do tijolo maciço
4.2.1.e - Cortes em tijolos maciços
O tijolo maciço permite que seja dividido em diversos tamanhos, o que facilita no momento da execução. Podemos dividi-lo pela metade ou em 1/4 e 3/4 de acordo com a necessidade (Figura 4.24).
Figura 4.24 - Corte do tijolo maciço
4.2.2 - Paredes com bloco de concreto
São paredes executadas com blocos de concreto vibrado. Com o desenvolvimento dos artigos pré-moldados, se estendem rapidamente em nossas obras.
O processo de assentamento é semelhante ao já descrito para a alvenaria de tijolos maciços. As paredes iniciam-se pêlos cantos utilizando o escantilhão para o nível da fiada e o prumo.
A argamassa de assentamento dos blocos de concreto é mista composta por cimento cal e areia no traço 1:1/2:6.
| Vantagens: | - peso menor - menor tempo de assentamento e revestimento, economizando mão-de-obra. - menor consumo de argamassa para assentamento. - melhor acabamento e uniformidade. |
| Desvantagens: | - não permite cortes para dividi-los. |
- geralmente, nas espaletas e arremates do vão, são necessários tijolos comuns.
- difícil para se trabalhar nas aberturas de rasgos para embutimento de canos e conduítes.
- nos dias de chuva aparecem nos painéis de alvenaria externa, os desenhos dos blocos. Isto ocorre devido à absorção da argamassa de assentamento ser diferente da dos blocos.
-
Os blocos de concreto para execução de obras não estruturais têm o seu fundo tampado (Figura 4.25) para facilitar a colocação da argamassa de assentamento. Portanto, a elevação da alvenaria se dá assentando o bloco com os furos para baixo.
Figura 4.25 - Detalhe do assentamento do bloco de concreto
O assentamento é feito em amarração. Pode ser junta a prumo (somente quando for vedação em estrutura de concreto).
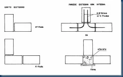
A amarração dos cantos e de parede interna com externa se faz utilizando barras de aço a cada três fiadas ou utilizando um pilarete de concreto no encontro das alvenarias (Figura 4.26):
Figura 4.26 - Detalhe de execução dos cantos
4.2.3 - Parede de tijolos furados
As paredes de tijolo furado são utilizadas com a finalidade de diminuir o peso das estruturas e economia, não oferecem grande resistência e portanto, só devem ser aplicados com a única função de vedarem um painel na estrutura de concreto.
Sobre elas não devem ser aplicados nenhuma carga direta. No entanto, os tijolos baianos também são utilizados para a elevação das paredes, e o seu assentamento e feito em amarração, tanto para paredes de 1/2 tijolo como para 1 tijolo (Figura 4.27).
Figura 4.27 - Execução de alvenaria utilizando tjolos furados
A amarração dos cantos e da parede interna com as externas, se faz através de pilares de concreto, pois não se consegue uma amarração perfeita devido às diferenças de dimensões (Figura 4.28).
Figura 4.28 - Exemplo de amarração nas alvenaria de tijolo furado
4.3 - VÃOS EM PAREDES DE ALVENARIA
Na execução das paredes são deixados os vãos de portas e janelas. No caso das portas os vãos já são destacados na primeira fiada da alvenaria e das janelas na altura do peitoril determinado no projeto. Para que isso ocorra devemos considerar o tipo de batente a ser utilizado pois a medida do mesmo deverá ser acrescido ao vão livre da esquadria (Figura 4.29).
esquadrias de madeira: porta = acrescentar 10 cm na largura e 5cm na altura, devido aos batentes.
janela = acrescentar 10cm na largura e 10cm na
altura.
esquadrias de ferro: como o batente é a própria esquadria, os acréscimos serão de 3cm tanto na largura como na altura.
Figura 4.29 - Vão de alvenaria
Sobre o vão das portas e sobre e sob os vãos das janelas devem ser construídas vergas.(Figura 4.30)Quando trabalha sobre o vão, a sua função é evitar as cargas nas esquadrias e quando trabalha sob o vão, tem a finalidade de distribuir as cargas concentradas uniformemente pela alvenaria inferior:
Figura 4.30 - Vergas sobre e sob os vãos
As vergas podem ser pré-moldadas ou moldadas no local, e devem exceder ao vão no mínimo 30cm ou 1/5 do vão.No caso de janelas sucessivas, executa-se uma só verga.
As Figuras 4.31; 4.32 exemplificam as vergas nas paredes de alvenaria executadas com tijolos maciços para:
Vãos até 1,0m
Figura 4.31 - Vergas em alvenaria de tijolo maciço para vãos até 1,00m
Vãos entre 1,0 e 2,0m
Figura 4.32 - Vergas em alvenaria de tijolo maciço para vãos entre 1,00m e 2,00m
OBS: Caso o vão exceda a 2,00m, deve-se calcular uma viga armada.As Figuras 4.33; 4.34 exemplificam as vergas nas paredes de alvenaria executadas com blocos de concreto para:
Vãos de 1,0m Vãos de 1,0 a 1,50m
Figura 4.33 - Vergas em alvenaria de bloco de concreto para vãos até 1,00m e entre 1,00m e 1,50m
Vãos acima de 1,50 até 2,00m
Figura 4.34 - Vergas em alvenaria de tijolo maciço para vãos entre 1,50m e 2,00m
A Figura 4.35 exemplifica as vergas nas paredes de alvenaria executadas com tijolos furados para:Vãos de 1,0m Vãos de 1,0 a 2,0m
Figura 4.35 - Vergas em alvenaria de tijolo furado para vãos até 1,00m e entre 1,00m e 2,00m
4.4 - OUTROS TIPOS DE REFORÇOS EM PAREDES DE ALVENARIA.Quando uma viga, de pequena carga, proveniente principalmente das coberturas, descarrega sobre a alvenaria , para evitar a carga concentrada e consequentemente o cisalhamento nos tijolos, fazem-se coxins de concreto (Figura 4.36).
Figura 4.36 - Coxins de concreto
Ao chegar com as paredes à altura da laje (respaldo das paredes), quando não temos uma verdadeira estrutura de concreto e os vão são pequenos, utilizamos uma nova cinta de amarração sob a laje e sobre todas as paredes que dela recebem carga.As cintas de amarração no respaldo das paredes servem para apoio das lajes, nestes casos para lajes de pequenos vãos, no máximo entre 2,50 a 3,00m, (ver apoio de lajes em alvenaria nas anotações de aulas nº5).
As Figuras 4.37 e 4.38 exemplificam as cintas de amarração no respaldo das alvenarias cerâmicas para tijolo maciço e tijolo furado respectivamente.
Figura 4.37 - Cinta de amarração em alvenaria de tijolo maciço
Figura 4.38 - Cinta de amarração em alvenaria de tijolo furado
Na alvenaria de bloco de concreto utilizamos blocos canaletas para a execução das cintas de amarração (Figura 4.39)Figura 4.39 - Cinta de amarração em alvenaria de bloco de concreto
Obs. As cintas de amarração servem para distribuir as cargas e "amarrar" as paredes (internas com as externas). Se necessitarmos que as cintas suportem cargas, devemos então calcular vigas.
4.5 - MUROS
Os fechamentos para divisas podem ser executados em alvenaria de bloco de concreto (14 x 19 x 39), tijolo maciço ou tijolo furado. Tudo vai depender de um estudo econômico e também técnico para a escolha do melhor elemento
Para o bloco de concreto podemos executar de duas maneiras: à vista (Figura 4.40) ou revestido (Figura 4.41). Se a escolha for à vista, devemos utilizar os próprios furos dos blocos para preencher com "grout", formando assim os pilaretes (Figura 4.40), tomando sempre o cuidado de deixar as juntas com o mesmo espaçamento, para podermos frisá-las.
Se a escolha for para o revestimento, poderemos também utilizar os furos do bloco como pilarete ou colocar formas e executar um pilarete, neste caso armado.
Para o tijolo furado e o maciço, devemos quase sempre revesti-los, portanto a cada 2,5 a 3,0m executa-se um pilarete de 10 x 25, com o auxílio de formas de madeira (Figura 4.42).
Obs. Qualquer que seja o elemento escolhido para a execução do muro a cada, no máximo, de 10,00 a 15,00m, devemos deixar uma junta de dilatação de 1,0cm. Esta junta deve ser executada para evitar que no muro apareça trincas devido ser o mesmo esbelto, estar parcialmente engastado no alicerce, e sofrer movimentação devido a variação térmica, ventos etc.
4.5.1 -Fechamento de divisas em bloco de concreto
a - À vista:
Figura 4.40 - Detalhe dos pilaretes executados nos blocos
b - Revestido:
Figura 4.41 - Detalhe da elevação de muro de bloco aparente , revestido e viga baldrame
4.5.2 - Fechamento de divisas em tijolo maciço ou baiano
Figura 4.42 - Detalhe de execução de um muro de tijolo maciço
4.5.3 - Tipos de fundações para os muros
Podemos efetuar, dependendo do terreno, um alicerce em sapata corrida de concreto ou com brocas.As sapatas corridas devem estar em nível e apoiadas em solo firme a uma profundidade mínima de 40cm, caso o terreno não comporte este tipo de alicerce podemos optar por brocas. As brocas, geralmente de φ 20cm efetuadas a trado. Como as cargas dos muros de divisa não são elevadas podemos faze-la com 2,0m de profundidade e a cada 2,5 ou 3,0m de distância uma das outras.
Devemos sempre deixar as valas do alicerce do muro em nível para evitarmos esforços na alvenaria, o que poderia ocasionar o aparecimento de fissuras.
Figura 4.43 - Exemplo de fundação para muros
No respaldo do alicerce do muro, devemos executar também, uma proteção
impermeável, através de argamassa e impermeabilizantes, para evitar a presença de umidade na alvenaria de elevação do muro.
Deverá ser executado uma cinta de amarração no mínimo no meio e no respaldo da alvenaria, que tem a função de interligar os pilaretes com a alvenaria.
4.6 - ARGAMASSA - PREPARO E APLICAÇÃO
As argamassas, junto com os elementos de alvenaria, são os componentes que formam a parede de alvenaria não armada, sendo a sua função:
- unir solidamente os elementos de alvenaria
- distribuir uniformemente as cargas
- vedar as juntas impedindo a infiltração de água e a passagem de insetos, etc...
As argamassas devem ter boa trabalhabilidade. Difícil é aquilatar esta trabalhabilidade, pois são fatores subjetivos que a definem. Ela pode ser mais ou menos trabalhável, conforme o desejo de quem vai manuseá-la. Podemos considerar que ela é trabalhável quando distribui-se com facilidade ao ser assentada, não "agarra" a colher do pedreiro; não endurece rapidamente permanecendo plástica por tempo suficiente para os ajustes (nível e prumo) do elemento de alvenaria.
4.6.1 - Preparo da argamassa para assentamento de alvenaria de vedação
A argamassa de assentamento deve ser preparada com materiais selecionados, granulometria adequada e com um traço de acordo com o tipo de elemento de alvenaria adotado (Tabela 4.2). Podem ser preparadas:a) - Manualmente
Figura 4.44 - Preparo da argamassa manualmente
b) - Com betoneira
Figura 4.45 - Preparo da argamassa com betoneira Tabela 4.2 - Traço de argamassa em latas de 18litros para argamassa de assentamento
Aplicação | Traço | Rendimento por saco de cimento |
| Alvenaria de tijolos de barro cozido (maciço) | 1 lata de cimento 2 latas de cal 8 latas de areia | 10m² |
| Alvenaria de tijolos baianos ou furados | 1 lata de cimento 2 latas de cal 8 latas de areia | 16m² |
| Alvenaria de blocos de concreto | 1 lata de cimento 1/2 lata de cal 6 latas de areia | 30m² |
4.6.2 - Aplicação
Tradicional: onde o pedreiro espalha a argamassa com a colher e depois pressiona o tijolo ou bloco conferindo o alinhamento e o prumo (Figura 4.46):
Figura 4.46 - Assentamento Tradicional
Cordão: onde o pedreiro forma dois cordões de argamassa (Figura 4.47), melhorando o desempenho da parede em relação a penetração de água de chuva, ideal para paredes em alvenaria aparente.Figura 4.47 - Aseentamento em cordão
Quando a alvenaria for utilizada aparente, pode-se frisar a junta de argamassa, que deve ser comprimida e nunca arrancada (Figura 4.48), conferindo mais resistência além de um efeito estético.Figura 4.48 - Tipos de frisos
Os frisos a,b,c são os mais aconselháveis para painéis externos pois evita o acúmulo de água.
ANOTAÇÕES
1 - As bitolas dos ferros das vergas e das cintas de amarração, estão colocadas em polegadas, por ser a nomenclatura mais usual entre os pedreiros na obra (Tabela 4.3).
Tabela 4.3 - Equivalência das bitolas dos aços
| mm | polegadas |
| 5,0 | 3/16 |
| 6,3 | 1/4 |
| 8,0 | 5/16 |
| 10,0 | 3/8 |
| 12,5 | 1/2 |
2 – Verificação para um bom assentamento:
- Junta de argamassa entre os tijolos completamente cheias;
- Painéis de paredes perfeitamente a prumo e alinhadas, pois, do contrário, será necessário uma grande espessura de revestimento;
- Fiadas em nível para se evitar o aumento de espessura de argamassa de assentamento.
- Desencontro de juntas para uma perfeita amarração.
3 – Noções de segurança:
- A operação de guinchos, gruas e equipamentos de elevação só deve ser feita por trabalhador qualificado.
- A utilização de andaimes para a elevação da alvenaria devem ser executados com estruturas de madeira pregadas e não amarradas ou em estruturas metálicas contraventadas e apoiadas em solo resistente e nivelado.
- Não acumular muitos tijolos e argamassa sobre os andaimes.
TÉCNICAS DE CONSTRUÇÃO CIVIL E CONSTRUÇÃO DE EDIFÍCIOS
FORROS
APÓS ESTUDAR ESTE CAPÍTULO; VOCÊ DEVERÁ SER CAPAZ DE:
• Escolher o tipo de forro ideal para a sua edificação;
• Executar corretamente os apoios das lajes pré fabricadas;
• Especificar corretamente o escoramento e contraventamento das lajes pré fabricadas; • Especificar o tipo de armadura adicianal para as lajes pré fabricadas
• Executar corretamente a cura e a desforma.
Existem vários tipos de forros. Dependendo do tipo de obra, fica a cargo do projetista a sua escolha, levando em consideração a acústica, o acabamento, a estética, etc...
Os forros mais comuns são: madeira, gesso, aglomerados de celulose, laje maciça, laje pré-fabricada, laje protendidas, etc...
5.1 - FORRO DE MADEIRA
Geralmente são lâminas de pinho, pinus, ipê, jatobá, muiracatiara, etc...(Figura 5.1) e são pregadas em entarugamentos executados de 0,50 a 0,50m, presos às lajes ou nas estruturas do telhado, por buchas e parafusos ou pendurados por tirantes (Figura 5.2; 5.3)
Figura 5.1 - Tipos de forros de madeira
em telhado
Figura 5.2 - Fixação do forro na estrutura do telhado
Figura 5.2 - Fixação do forro em laje e em tirantes para execução de rebaixos
5.2 - LAJES PRÉ-FABRICADAS
Originam-se das lajes nervuradas e das lajes nervuradas mistas, onde , em geral, as peças pré-fabricadas são empregadas para a formação das nervuras. Entre elas, colocam-se elementos intermediários de cerâmica, concreto ou outros materiais, e o revestimento de concreto, feito no local, tem a função de solidarização dos elementos, além de resistir os esforços à compressão, oriundos da flexão.
As variedade desse produto é grande e a sua escolha depende de vários fatores tais como: estrutural, econômico, etc... Podemos ter:
- Laje pré-fabricada "comum"
- Laje treliça
- Tipo Brasília - Protendidas etc...
Nesta apostila abordaremos as lajes pré "comum" e as treliças, visto serem as mais utilizadas em obras de pequeno porte.
5.2.1 - Generalidade sobre a laje pré-fabricada "comum"
a) - Elementos que a compõem:
• Vigota de concreto pré fabricada;
• Enchimento entre as vigotas de tijolo cerâmico, elemento de concreto ou EPS; • Capa de concreto (capeamento) de espessura e = variável (Figura 5.5)
Figura 5.4 - Elementos da laje pré fabricada comum
b) - Variação das alturas:
- A diferente altura dos elementos de enchimento, com o lançamento de capas de concreto em espessura adequada, resulta nas variadas alturas de lajes (Figura 5.5).
- - A diferente largura dos elementos de enchimento, proporciona os variados intereixos entre as vigotas.
- - As mais usuais são: β10 para forro e β12 para piso, em vãos máximos de 4,50m. Para vãos maiores, o ideal seriam outros tipos de lajes.
- - Geralmente o concreto utilizado para realizar o capeamento das lajes pré fabricadas é o de 18Mpa, 20 Mpa, ou segundo a orientação do calculista.
Figura 5.5 - Variação das alturas de uma laje pré fabricada comum
c) - Armaduras usuais:
Armadura de distribuição.
A armadura de distribuição em lajes pré-moldadas tem a finalidade de limitar a fissuração que poderá ocorrer pela retração e/ou variação de temperatura e ainda melhora a monoliticidade do painel da laje, aumentando sua rigidez e evitando a fissuração decorrente de deslocamento diferenciais, que deverão ocorrer entre suas vigotas de concreto. Caso não esteja especificado no projeto podemos adotar no mínimo:
forro = malha ∅ 6,3mm de 33 x 33cm piso = malha ∅ 6,3mm de 25 x 25cm mínimos 3 ∅ por metro, ou em tela soldada leve para laje.
É aconselhável que a ferragem de distribuição, no sentido da vigota pré fabricada, seja posicionada sobre a mesma.
A armadura de distribuição atinge maior eficiência quando utiliza-se aço com diâmetro menor e em quantidade maior.
Armadura negativa.
A armadura negativa é utilizada quando a laje for semi engastada na estrutura, contínua ou em balanço. A função da armadura negativa é combater os momentos negativos formados pelos vínculos utilizados (Figuras 5.6; 5.7; 5.8; 5.9). Caso não esteja especificado no projeto podemos adotar:
- sobre a vigota, comprimento l/4, podendo também estar posicionada sobre o elemento de enchimento (a quantidade deverá ser fornecida pelo fabricante ou calculista).
d) - Tipos de apoios:
APOIO EM ALVENARIA
Figura 5.6 - Apoio da laje pré comum sobre alvenaria
APOIO EM VIGAS
Figura 5.7 - Apoio da laje pré comum em estruturas de concreto armado
BEIRAISFigura 5.8 - Apoio da laje pré comum passante em beirais
Figura 5.9 - Apoio da laje pré comum balançeado em beirais
f) - Reforços usuais:
Devemos evitar o apoio de elementos estruturais diretamente sobre as lajes pré fabricadas. Caso não seja possível executar uma viga para receber as cargas provenientes de paredes ou muretas, devemos criteriosamente executar um reforço na laje pré fabricada (Figura 5.10). Estes reforços devem ser indicados pelo fabricante ou pelo engenheiro calculista.
Figura 5.10 - Exemplo de reforços em laje pré comum
g) - Vãos livres e consumos de materiais:
A Tabela 5.1 indica os vão livres máximos para intereixo de 41cm dependendo do tipo de apoio e sobrecargas utilizadas. E a Tabela 5.2 o consumo de materiais para capeamento e nervuras por m2 de laje pré fabricada comum.
Tabela 5.1 - Vãos livres máximos para laje pré fabricada comum
Tabela 5.2 - Consumos de materiais para capeamento por m2 de laje
5.2.2 - Generalidades sobre laje Treliça
São lajes em que a viga pré-fabricada é constituída de armadura em forma de treliça, e após concretada, promove uma perfeita solidarização, tendo ainda a possibilidade de utilizar armadura transversal.
Este sistema de pré fabricação conjuga uma série de elementos estruturais independentes, formando com seus componentes, um sistema de pré fabricação semi-fechado e parcial da construção industrializada, integralmente compatibilizado com os sistemas convencionais.
Como em qualquer sistema de pré-fabricação na construção industrializada, o sistema de laje treliça deverá ser considerado na fase do projeto, visando alcançar melhor aproveitamento e eficiência.
a) - Elementos que a compõem:
É constituída por uma armadura treliçada, variando de 7,0 a 25cm de altura, e a mesa inferior concretada com 3 cm de espessura e de 12 a 13cm de largura. O elemento de enchimento pode ser cerâmico de concreto ou EPS (Figura 5.10)
Figura 5.11 - Elementos de uma laje pré fabricada treliça
b) - Variação das alturas:
- A diferente altura do elemento de enchimento e a variação da altura da treliça mais a espessura do capeamento, resulta nas variadas alturas da laje (Figura 5.12).
- - A diferente largura dos elementos de enchimento, proporciona os variados intereixos entre as vigotas.
- - Geralmente o concreto utilizado para realizar o capeamento das lajes pré fabricadas é o de 18Mpa, 20 Mpa, ou segundo a orientação do calculista.
Figura 5.12 - Exemplo das variações das alturas da laje treliça
c) - Armaduras usuais:Armadura de distribuição
Tem as mesmas funções das armaduras de distribuição descrita para as lajes pré fabricadas comuns, sendo no mínimo ou a critério do calculista como:
- forro = ∅ 6,3mm a cada 33cm
- piso = ∅ 6,3mm a cada 25cm
mínimos 3 ∅ por metro
No caso de laje treliça, podemos posicionar a armadura de distribuição, no sentido perpendicular a vigota, formando um ângulo aproximadamente de 90° em relação ao vergalhão negativo da vigota treliçada.
A altura da armação treliçada deve ser igual a altura do elemento intermediário (lajota cerâmica, bloco de concreto, EPS). Portanto a armadura de distribuição posicionada sobre o aço negativo da armação treliçada fica no mínimo 1,0cm acima do elemento intermediário proporcionando o envolvimento do capeamento de concreto no ato da concretagem.
Nas lajes treliças ,além da finalidade descrita para as lajes comuns, a armadura de distribuição assume dentro da laje treliça a função de combater as tensões de cizalhamento que surgem entre a alma e a aba das nervuras das lajes treliças.
A armadura de distribuição atinge maior eficiência quando utiliza-se aço com diâmetro menor e em quantidade maior.
Armadura negativa.
A armadura negativa negativa deve estar posicionada em cima de cada viga treliça, com no mínimo 2 ∅, sendo que sua bitola deverá ser fornecida pelo calculista, ou fabricante.
d) - Tipos de apoios e reforços:
Na laje treliça podemos ter uma mobilidade das paredes internas, que podem ser apoiadas diretamente sobre a laje, e ainda nos permite em certos casos a passagem de tubulações(Figura 5.16). Isso é facilitado pelo fato da vigota ser concretada na obra, possibilitando efetuar vários reforços (Figuras 5.14; 5.16; 5.16)
Figura 5.13 - Apoio da laje treliça em estrutura de concreto armado
Figura 5.14 - Armadura adicional de tração
Figura 5.15 - Armadura adicional de compressão
Figura 5.16 - Reforços em laje treliça
Na laje treliça temos facilidade na execução de nervuras perpendicular as vigotas, para reforços em aberturas do tipo domos, pergolados, etc (Figura 5.17), e no seu transporte (Figura 5.18)Figura 5.17 - Exemplo de execução de nervuras
Figura 5.18 - Manuseio da laje treliça
e) - Vãos livres:Na Tabela 5.3 temos os vãos máximos para intereixo de 45cm dependendo do tipo de apoio e sobrecarga adotada.
Tabela 5.3 - Vãos máximos para a laje treliça
f) - Vantagens:
- Perfeita planimetria dos tetos, dada a ausência de contraflecha inicial. Como conseqüência, o trabalho de revestimento com chapisco, emboço e reboco, fica extremamente facilitado e rápido, permitindo menor consumo de argamassa.
- Garantia de inexistência de fissuras nos tetos, porquanto a alma metálica garante a perfeita ligação da VIGOTA ao concreto, completado na obra, impedindo a rotação da VIGOTA quando o pavimento entrar em carga.
- Facilidade de manuseio e transporte, conferido pelo próprio formato da VIGOTA.
- Facilidade de montagem, dada à leveza da VIGOTA, de aproximadamente 12kg por metro linear.
- Execução de balanços aliviados sem necessidade de contrabalanço.
- Comportamento ao fogo idêntico ao do concreto armado, permitindo a utilização de PISOS LEVES nas construções, onde se exija resistência à ação do fogo
- Podem ser aplicadas na obra, dispensando a utilização de um concreto complementar. De fato, em pequenas obras onde apenas se consegue um concreto fck 18,0 , esta característica traduz-se numa segurança para o construtor.
5.2.3 - Montagem e execução das Lajes pré-fabricadas
Já no início da obra, deve-se pedir para o fornecedor, quando as paredes estiverem com 1,00m de altura, para que sejam tiradas as medidas para a confecção das vigas.
Chegando as paredes no seu respaldo, executa-se a cinta de amarração, ou uma viga armada, sobre a qual se apoia ou se semi-engastam as vigotas da laje pré-fabricada.
As vigotas geralmente são colocadas nas menores dimensões dos ambientes, ou de acordo com o projeto, e procedendo-se da seguinte forma:
a) - Escolha do material:
Verificar a colocação somente pela planta que lhe é fornecida junto ao material, para a escolha das vigas, das armaduras de distribuição e das armaduras negativas.
b) - Escoramento:
Todos os vãos superiores a 1,50m para as lajes pré-fabricadas "comuns" e 1,20 a 1,40m para as lajes treliças (piso e forro respectivamente), deverão ser escorados por meio de tábuas colocadas em espelho, sobre chapuz, e pontaletadas (Figura 5.19). Os pontaletes deverão ser em nº de 1(um) para cada metro, e são contraventados transversal e longitudinalmente, assentados sobre calços e cunhas, em base firme, que possibilitem a regulagem da contra flecha fornecida pelo fabricante, geralmente de aproximadamente 0,4¨% do vão livre.
Figura 5.19 - Exemplo de escoramento para laje pré fabricada
c) - Colocação da laje:
A vigota pré-fabricada deverá estar centrada no vão, de modo que a superfície de contato do concreto seja a mesma para cada apoio.
Coloque a viga usando uma intermediária em cada extremidade para espaçá-las exatamente. A primeira carreira de intermediária deve apoiar, de um lado sobre a parede ou apoio e do outro sobre a primeira vigota. Coloque todas as intermediárias restantes entre as vigotas pré-fabricadas (Figura 5.20).
As vigotas pré-fabricadas deverão estar sempre apoiadas pelo concreto, visto que os ferros não tem rigidez suficiente para tal.
Figura 5.20 - Detalhe da colocação da laje pré fabricada
d) - Armaduras de distribuição e negativas:Distribuir os ferros de acordo com as indicações de bitola e quantidades da planta fornecida pelo fabricante.
A armadura negativa no caso de laje pré-fabricada "comum" deve ficar sobre a vigota e no meio da espessura da capa de concreto. Não deverá ficar nas juntas, entre as vigotas e os blocos de cerâmica.
No caso de laje treliça, a armadura poderá ser amarrada junto ao banzo da vigota préfabricada.
Figura 5.21 - Detalhe da colocação da armadura negativa
Após a colocação das armaduras podemos colocar os conduites e as caixinhas da parte elétrica. Os conduites devem ficar bem fixos junto a laje e sobre a armadura de distribuição e negativa. Ter o cuidado de não estrangular os conduites nas curvas.As caixinhas devem ser preenchidas com serragem úmida para evitar a entrada do concreto no momento da concretagem.
e) - Concretagem:
Molhar bem o material antes de lançar o concreto, este deve ser socado com a colher de pedreiro , para que penetre nas juntas entre as vigas pré-fabricadas e os blocos cerâmicos.
Salvo alguma restrição do calculista, o concreto da capa será de traço 1:2:3 com resistência mínima aos 28 dias de 18 a 20 MPa.
Quanto às espessuras das capas de concreto para cada caso podemos seguir o ítem "b" das generalidades descritas neste capítulo.
Para se concretar lajes que foram executadas sem escoramento (pequenos vãos), ou com uma linha de escoramento, é conveniente que se concrete primeiramente junto aos apoios para solidarizar as pontas das vigotas pré-fabricadas.
f) - Cura do concreto e desforma
Após o lançamento do concreto a laje deverá ser molhada, no mínimo, três vezes ao dia durante três dias (verificar maiores detalhes sobre cura na Anotações de Aula no 12).
O descimbramento da laje pré-fabricada, como em qualquer estrutura, deve ser feito gradualmente e numa seqüência que não solicite o vão a momentos negativos, geralmente em torno de 21 dias para pequenos vãos e 28 dias nos vãos maiores, salvo indicações do responsável técnico.
Nas lajes de forro é aconselhável que o escoramento seja retirado após a conclusão dos serviços de execução do telhado.
g) - Cuidados
Para caminhar sobre a laje durante o lançamento do concreto, é aconselhável fazê-lo sobre tábuas apoiadas nas vigotas para evitar quebra de materiais ou possíveis acidentes.
Figura 5.22 - Detalhe do apoio das tábuas
ANOTAÇÕES
1 – Verificar sempre os escoramentos e contraventamentos.
2 – Verificar o comportamento estrutural dos apoios das lajes pré fabricadas.
3 – Proporcionar uma contra flecha compatível com o vão a ser vencido.
4 – Molhar até a saturação a concretagem no mínimo 3 dias e três vezes ao dia.
Noções de segurança:
- Andar sempre sobre passarela executada com tábuas e nunca no elemento intermediário, mesmo sendo bloco de concreto.
- Para evitar quedas de operários ou de materiais da borda da laje deve-se prever a colocação de guarda corpo de madeira ou metal, com tela, nas bordas da periferia da laje.
- Utilizar andaimes em todos os trabalhos externos à laje.
TÉCNICAS DE CONSTRUÇÃO CIVIL E CONSTRUÇÃO DE EDIFÍCIOS
COBERTURA
APÓS ESTUDAR ESTE CAPÍTULO; VOCÊ DEVERÁ SER CAPAZ DE:
• Escolher a estrutura de telhado adequada para cada tipo de telha;
• Conhecer as diversas peças que compõe uma estrutura de telhado;
• Escolher a telha ideal bem como as inclinações; • Especificar e dimensionar corretamente as calhas;
• Desenhar todas as linha de telhado.
O telhado compõe-se da estrutura, cobertura e dos condutores de águas pluviais.
- A estrutura: é o elemento de apoio da cobertura, que pode ser: de madeira, metálica, etc...
- A cobertura: é o elemento de proteção, que pode ser: cerâmico, de fibrocimento, alumínio, de chapa galvanizada, etc...
- Os condutores: são para o escoamento conveniente das águas de chuva e constituemse de: calhas, coletores, rufos e rincões, são de chapas galvanizadas e de p.v.c.
6.1 - ESTRUTURAS DE MADEIRA
Para facilitar, podemos dividir a estrutura em armação e trama (Figura 6.1).
A armação é a parte estrutural, constituída pelas tesouras, cantoneiras, escoras, etc... e a trama é o quadriculado constituído de terças, caibros e ripas, que se apoiam sobre a armação e por sua vez servem de apoio às telhas.
Figura 6.1 - Esquema de estrutura de telhado
6.1.1 Materiais utilizados nas estruturas
a) - madeira:
Podemos utilizar todas as madeiras de lei para a estrutura de telhado (Tabela 6.1), no entanto a peroba tem sido a madeira mais utilizada.
Caso se utilize madeiras que não conste na Tabela 6.1 devemos verificar se as mesmas possuem as características físicas e mecânicas a seguir:
- resistência à compressão (fc), a 15% de umidade, igual ou superior a 55,5 MPa.
- Módulo de ruptura à tração igual ou superior a 13,5 MPa.
Tabela 6.1 - Algumas espécies de madeiras indicadas para a estrutura de telhado (IPT)
| A | B | C |
| amendoim | angelim | anjico preto |
| canafístula | cabriúva parda | guaratã |
| guarucaia | cabriúva vermelha | taiuva |
| jequitibá branco | caovi | |
| laranjeira | coração de negro | |
| peroba rosa | cupiuba faveiro garapa guapeva louro pardo Mandigau pau cepilho pau marfim sucupira amarela |
As madeiras serradas das toras já são padronizadas em bitolas comerciais. No entanto, existem casos onde o dimensionamento das peças exigem peças maiores ou diferentes, assim sendo deve-se partir para seções compostas (nestes casos estudadas na disciplina Estruturas de Madeira).
- vigas: 6 x 12cm ou 6 x 16cm, comprimento 2,5; 3,0; 3,5; 4,0; 4,5; 5,0m
- caibros: 5 x 6cm ou 5 x 7 (6 x 8)cm, comprimento 2,5; 3,0; 3,5; 4,0; 4,5; 5,0m - ripas: 1,0 x 5,0cm; geralmente com 4,50m de comprimento e são vendidas por dúzia.
Obs. Para bitolas diferentes ou comprimentos maiores, o preço da peça aumenta.
b) - peças metálicas:
As peças metálicas utilizadas em estruturas de telhado são os pregos, os parafusos, chapas de aço para os estribos e presilhas.
Os pregos mais utilizados são:
22 x 42 ou 22 x 48 - para pregar as vigas
22 x 42 ou 19 x 39 - para pregar os caibros 15 x 15 - para pregar as ripas.
Os pregos obedecem as normas EB-73 e PB-58/ ABNT. A designação dos pregos com cabeça será por dois nºs. a x b .
a = refere ao diâmetro, é o nº do prego na Fiera Paris
ex: 15 = 2,4 mm 18 = 3,4 mm b = representa o comprimento medido em "linhas" - 2,3 mm, unidade correspondente a 1/12 da polegada antiga.
OBS: vide tabela de pregos no anexo ao final da apostila.
6.1.2 - Peças utilizadas nas estruturas de telhado
a) Tesoura dos telhados
As tesouras são muito eficientes para vencer vãos sem apoio intermediários (Figura 6.2). São estruturas planas verticais que recebem cargas paralelamente ao seu plano, transmitindo-as aos seus apoios. Geralmente são compostas por:
Frechal: Peça colocada sobre a parede e sob a tesoura, para distribuir a carga do telhado.
Perna: Peças de sustentação da terça, indo do ponto de apoio da tesoura do telhado ao cume, geralmente trabalham à compressão.
Linha: Peça que corre ao longo da parte inferior de tesoura e vai de apoio a apoio, geralmente trabalham à tração.
Estribo: São ferragens que garantem a união entre as peças das tesouras. Podem trabalhar à tração ou cisalhamento.
Pendural e tirante: Peças que ligam a linha à perna e se encontram em posição perpendicular ao plano da linha. Denomina-se pendural quando a sua posição é no cume, e nos demais tirante. Geralmente trabalham à tração.
Asna e escoras: São peças de ligação entre a linha e a perna, encontram-se, geralmente, em posição oblíqua ao plano da linha, denomina-se asna a que sai do pé do pendural, as demais de escoras. Geralmente trabalham à compressão.
:
Obs. Não iremos nos estender sobre o cálculo estrutural das estruturas de telhados por constituir assunto de cadeira a parte. Queremos apenas reproduzir as tesouras simples para obras de pequeno porte. A Figura 6.2 mostra uma seção típica de uma estrutura de telhado
Figura 6.2 - Seção típica de uma estrutura de telhado
Em tesouras simples no mínimo devemos saber::
- Vãos até 3,00m não precisam de escoras.
- Vãos acima de 8,00m deve-se colocar tirantes.
- O espaçamento ideal para as tesouras deve ficar na ordem de 3,0m.
- O ângulo entre a perna e a linha é chamado de inclinação;
- O ponto é a relação entre a altura da cumeeira e o vão da tesoura.
- A distância máxima entre o local de intersecção dos eixos da perna e da linha é a face de apoio da tesoura deverá ser ≤ 5,0cm. (Figura 6.3)
- As tesouras devem ser contraventadas, com mãos francesas e diagonais na linha da cumeeira. (Figura 6.4)
Figura 6.3 - Detalhe do apoio da tesoura sobre o frechal
Figura 6.1 - Esquema de contraventamento das tesouras
c) Terças
As terças apoiam-se sobre as tesouras consecutivas (Figura 6.5) ou pontaletes (Figuras 6.16; 6.17; 6.18), e suas bitolas dependem do espaço entre elas (vão livre entre tesouras), do tipo de madeira e da telha empregada. Podemos adotar na prática e utilizando as madeiras da Tabela 6.1:
- bitolas de 6 x 12 se o vão entre tesouras não exceder a 2,50m.
- bitolas de 6 x 16 para vãos entre 2,50 a 3,50m.
Estes vãos são para as madeiras secas. Caso não se tenha certeza, devemos diminuir ou efetuar os cálculos utilizando a Tabela 6.2 mais precisa e que leva em consideração o tipo de madeira e de telha:
Para vãos maiores que 3,50m devemos utilizar bitolas especiais o que não é aconselhável pelo seu custo.
As terças são peças horizontais colocadas em direção perpendicular às tesouras e recebem o nome de cumeeiras quando são colocadas na parte mais alta do telhado (cume), e contra frechal na parte baixa (Figura 6.5).
As terças devem ser apoiadas nos nós das tesouras.
Figura 6.5 - Esquema do apoio das terças nas tesouras
Tabela 6.2 - Vão máximo das terças (m)
| Vão dos caibros (m) | Francesa, Romana, Portuguesa ou plan | Colonial | |||||||||||
| A | B | C | A | B | C | A | B | C | A | B | C | ||
| 1,00 a 1,20 | 2,70 | 2,85 | 3,10 | 3,30 | 3,50 | 3,85 | 2,50 | 2,65 | 2,90 | 3,20 | 3,40 | 3,75 | |
| 1,21 a 1,40 | 2,55 | 2,70 | 2,95 | 3,15 | 3,30 | 3,60 | 2,40 | 2,50 | 2,75 | 3,05 | 3,20 | 3,50 | |
| 1,41 a 1,60 | 2,40 | 2,60 | 2,80 | 3,00 | 3,15 | 3,45 | 2,30 | 2,40 | 2,60 | 2,90 | 3,10 | 3,35 | |
| 1,61 a 1,80 | 2,30 | 2,45 | 2,70 | 2,85 | 3,05 | 3,30 | 2,20 | 2,30 | 2,50 | 2,80 | 2,45 | 3,20 | |
| 1,81 a 2,00 | 2,25 | 2,40 | 2,60 | 2,75 | 2,90 | 3,20 | 2,20 | 2,40 | 2,85 | 3,10 | |||
| 2,01 a 2,20 | 2,30 | 2,50 | 2,80 | 3,10 | 2,35 | 3,00 | |||||||
| 2,21 a 2,40 | 2,45 | 3,00 | |||||||||||
| 2,41 a 2,60 | 2,35 | 2,90 | |||||||||||
| Seção transversal (cm) | x 12 | x 16 | x 12 |
d) Caibros
Os caibros são colocados em direção perpendicular às terças, portanto paralela às tesouras. São inclinados, sendo que seu declive determina o caimento do telhado.
A bitola do caibro varia com o espaçamento das terças, com o tipo de madeira e da telha. Podemos adotar na prática e utilizando as madeiras da Tabela 6.1:
:
- terças espaçadas até 2,00m usamos caibros de 5 x 6.
- quando as terças excederem a 2,00m e não ultrapassarem a 2,50m, usamos caibros de 5x7 (6x8).
Os caibros são colocados com uma distância máxima de 0,50m (eixo a eixo) para que se possa usar ripas comuns de peroba 1x5.
Estes vãos são para as madeiras secas. Caso não se tenha certeza, devemos diminuir ou efetuar os cálculos utilizando a Tabela 6.3.
Tabela 6.3 - Vão Máximo dos Caibros (m)
| Tipo de madeira | Francesa, Romana, Portuguesa ou plan | Colonial ou Paulista | |||
| A | 1,40 | 1,90 | 1,40 | 1,80 | |
| B | 1,60 | 2,20 | 1,60 | 2,00 | |
| C | 2,00 | 2,50 | 2,00 | 2,20 | |
| Seção transversal (cm) | 5x6 | 5x7 | 5x6 | 5x7 |
e) Ripas
As ripas são a última parte da trama e são pregadas perpendicularmente aos caibros. São encontradas com seções de 1,0x5,0cm (1,2x5,0cm).
O espaçamento entre ripas depende da telha utilizada. Para a colocação das ripas é necessário que se tenha na obra algumas telhas para medir a sua galga. Elas são colocadas do beiral para a cumeeira, iniciando-se com duas ripas ou sobre testeira (Figura 6.6).
Portanto, para garantir esse espaçamento constante, o carpinteiro prepara uma guia (galga) (Figura 6.7).
Figura 6.6 - Detalhe da colocação da primeira ripa ou testeira
Figura 6.7 - Detalhe da galga
As ripas suportam o peso da telhas, devemos portanto, verificar o espaçamento entre os caibros. Se este espaçamento for de 0,50 em 0,50m, podemos utilizar as ripas 1,0x5,0m. Se for maior, utilizamos sarrafos de 2,5x5,0m (peroba).6.1.3 - Ligações e emendas
Na construção das estruturas de telhado faz-se necessário executar ligações e emendas, com encaixes precisos para isso devemos saber:
recorte: - h = altura da peça - r = recorte, r ≥ 2cm
- 1/8 h ≤ r ≤ 1/4 h
Figura 6.8- Detalhe da ligação entre a linha e a perna (Moliterno, 1992)
Figura 6.9- Detalhe da ligação entre a linha e a perna (Moliterno, 1992)
Figura 6.10 - Detalhe da ligação entre a perna e a escora (Moliterno, 1992)
Figura 6.11 - Detalhe da ligação entre as pernas e o pendural (Moliterno, 1992)
Figura 6.12 - Detalhe da ligação entre as pernas e o pendural (Moliterno, 1992)
Figura 6.13 - Detalhe da ligação entre a linha, asnas e pendural (Moliterno, 1992)
As emendas das terças devem estar sobre os apoios, ou aproximadamente 1/4 do vão, no sentido do diagrama dos momentos fletores (Figura 6.16), com chanfros à 45° para o uso de pregos ou parafusos(Figuras 6.14 e 6.15).
Figura 6.14- Detalhe da emenda das terças com pregos
Figura 6.15- Detalhe da emenda das terças com parafusos e chapas
Figura 6.16- Detalhe das emendas de uma linha de terças
6.1.4 - Telhado pontaletado
Podemos construir o telhado sem o uso de tesouras. Para isso, devemos apoiar as terças em estruturas de concreto ou em pontaletes.
Em construções residenciais, as paredes internas e as lajes oferecem apoios intermediários. Nesses casos, portanto, o custo da estrutura é menor.
O pontalete trabalha à compressão e é fixado em um berço de madeira apoiado na laje. Sendo assim, a laje recebe uma carga distribuída (Figura s6.17 e 6.18).
Nas lajes maciças, onde tudo é calculado, podemos apoiar em qualquer ponto. Entretanto na lajes pré não devemos apoiar sobre as mesmas e sim na direção das paredes (Figuras 6.17 e 6.19).
Havendo necessidade de se colocar um pontalete fora das paredes, é necessário que se faça uma viga de concreto invertida para vão grandes ou vigas de madeira nos vãos pequenos. Devemos ainda, ter algumas precauções como:
- a distância dos pontaletes deve ser igual a das tesouras.
- a distância entre as terças deve ser igual à distância das mesmas quando apoiadas nas tesoura
- deverá ser acrescido aos pontaletes, berço (de no mínimo 40cm) para distribuir melhor os esforços, mãos francesas (nas duas direções do pontalete) ou tirantes chumbados nas lajes para dar estabilidade ao conjunto.
Figura 6.17- Apoio dos pontaletes em berços
Figura 6.18- Detalhe do berço para distribuição das cargas
Figura 6.19- Detalhe do apoio dos pontaletes sobre as paredes
6.1.5 - Recomendações:- Reconhece-se um bom trabalho de carpinteiro, quando os alinhamentos das peças são perfeitos, formando cada painel do telhado um plano uniforme. Um madeiramento defeituoso nos dará um telhado ondulado e de péssimo aspecto.
- Não devemos esquecer a colocação da caixa d'água, antes do término, pelo carpinteiro, do madeiramento.
- Quando o prego for menor do que a peça que ele tem que penetrar, deve ser colocado em ângulo (Figura 6.20). Coloque-o numa posição próxima e inclinada suficiente para que penetre metade de sua dimensão em uma peça e metade em outra. O ideal seria o prego penetrar 2/3.
Figura 6.20- Detalhe da fixação por pregos menores
- Quando tiver que pregar a ponta de uma peça em outra, incline os pregos para que estes não penetrem paralelamente às fibras e sim o mais perpendicular possível a elas (Figura 6.21).Figura 6.21- Detalhe da fixação das ripas nos caibros
- para evitar fissuras na madeira, devemos pregar da seguinte maneira:* no final de uma ripa, no caibro, não alinhar os pregos (Figura 6.22)
* achatar um pouco a extremidade do prego
* furar a madeira e depois introduzir o prego * pregar a madeira mais fina à mais grossa.
Figura 6.22- Fixação das ripas nos caibros
6.2 - COBERTURA
Neste capítulo iremos abordar as telhas cerâmicas visto serem as mais utilizadas em obras residênciais. As demais telhas (fibrocimento, alumínio, galvanizada) são mais utilizadas em obras comerciais e industriais. Para a sua utilização, é conveniente solicitar a orientação de um técnico do fabricante ou mesmo o uso de catálos técnicos.
As telhas cerâmicas têm início com a preparação da argila, e consiste na mistura de várias argilas. Na próxima etapa, a argila já misturada passa por uma moagem e por uma refinação chegando até a extrusora, onde o pó de argila se transforma em massa homogênea e sem impurezas. Essa massa passa pelas prensas de moldagem, indo diretamente para a secagem. Só então é feita a primeira seleção e a primeira queima em forno a uma temperatura de 900°C.
Devem apresentar som metálico, assemelhando ao de um sino quando suspensas por uma extremidade e percutidas. Não devem apresentar deformações, defeitos ou manchas.
As telhas são assentadas com o máximo cuidado e alinhadas perfeitamente. Algumas peças são assentadas com argamassa de cimento, cal e areia no traço 1:2:8. São as cumeeiras (Figura 6.23) e espigões e , quando forem do tipo canal, também as telhas dos beirais e oitões. É o que se chama de emboçamento das telhas. O consumo da argamassa é na ordem de 0,002m³/m² de telhado.
Figura 6.23- Acabamento da cumeeira
Para inclinações de telhados acima de 45°, recomenda-se que as telhas sejam furadas para serem amarradas ao madeiramento, com arame galvanizado ou fio de cobre.Ao cobrir, usar régua em vez de linha, desde a ponta do beiral até a cumeeira, e deslocar de acordo com a medida da telha, cobrindo sempre do beiral para a cumeeira, colocando duas ripas sobrepostas ou testeiras para regularmos a altura da 1ª telha (Figura 6.6). As telhas cerâmicas mais utilizadas são:
- Francesa ou Marselha
- Paulista ou Canal ou Colonial
- Paulistinha
- Plan
- Romana
- Portuguesa
- Termoplan (Vasatex)
a) Telha francesa
Tem forma retangular, são planas e chatas, possuem numa das bordas laterais dois canais longitudinais.
Para encaixe, nas bordas superiores e inferiores, cutelos em sentido oposto. Os encaixes em seus extremos servem para fixação e para evitar a passagem da água.
- 15 un por m²
- peso: 45 kgf/m² - seca
54 kgf/m² - saturada
- dimensões ≅ 40 cm de comp. por 24 cm de largura - inclinação: 33%
- Cumeeira: 3 un/ml
Figura 6.24- Telha francesa
b) Telha paulista
Constituem-se de duas peças diferentes, canal, cuja função é de conduzir a água e capa, que faz a cobertura dos espaços entre dois canais.
- 26 un por m²
- peso: 69 kgf/m² - seca
83 kgf/m² - saturada
- dimensões: ≅ 46cm comp. (canal)
46 cm comp. (capa)
18 cm largura (canal)
16 cm largura (capa)
- inclinação: 25%
- cumeeiras: 3un/m
Figura 6.25- Telha paulista
c) Tipo plan
Tem as características da telha paulista, mas melhoradas, tem os cantos arredondados e a seção retangular.
- 26 un por m²
- inclinação: de 20 a 25% - cumeeiras: 3 un/m
- 72 kgf/m² - seca peso:
86 kgf/m² - saturada
- dimensões: 46cm comp.(capa)
46cm comp. (canal)
16cm largura (capa)
18cm largura (canal)
Figura 6.26- Telha Plan
d) Telha romana e telha portuguesa
A telha romana tem o mesmo formato que as telhas plan, somente que nesses tipos o canal é junto com a capa. A portuguesa é igual à paulista.
- inclinação mínima: 30%
- 16 peças por m²
- 48kgf/m² - seca peso:
58 kgf/m² - saturada
Figura 6.27- Telha romana e Portuguesa
d) Termoplan
Como o próprio nome indica, a termoplan através de dupla camada, consegue um isolamento térmico e um isolamento de umidade.
- inclinação mínima: 30%
- 15 peças por m²
- peso: 54 kgf/m² - seca
65 kgf/m² - saturada
- dimensões: 45,0cm comprimento
21,5cm largura
Figura 6.28- Telha Termoplan
f) Telha germânica
A montagem é feita em escamas de peixe com as seguintes características:
- 30 telhas por m²
- peso unitário: 1.475g
- inclinação mínima: 45%
Quando for colocado isolante térmico, calcular ventilação do forro.
Figura 6.29- Telha Germânica
6.2.2 - Inclinação dos telhados
As inclinações citadas em cada tipo de telha relaciona-se a telhados retos. Os cuidados devem ser redobrados quando os telhados forem selados também chamados de corda bamba. Devido ao seu traçado, as águas pluviais ganham uma velocidade maior no seu início (cume) e perdem no seu final (beiral), fazendo com que as águas retornem, infiltrando parte das águas nos telhados. O ponto de transição é onde o telhado é mais selado. Portanto, a inclinação mínima deve ser conseguida na posição onde o telhado estiver mais selado (Figura 6.30).
As inclinações dos telhados selados devem no mínimo seguir a Tabela 6.4:
Figura 6.30- Inclinações mínimas para telhados selados com vão até 8,0m
Tabela 6.4 - Dimensões mínimas para telhados selados com vão até 8,0m
| x (m) | x1 (m) | y1 (m) | x2 (m) | y2 (m) | y (m) |
| 3,0 | 1,5 | 0,45 | 1,5 | 0,60 | 1,05 |
| 4,0 | 2,0 | 0,64 | 2,0 | 0,88 | 1,52 |
| 5,0 | 2,5 | 0,85 | 2,5 | 1,20 | 2,05 |
| 6,0 | 3,0 | 1,08 | 3,0 | 1,44 | 2,52 |
| 7,0 | 3,5 | 1,33 | 3,5 | 1,75 | 3,08 |
| 8,0 | 4,0 | 1,60 | 4,0 | 2,24 | 3,84 |
Figura 6.31- Detalhe da estrutura de um telhado selado
6.3 - CONDUTORES
São os complementos das coberturas, dando-lhes o arremate e evitando com isso as infiltrações de águas de chuvas.
Partes constituintes do sistema de águas pluviais:
6.3.1 Calhas
São captadoras de águas pluviais e são colocadas horizontalmente. São geralmente confeccionadas com chapas galvanizadas nº 26 e 24.
As chapas galvanizadas geralmente medem 1,00m e 1,20m de largura por 2,00m de comprimento mas para a confecção das calhas o que se utiliza é a bobina de chapa galvanizada (pois diminui o número de emendas) e mede 1,0 ou 1,20m de largura e comprimento variável. Portanto, para maior aproveitamento das chapas e ou bobinas, quanto a sua largura, e para reduzir o preço das peças, as mesmas são "cortadas" em medidas padrões que são:
Cortes: 10 - 12 - 15 - 20 - 25 - 28 - 30 -33 -39 ou 40 - 50 - 61 - 75 - 1,00
Os cortes mais utilizados para as calhas são o corte 33 e 50.
Tipos de calhas:
a) - coxo:
Figura 6.32 - Calha tipo coxo
b)- platibanda
Figura 6.33 - Calha tipo platibanda
c) - moldura
Figura 6.34 - Calha tipo moldura
6.3.2 Água furtada:
São captadoras de águas pluviais e são colocadas inclinadas. São confeccionadas, como as calhas, com chapas galvanizadas nº 26 e 24.
Figura 6.35 - Detalhe de uma água furtada
6.3.3 Condutores:São canalizações verticais que transportam as águas coletadas pelas calhas e pelas águas furtadas aos coletores.
Podem ser de chapas galvanizadas ou de PVC e devem ter diâmetro mínimo de 75mm.
6.3.4 Coletores
São canalizações compreendidas entre os condutores e o sistema público de águas pluviais.
6.3.5 Rufos e Pingadeiras:
Os rufos e as pingadeiras geralmente são confeccionados com chapa no 28 (mais finas)
Figura 6.36 - Detalhes da utilização dos rufos e das pingadeiras
6.4 - DIMENSIONAMENTO
6.4.1 - Calhas:
Para o dimensionamento das calhas devemos ter dados do índices pluviométricos de região etc..., o que dificulta, em certas cidades, devido ao difícil acesso a esses dados.
Entretanto podemos utilizar na prática, uma fórmula empírica que nos fornece a área da calha "A" (área molhada), a qual tem dado bons resultados.
A = [ n.a (m²)] = cm²
sendo: A = área útil da calha a = área da cobertura que contribui para o condutor n = significa o numero de áreas “a” que contribui para o condutor mais desfavorável.
Para esse dimensionamento devemos dividir o telhado conforme a Figura 6.37
Figura 6.32 - Áreas de contribuição para os condutores
Para o dimensionamento das calhas devemos adotar o condutor mais desfavorável (aquele que recebe maior contribuição de água).
Exemplo:
Figura 6.38 - Divisão do telhado em áreas "a"
1º necessitamos de uma calha com área útil de 50,0cm²2º devemos verificar se é uma área grande ou não
3º Se for grande, podemos aumentar o nº de condutores ou adotar uma calha tipo coxo (a mais indicada para esses casos)
4º Se for pequena, adotar calha tipo platibanda, mas sempre verificando as condições de adaptações da calha ao telhado.
Figura 6.39 - Calha tipo platibanda
Figura 6.40 - Calha tipo coxo
Podemos neste caso adotar a calha tipo platibanda corte 33 devido a melhor adaptação ao trabalho e ter uma contribuição de água relativamente pequena. A calha coxo recebe uma contribuição de água maior (105cm2)6.4.2 - Condutores:
Para o caso de condutores podemos considerar a regra prática:
Um cm² de área do condutor para cada m² de área de telhado a ser esgotado.
Ex. ∅ 3" = 42cm² e ∅ 4" = 80cm²
Exemplo:
No caso anterior temos três condutores de cada lado do telhado. Os da extremidade tem uma área de contribuição de 25cm². Podemos adotar um ∅ de 3".
O do centro recebe a contribuição de 50m², adotando, portanto, um ∅ de 4".
Obs: 1 - Neste caso podemos utilizar o de maior dimensão para todos 2 - Devemos evitar colocar condutores inferiores a 3".
6.5 - FORMAS DE TELHADOS
6.5.1 - Beirais:
Beiral é a parte do telhado que avança além dos alinhamentos das paredes externas, geralmente tem uma largura variando entre 0,40 a 1,00m,e o mais comum é 0,60; 0,80m. Podem ser em laje (Figura 6.41) ou em telhas vã (Figura 6.42).
Figura 6.41 - Beiral em laje
Figura 6.42 - Beiral em telhas vã
6.5.2 - Platibanda:São peças executadas em alvenaria que escondem os telhados e podem eliminam os beirais ou não (Figura 6.43). Neste caso, sempre se coloca uma calha, rufos e pingadeiras .
Figura 6.43 - Detalhe das platibandas
6.5.3 - Linhas do telhado:
Os telhados são constituídos por linhas (vincos) que lhes confere as diversas formas (Figura 6.44). As principais linhas são:
- cumeeiras
- espigões
- águas-furtadas ou rincões
Figura 6.44 - Desenho das linhas de um telhado
- a cumeeira é um divisor de águas horizontal e está representada na figura pela letra (A)- os espigões são, também, um divisor de águas, porém inclinados, letra (B) - as águas-furtadas ou rincões são receptoras de água inclinados, letra (C)
O telhado pode terminar em oitão ou em água. Na figura 6.45, temos um telhado com duas águas e portanto dois oitões, ou um telhado de quatro águas, portanto sem oitões.
Figura 6.45 - Telhados terminando em águas ou em águas mais oitão
6.5.4 - Tipos de telhados
COM UMA ÁGUA:Figura 6.46 - Telhados com uma água (Borges, 1972)
COM DUAS ÁGUAS:
Figura 6.47 - Telhados com duas águas (Borges, 1972)
COM TRÊS ÁGUAS:
Figura 6.48 - Telhados com três águas (Borges, 1972)
COM QUATRO ÁGUAS:
Figura 6.49 - Telhado com quatro águas (Borges, 1972)
Obs: Sempre devemos adotar soluções simples para os telhados pela economia, e facilidade de mão-de-obra, evitando muitas calhas que só trarão transtornos futuros.6.6 - REGRA GERAL PARA DESENHO DAS LINHAS DO TELHADO
O telhado é geralmente representado na mesma escala da planta, isto é, geralmente na escala 1:100. Também é usual representá-lo na escala 1:200.
Indica-se por linhas interrompidas, os contornos da construção pois a cobertura deverá ultrapassar as paredes, no mínimo 0,50m, formando os beirais ou platibanda que são representados por linhas cheias.
As águas do telhado ou os panos, tem seu caimento ou inclinação de acordo com o tipo de telha utilizada.
Ao projetarmos uma cobertura, devemos lembra-nos de algumas regras práticas:
1 - As águas-furtadas são as bissetrizes do ângulo formado entre as paredes e saem dos cantos internos.
2 - Os espigões são as bissetrizes do Ângulo formado entre as paredes e saem dos cantos externos.
3 - As cumeeiras são sempre horizontais e geralmente ficam no centro.
Figura 6.49 - Perspectiva das linhas de um telhado
4 - Quando temos uma cumeeira em nível mais elevado da outra, fazemos a união entre as duas com um espigão, e no encontro do espigão com a cumeeira mais baixa nasce uma água furtada.6.6.1 - Exercícios para desenhos de telhados:
ANOTAÇÕES
1 - As telhas de fibrocimento ou cimento amianto não serão abordadas nesta apostila, devido a grande variedade de marcas e tipos. Quando necessário deveremos utilizar, para consulta, os catálogos técnicos.
2 – Noções de segurança:
- Evitar quedas de materiais e operários da borda das coberturas, utilizando guarda-corpo com tela.
- Utilizar andaimes em todos os trabalhos externos à cobertura.
- Instalar ganchos para fixação de cabos-guia para o engate do cinto de segurança.
TÉCNICAS DE CONSTRUÇÃO CIVIL E CONSTRUÇÃO DE EDIFÍCIOS
ESQUADRIAS
APÓS ESTUDAR ESTE CAPÍTULO; VOCÊ DEVERÁ SER CAPAZ DE:
• Escolher o tipo ideal de esquadrias verificando as suas vantagens e desvantagens;
• Nivelar e colocar no prumo os batentes;
• Especificar corretamente o tipo de fixação dos batentes nas alvenarias e/ou estruturas;
• Especificar as ferragens adequadas para cada tipo de esquadria de madeira
As esquadrias são componentes da edificação que asseguram a proteção quando a penetração de intrusos, da luz natural e da água. Com a sua evolução, as esquadrias deixaram apenas de proteger e adquiriram também o lugar de decoração de fachadas.
Os primeiros edifícios empregavam esquadrias de madeira, dado que a mão de obra era barata e o material abundante. Com a revolução industrial apareceram as esquadrias metálicas.
7.1 - ESQUADRIAS DE MADEIRA (CARPINTARIA)
7.1.1 - Portas
Compõem-se de batente, que é a peça fixada na alvenaria, onde será colocada a folha por meio de dobradiças . A folha é a parte móvel que veda o vão deixado pelo batente e por fim a guarnição, que é um acabamento colocado entre o batente e a alvenaria para esconder as falhas existentes entre o batente e a alvenaria (Figura 7.1).
Figura 7.1 - Componentes das portas de madeira
a) - Batente:Em geral é de peroba, canafístula, canela, angelim (comercial), podendo ser também da mesma madeira da folha (especial), tem espessura em torno de 4,5cm e largura variando com o tipo de parede: se meio tijolo de 14,0 a 14,5cm, se tijolo inteiro 26,0cm, chamado batente duplo. O batente é composto de dois montantes e uma travessa, que já devem vir montados para a obra. Caso venham desmontados a sua montagem deve ser executada por profissional competente (carpinteiro).
Os batentes devem ficar no prumo e em nível. Para que isso ocorra, podemos proceder da seguinte maneira (Figura 7.2):
1 - Devemos marcar inicialmente o nível do piso acabado próximo ao batente.
2 - Para facilitar o assentamento, elevamos este nível em 1,0m.
3 - Estica-se uma linha no referido nível.
4 - Marca-se nos montantes, com lápis a medida de 1,09 ou 1,08m da travessa para o "pé" do batente.
5 - No assentamento do batente, igualar a marca de lápis com a linha, ficando o vão da travessa até o piso acabado em 2,09 ou 2,08m, e portanto de 1 a 2cm embutido no piso, para dar melhor acabamento. (assim se garante o nível).
Figura 7.2 - Detalhes da fixação dos batentes das portas
6 - Aprumar os montantes.7 - Depois de aprumado e nivelado, coloca-se cunhas de madeira para o travamento dos batentes e posterior fixação.
Podem ser fixo às alvenaria através de pregos, parafusos, espuma expansiva de poliuretano ou sobre contramarco.
Na fixação com pregos se utiliza o prego 22 x 42 ou o 22 x 48 colocados de 0,5 em 0,5m no mínimo de dois em dois para possibilitar que toda a largura do batente seja fixada. O chumbamento é realizado com uma argamassa de cimento e areia no traço 1:3 em aberturas previamente realizadas nas alvenarias e previamente umedecida (Figura 7.3).
Na fixação por parafusos, a alvenaria deve estar requadrada. Geralmente este processo é utilizado em alvenarias estruturais ou mesmo para fixar batentes em estruturas de concreto armado onde o prumo e dimensões são mais precisos e não é aconselhável a quebra para a fixação dos batentes (Figura 7.3).
Utilizando parafusos com bucha dois a dois e de 0,5 em 0,5 m fixa-se os batentes (este procedimento é feito para evitar o empenamento dos montantes). Para vedar os parafusos podemos utilizar cavilhas ou massa para calafetar.
Na fixação dos batentes com espuma de poliuretano expansiva, requadrar primeiramente o vão da esquadria deixando uma folga aproximadamente de 1,0cm para possibilitar a colocação da espuma. A espuma poderá ser colocada em faixas de aproximadamente 30cm, em 6 pontos sucessivamente, em torno de todo o batente com o auxílio de um aplicador (pistola). Não alisar a espuma. Deixar secar por uma hora, depois pode cortar para dar o acabamento final.
O contramarco, em geral, é constituído de travessa e montante de pequena espessura, fixa à alvenaria através de pregos ou parafusos. E os batentes por parafusos no contramarco.
Este sistema é o ideal, pois os batentes só serão colocados no final da obra, protegendo-os portanto, das avarias geralmente sofridas durante a obra. (revestimentos, choques, abrasões, etc...).
Figura 7.3 - Detalhe da fixação dos batentes por pregos e parafusos
Chama-se vão livre ou vão de luz de um batente, a menor largura no sentido horizontal e menor altura no sentido vertical (Figura 7.4). Esta é a medida que aparece nos projetos.Figura 7.4 - Vão livre ou vão de luz
b) - Folha:É a peça que será colocada no batente por intermédio de, no mínimo, três dobradiças de 3"x 3 1/2" para as folhas compensadas e quatro dobradiças para as folhas maciças recebendo posteriormente a fechadura.
Podem ser lisas, com almofadas, envidraçadas etc..
A folha externa deverá ser mais reforçada e de melhor acabamento, geralmente maciça.
Alguns cuidados devemos ter na escolha das folhas compensadas como:
- Se ela vai ser pintada ou envernizada (a folha para verniz é de melhor acabamento);
- O núcleo das folhas compensadas devem ser constituídos por sarrafos ou colmeias que formem poucos vazios;
- Os montantes das folhas devem ter largura suficiente para proporcionar a fixação das dobradiças e fechaduras;
- As travessas das folhas devem ter largura suficiente para poder cortar sem aparecer o núcleo;
- As folhas compensadas devem ser "encabeçadas" (acabamento dos montantes maciços) evitando assim a vista do topo da chapa compensada.
OBS. Para se verificar se a folha foi bem colocada, ela deverá parar em qualquer posição que você deixá-la.
c) - Guarnição:
Na união do batente com a parede, o acabamento nunca é perfeito. Devemos utilizar a guarnição para dar arremate e esconder esse defeito (Figura 7.5). A guarnição é pregada com pregos sem cabeça 12x12.
Figura 7.5 - Detalhe da fixação das guarnições
c) - Ferragens:Além das dobradiças, temos as fechaduras que podem ser (Figura 7.6):
- tipo gorge - de cilindro - de w.c.
- p/ portas de correr
Figura 7.6 - Tipos de fechaduras para as portas
As fechaduras devem ser colocadas sem danificar as folhas, com bom acabamento e sem deixar folgas quando as folhas estiverem fechadas.7.1.2 - Porta Balcão
São portas que comunicam dormitórios com o terraço ou sacada, mais modernamente em qualquer ambiente. Podem ser consideradas como um misto de porta e janela. Porta, porque permite comunicação entre dois ambientes e janela, porque permite a iluminação e a ventilação.
Compõem-se internamente de duas folhas de abrir, envidraçada (caixilho) e externamente de venezianas, geralmente de duas folhas (Figura 7.7). Podendo ser também de correr.
Figura 7.7 - Porta balcão
7.1.3 - Janelas
As janelas sempre devem comunicar o meio interno com o externo, exceto nas varandas. O modelo da esquadria deve ser adequado ao clima da região e os materiais que as compõe deverão ser de pouca absorção de calor.
As janelas, mesmo tendo aberturas para passagem do ar, devem ser completamente estanques à passagem da água. Portando, deverão ser previstos dispositivos que garantam a estanqueidade à água entre os perfis e partes fixas ou móveis, drenos nos perfis que compõe a travessa inferior, de forma a permitir que a água escoe e seja lançada para o exterior.
Nas janelas, caso haja necessidade, poderão ser projetas de forma a promover isolamento sonoro do ruído externo, utilizando vidros duplos.
Uma vez instalada, as janelas estarão sujeitas às condições ambientais, portanto os materiais que as constituem deverão ser cuidadosamente escolhidos visando a manutenção.
Os componentes mecânicos as folhas móveis bem como os dispositivos devem ser operados com o mínimo de esforço.
As janelas de madeira podem ser compostas apenas de caixilhos (ambientes sociais), ou ainda janelas com venezianas e caixilhos (ambientes íntimos), os batentes com diversas seções e as guarnições.
a) - Batentes:
Geralmente de peroba com dois montantes e duas travessas (Figura 7.8); uma superior e outra inferior, são fixos às alvenarias da mesma forma dos batentes das portas.
Figura 7.8 - Batentes das janelas
b) - Caixilhos:Podem ser de abrir, de correr, basculantes ou guilhotina.
Os caixilhos de abrir, geralmente em nº de dois, utilizam duas dobradiças por folha (3"x3"), cremona e vara.
Os de correr podem ser em nº de quatro, que nesses casos são dois de correr e dois fixos. Utilizam trilhos metálicos, dois roletes por folha móvel e trincos ou fechaduras.
Os caixilhos guilhotina são nº de dois, inferior e superior. Na posição normal, o inferior é o caixilho interno e o superior externo.
Utilizam dois levantadores e duas borboletas para fixá-las na posição superior, quando desejamos abri-la.
Os caixilhos basculantes já vêm montados de fábrica, não cabendo nesta maiores detalhes.
c) - Venezianas:
Permite a ventilação mesmo quando fechada. Cada folha de veneziana é composta de dois montantes e duas travessas: superior e inferior, e as palhetas que preenchem o quadro.
As venezianas podem ter duas folhas (mais comum), quatro folhas ou mais, serem de abrir ou correr.
Devemos tomar cuidado quando colocamos as janelas em paredes de um tijolo, para que as venezianas possam abrir totalmente (Figura 7.9). Para isso devemos utilizar janelas de batentes duplos ou ainda batente simples, mas com venezianas de quatro folhas, ou venezianas de duas folhas mas com dobradiças especiais chamadas palmela.
As venezianas de abrir são fixas por dobradiças (3"x3"). Quando fechadas, são trancadas por cremona, e quando abertas, fixas às paredes por carrancas (Figuras 7.12 e 7.14). Ou através de roldanas ou roletes nas venezianas de correr (Figura 7.13).
Figura 7.9 - Detalhes da fixação das janelas em alvenaria de um tijolo
d - Guarnições:Têm as mesmas funções e detalhes de fixação das colocadas nas portas.
7.1.4 - Tipos de janelas de madeira.
a)- Janelas compostas apenas de caixilhos:
Geralmente de correr (Figura 7.10) ou de abrir (Figuras 7.11), utilizadas nas salas, escritórios, ou seja, nas áreas sociais, basculantes nos WCs, áreas de serviço etc.
Figura 7.10 - Caixilho de correr
Figura 7.11 - Caixilho de abrir
b) - Janelas venezianas e caixilhos:
Podem ser compostas de : venezianas de abrir com caixilhos guilhotina (Figura 7.12), veneziano de correr com caixilhos de correr (Figura 7.13) ou veneziana de abrir com caixilho de abrir (Figura 7.14).
Figura 7.12 - Venezianas de abrir com caixilhos guilhotina
Figura 7.13 - Venezianas de correr com caixilhos de correr
Figura 7.14 - Venezianas de abrir com caixilhos de abrir
c) - Janela tipo Ideal:
Compõem-se normalmente de duas partes: vidraça e veneziana, cada uma delas em dois painéis que são movimentados simultaneamente, sendo que enquanto o painel superior sobe, o inferior desce.
Este movimento existe tanto para a parte das vidraças como para a parte das venezianas.
As dimensões padronizadas são:
altura livre: 1,20m (pode-se conseguir = 1,00m - 1,10m - 1,30m - 1,40m).
largura livre: 1,00m - 1,30m - 1,60m - 1,90m (cada corpo).
Figura 7.15 - Janela tipo Ideal
d) - Janela de enrolar
Figura 7.16 - Janela de enrolar
7.2 - ESQUADRIAS DE METAL (SERRALHERIA)
Podem ser de ferro, utilizando peças perfiladas U,T,I,L, quadrados ou redondos, chatos, etc..., em chapa; em alumínio perfilado, em aço comum ou zincado. Para a junção das diversas peças, são utilizados, rebites ou soldas, e para sua fixação na alvenaria, utilizam-se grapas, chumbadas com argamassa de cimento e areia no traço 1:3 (Figura 7.17). Descrevemos neste capítulo as esquadrias de ferro.
7.2.1 - Janelas:
Podem ser:-
a) - Fixas:
São aquelas que só permitem a entrada de luz (Figura 7.17). Só se justifica o seu emprego quando a ventilação for obtida por outra janela.
Figura 7.17 - Fixação dos caixilhos de ferro na alvenaria e dos vidros nos caixilhos
b) - Basculantes:Permitem a entrada de luz e ventilação. A báscula é um painel de caixilho que gira em torno de um eixo horizontal. O conjunto de báscula, do mesmo caixilho, pode ser acionado por uma única alavanca (Figura 7.18).
Geralmente o caixilho basculante é composto de uma parte fixa e outra móvel. O comprimento das básculas não deve ser superior a 1 metro, sob pena dela se enfraquecer.
Caso se deseje maior, devemos compor as básculas. Os caixilhos basculantes são compostos por:
- Ferro L de contorno externo;
- Ferro T de contorno de parte fixa;
- Ferro L das básculas;
- Matajuntas em ferro L com pingadeira; - Vareta de alavanca;
- Orelha de alavanca.
Figura 7.18 - Detalhe do caixilho tipo basculante
c) - Maxim-air (Máximo-ar) e de empurrar:
São as mais utilizadas nos dias de hoje. Permite-nos uma maior área de ventilação e seus quadros são de grande tamanho, 0,50x0,50m; 0,60x0,60m; 0,70x0,70m etc...Podem ser colocadas no caixilho fixo, grades de segurança, simples ou em arabesco, ficando no caixilho móvel, a colocação do vidro, sendo sua abertura para o exterior (figura 7.19).
Figura 7.19 - Caixilho máximo ar
d) - Janelas Venezianas:As janelas do tipo veneziana, ganharam grande mercado atualmente, pelo seu baixo custo em relação a de madeira, fácil colocação e por serem fabricadas em diversas dimensões.
São compostas de duas venezianas de correr e duas venezianas fixas para o lado externo e internamente, dois caixilhos de correr e dois fixos, onde se colocam os vidros (Figura 7.20).
São fabricadas em chapas de ferro e perfis ou mesmo em alumínio.
Figura 7.20 - Janela veneziana
e) - de abrir:São compostas de folhas, cuja abertura se dá em torno de dobradiças, funcionando como uma porta. São construídos de um quadro em ferro L munido de grapas e de folhas de abrir também em ferro L. O fechamento se dará mediante a aplicação de cremona.
f) - de correr:
São compostas de folhas , que deslizam lateralmente apoiadas sobre trilhos e que receberão os vidros. Podem também ser compostas com venezianas de chapa, e bandeiras (basculantes ou não) (Figura 7.21).
Figura 7.21 - Caixilho de correr
g) - Persianas de projeção:São fabricadas por indústrias especializadas em alumínio ou aço zincado. (Figura 7.22)
Figura 7.22 - Venezianas de projeção
7.2.2 - Portas: São utilizadas basicamente para portas externas.a) - de abrir:
Podem ser de uma ou mais folhas. Cada folha deverá ter a largura mínima de 0,60m e máxima 1,10m, para evitar peso excessivo nas dobradiças. Acima de 1,10m devemos usar duas folhas. Cada folha compõem-se de almofada e grade na parte externa e postigo na parte interna. O postigo apenas ocupa a área da grade.
A almofada é geralmente feita em chapa nº16. A grade poderá ter desenho variado, e os postigos são de abrir e desempenham o papel de permitir a ventilação do vão, mesmo com a porta fechada. No quadro do postigo é que se colocam os vidros.
b) - de correr:
Assemelha-se ao caixilho de correr, as folhas deslizam suspensas por roldanas na parte superior e orientadas por um guia no piso.
7.3 - REPRESENTAÇÃO DE PORTAS E JANELAS (GRÁFICAS)
7.3.1 – Portas
Figura 7.23 - Representação das portas em planta e vista
2 – Janelas
Figura 7.24 - Representação dos caixilhos basculante e máximo ar
Figura 7.25 - Representação dos caixilhos de empurrar e guilhotina
Figura 7.26 - Representação dos caixilhos de correr e de abrir
Figura 7.27 - Representação dos caixilhos pivotante
Figura 7.28 - Representação dos caixilhos tipo Ideal
OBS.:As esquadrias de alumínio e de PVC não serão descritas nesta apostila, devido ao fato de serem industrializadas e portanto, cada indústria detém um sistema, de perfis, fixação, acessórios, etc...
Havendo necessidade de utilizar as esquadrias de alumínio, solicitar ao fabricante desejado, os manuais técnicos, catálogos ou ainda a visita de um técnico especializado, para dirimir possíveis dúvidas.
7.4 - DIMENSÕES (COMERCIAIS)
7.4.1 - Portas:
Tabela 7.1 - Dimensões das portas
| 0,60 x 2,10 | 0,90 x 2,10 |
| 0,70 x 2,10 | 1,00 x 2,10 |
| 0,80 x 2,10 | 1,20 x 2,10 |
7.4.2 - Janelas:
Tabela 7.2 - Dimensões das janelas
|
|
|
|
|
Tabela 7.3 - Características dos diversos tipos de janelas
| Tipos | Vantagens | Desvantagens | ||
| CORRER | 1) Simplicidade de manobra. 2) Ventilação regulada conforme abertura das folhas. 3) Não acupa áreas internas ou externas (possibilidade de grades e ou telas no vão total). | 1) Vão para ventilação quando aberta totalmente é 50% do vão da janela. 2) Dificuldade de limpeza na face externa. 3) Vedações necessárias nas juntas abertas. | ||
| GUILHOTI NA | 1) As mesmas vantagens da janela tipo de correr caso as folhas tenham sistema de contrapeso ou sejam balanceadas, caso contrário as folhas devem ser retentores no percurso das guias nos montantes do marco | 1) Caso as janelas tenham sistemas de contrapeso ou de balanceamento, a quebra dos cabos ou a regulagem do balanceamento constitui problemas. 2) As desvantagens já citadas das janelas de correr. | ||
| PROJET ANTE | 1) Não ocupa espaço interno 2) Possibilita ventilação nas áreas inferiores do ambiente, mesmo com chuva sem vento. 3) Boa estanqueidade, pois a pressão do vento sobre a folha ajuda esta condição. | 1) Dificuldade de limpeza na face externa. 2) Não permite o uso de grades e/ou telas na parte externa. 3) Libera parcialmente o vão. | ||
| PROJET ANTE DESLIZANTE | 1) Todas as vantagens da janela do tipo projetante. 2) Possibilidade de abertura até 90° (horizontal) devido aos braços de articulação apropriados. 3) A abertura na parte superior facilita a limpeza e melhora a ventilação. | 1) Todas as desvantagens da janela tipo projetante quando não utiliza braço de articulação de abertura até 90°. | ||
| TOMBAR | 1) Ventilação boa principalmente na parte superior, mesmo com chuva sem vento. 2) Facilidade de comando a distância. | 1) Não libera o vão. 2) Dificuldade de limpeza na parte externa. | ||
| ABRIR folh a dupla ABRIR folha simples | 1) Boa estanqueidade ao ar e à água. 2) Libera completamente o vão na abertura máxima. 3) Fácil limpeza na face externa. 4) Permite telas e/ou grades e/ou persianas quando as folhas abrem para dentro. | 1) Ocupa espaço caso as folhas abram para dentro. 2) Não é possível regular a ventilação 3) As folhas se fixam apenas na posição de máxima abertura ou no fechamento total. 4) Dificultam a colocação de tela e/ou grade e/ou persianas se as folhas abrirem para fora . 5) Impossibilidade de abertura para ventilação com chuva oblíqua. | ||
| PIVOT ANTE HORIZONTAL (REVERSÍVEL) (1) | 1) Facilidade de limpeza na face externa. 2) Ocupa pouco espaço na área de utilização. 3) Quando utiliza pivôs com ajuste de freio, permite abertura a qualquer ângulo para ventilação, mesmo com chuva sem vento, tanto na parte superior com na parte inferior. 4) Possibilita a movimentação de ar em todos o ambiente, | 1) No caso de grandes vão necessita-se de uso de fechos perimétricos. 2) Dificulta a utilização de telas e/ou grades e/ou persianas. | ||
| PIVOTANTE VE RTICAL (*) | 1) Facilidade de limpeza na face externa. 2) Abertura de grandes dimensões com um único vidro. 3) Abertura em qualquer ângulo quando utiliza pivôs com ajuste de freio, o que permite o controle da ventilação. 4) Possibilita a movimentação de ar em todo o ambiente. | 1) Dificuldade de utilização de telas e/ou grades e/ou persianas. 2) Ocupa espaço interno caso o eixo seja no centro da folha. | ||
| (*) O eixo pivotante pode ser localizado no meio do plano da folha ou mais próximo de uma de suas bordas. | ||||
| BASCUL ANTE | 1) Janela que permite ventilação constante, mesmo com chuva sem vento, na totalidade do vão, caso tenha panos fixos. 2) Pequena projeção para ambos os lados não prejudicando as áreas próximas a ela. 3) Fácil limpeza. | 1) Não libera o vão para passagem total. 2) Reduzida estanqueidade. | ||
ANOTAÇÕES
1 - Aprumar os dois montantes, nos dois lados.
2 - Na fixação das dobradiças os parafusos não devem ser martelados e sim aparafusados, para criar a rosca na madeira.
3 - Nos batentes fixos por parafusos, tampar o furo dos parafusos com cavilhas de madeira.
TÉCNICAS DE CONSTRUÇÃO CIVIL E CONSTRUÇÃO DE EDIFÍCIOS
REVESTIMENTO DAS PAREDES, TETOS E MUROS
APÓS ESTUDAR ESTE CAPÍTULO; VOCÊ DEVERÁ SER CAPAZ DE:
• Analisar o tipo de revestimento que mais se enquadra para uma determinada superfície;
• Executar corretamente os diversos tipos de revestimentos;
• Especificar corretamente o tempo de cura de cada revestimento;
• Especificar a regularização adequada para um determinado piso;
• Executar corretamente o assentamento dos pisos;
• Executar corretamente os pisos de concreto armado
8.1 - ARGAMASSAS
Os revestimentos são executados para dar às alvenarias maior resistência ao choque ou abrasão, impermeabilizá-las, tornar as paredes mais higiênicas (laváveis) ou ainda aumentar as qualidades de isolamento térmico e acústico.Os revestimentos internos e externos devem ser constituídos por uma camada ou camadas superpostas, contínuas e uniformes. O consumo de cimento deve, preferencialmente , ser decrescente, sendo maior na primeira camada, em contato com a base. As superfícies precisam estar perfeitamente desempenadas, prumadas ou niveladas e com textura uniforme, bem como apresentar boa aderência entre as camadas e com a base. Os revestimentos externos devem, além disso, resistir à ação de variação de temperatura e umidade.
Quando se pretende revestir uma superfície, ela deve estar sempre isenta de poeira, substâncias gordurosas, eflorescências ou outros materiais soltos, todos os dutos e redes de água, esgoto e gás deverão ser ensaiados sob pressão recomendada para cada caso antes do início dos serviços de revestimento. Precisa apresentar-se suficientemente áspera a fim de que se consiga a adequada aderência da argamassa de revestimento. No caso de superfícies lisas, pouco absorventes ou com absorção heterogênea de água, aplica-se uniformemente um chapisco.
8.1.1 – Chapisco
É um revestimento rústico empregado nos paramentos lisos de alvenaria, pedra ou concreto; a fim de facilitar o revestimento posterior, dando maior pega, devido a sua superfície porosa. Pode ser acrescido de adesivo para argamassa.
O chapisco é uma argamassa de cimento e areia média ou grossa sem peneirar no traço 1:3.
Consumo de materiais por m² : cimento = 2,25 kg areia = 0,0053m³
Deve ser lançado sobre o paramento previamente umedecido com auxílio da colher, em uma única camada de argamassa.
Os tetos, independentemente das características de seus materiais, e as estruturas de concreto devem ser previamente preparados mediante a aplicação de chapisco. Este chapisco deverá ser acrescido de adesivo para argamassa a fim de garantir a sua aderência
Portanto a camada de chapisco deve ser uniforme, com pequena espessura e acabamento áspero.
A cura do chapisco se dá após 24hs da aplicação, podemos assim executar o emboço.
O chapisco pode ser usado ainda como acabamento rústico, para revestimento externo, podendo ser executado com vassoura ou peneira para salpicar a superfície.
8.1.2 - Emboço
O emboço é uma argamassa mista de cimento, cal e areia nas proporções indicadas na Tabela 8.1, conforme a superfície a ser aplicada.
| BASES | MATERIAIS | ||||||
| Tipo | Localização | cimento | cal hidratada | Pasta(2) de cal | Areia (1) | OBS. | |
| Superfícies externas | 1,0 | 2,0 | - | 8,0 a 10,0 | - | ||
| acima do nível do | 1,0 | 3,0 | - | 11,0 a 12,0 | - | ||
| terreno | 1,0 | - | 1,5 | 8,0 a 10,0 | - | ||
| Paredes | 1,0 | - | 2,5 | 11,0 a 12,0 | - | ||
| Superfícies externas em contato com o solo. | 1,0 | - | - | 3,0 a 4,0 | Recomenda-se a incorporação de aditivo impermeabilizante a argamassa ou executar pintura impermeabilizan te | ||
| Superfícies internas | 1,0 | 2,0 | - | 8,0 a 10,0 | - | ||
| 1,0 | 3,0 | - | 11,0 a 12,0 | - | |||
| 1,0 | 2,0 | 1,5 | 8,0 a 10,0 | - | |||
| Tetos | 1,0 | - | 2,5 | 11,0 a 12,0 | - no caso de exe- | ||
| (laje de | - | 1,0 | - | 2,0 a 3,5 | cução de acaba- | ||
| concreto | - | - | 1,0 | 1,5 a 3,0 | mento tipo barra | ||
| maciço ou laje mista) | 1,0 | - | - | 3,0 a 4,0 | lisa | ||
| Superfícies externas | 1,0 | 2,0 | - | 9,0 a 10,0 | - | ||
| e internas | 1,0 | 3,0 | - | 11,0 a 12,0 | - | ||
| 1,0 | - | 1,5 | 8,0 a 10,0 | - | |||
| 1,0 | - | 2,5 | 11,0 a 12,0 | - | |||
| (1) Areia com teor de umidade de 2% a 5% Pasta obtida a partir da extinção de cal virgem com água. |
Tabela 8.1 -Traço do emboço para as diversas bases
Portanto, o emboço de superfície externas, acima do nível do terreno, deve ser executado com argamassa de cimento e cal, nas internas, com argamassa de cal, ou preferivelmente, mista de cimento e cal. Nas paredes externas, em contacto com o solo, o emboço é executado com argamassa de cimento e recomenda-se a incorporação de aditivos impermeabilizantes. No caso de tetos, com argamassas mistas de cimento e cal.A areia empregada é a média ou grossa, de preferência a areia média.
O revestimento é iniciado de cima para baixo, ou seja, do telhado para as fundações. A superfície deve estar previamente molhada. A umidade não pode ser excessiva, pois a massa escorre pela parede. Por outro lado, se lançarmos a argamassa sobre o base, completamente seca, esta absorverá a água existente na argamassa e da mesma forma se desprenderá.
O emboço deve ter uma espessura média de 1,5cm, pois o seu excesso, além do consumo inútil, corre o risco de desprender, depois de seca. Infelizmente esta espessura não é uniforme porque os tijolos tem certas diferenças de medidas, resultando um painel de alvenaria, principalmente o interno, com saliências e reentrâncias que aumentam essa espessura.
As irregularidades da alvenaria são mais freqüentes na face não aparelhada das paredes de um tijolo.
Para conseguirmos uma uniformidade do emboço e tirar todos os defeitos da parede, devemos seguir com bastante rigor ao prumo e ao alinhamento. Para isso devemos fazer:
a) Assentamento da Taliscas (tacos ou calços)
As taliscas são pequenos tacos de madeira ou cerâmicos, que assentados com a própria argamassa do emboço nos fornecem o nível (Figuras 8.1 e 8.2).No caso de paredes, quando forem colocadas as taliscas, é preciso fixar uma linha na sua parte superior e ao longo de seu comprimento. A distância entre a linha e a superfície da parede deve ser na ordem de 1,5cm. As taliscas (calços de madeira de aproximadamente 1x5x12cm, ou cacos cerâmicos) devem ser assentados com argamassa mista de cimento e cal para emboço, com a superfície superior faceando a linha.
Sob esta linha, recomenda-se a colocação das taliscas em distâncias de 1,5m a 2m entre si, para poder utilizar réguas de até 2,0m de comprimento, favorecendo a sua aplicação.
Figura 8.1 - Assentamento das taliscas superiores
A partir da sua disposição na parte superior da parede, com o auxílio de fio de prumo, devem ser assentadas outras na parte inferior (a 30cm de piso) e as intermediárias (Figura 8.2).É importante verificar o nível dos batentes, pois os mesmos podem regular a espessura do emboço. Devemos ter o cuidado para que os batentes não fiquem salientes em relação aos revestimentos, e nem tampouco os revestimentos salientes em relação aos batentes e sim faceando.
Figura 8.2 - Assentamento das taliscas inferiores
No caso dos tetos, é necessário que as taliscas sejam assentadas empregando-se régua e nível de bolha ao invés de fio de prumo. Ou através do nível referência do piso acabado, acrescentando uma medida que complete o pé direito do ambiente (Figura 8.3).Figura 8.3 - Detalhe da colocação das taliscas nos tetos utilizando o nível referêncial
b) Guias ou Mestras
São constituídas por faixas de argamassa, em toda a altura da parede (ou largura do teto) e são executadas na superfície ao longo de cada fila de taliscas já umedecidas.
A argamassa mista, depois de lançada, deve ser comprimida com a colher de pedreiro e, em seguida, sarrafeada, apoiando-se a régua nas taliscas superiores e inferiores ou intermediárias (Figura 8.4).
Em seguida, as taliscas devem ser removidas e os vazios preenchidos com argamassa e a superfície regularizada.
O sarrafeamento do emboço pode ser efetuado com régua apoiada sobre as guias. A régua deve sempre ser movimentada da direita para a esquerda e vice-versa (Figura 8.4).
Figura 8.4 - Detalhe da execução das guias e do emboço
Nos dias muito quentes, recomenda-se que os revestimentos, principalmente aqueles diretamente expostos a radiação solar, seja mantidos úmidos durante pelo menos 48 horas após a aplicação. Pode ser efetuado, por aspersão de água três vezes ao dia.O acabamento do emboço pode ser:
• sarrafeado, ideal para receber o revestimento final (reboco), azulejo, pastilha, etc.
• sarrafeado e desempenado, ideal para receber gesso, massa corrida;
• sarrafeado, desempenado e feltrado (uma mão de massa ou massa única ) para receber a pintura.
O período de cura do emboço, antes da aplicação de qualquer revestimento, deve ser igual ou maior a sete dias.
8.1.3 - Reboco
A colocação do reboco é iniciada somente após a colocação de peitoris, tubulações de elétrica etc.. e antes da colocação das guarnições e rodapés.
A superfície a ser revestida com reboco deve estar adequadamente áspera, absorvente, limpa e também umedecida.
O reboco é aplicado sobre a base, com desempenadeira de madeira e deverá ter uma espessura de 2mm até 5mm. Em paredes, a aplicação deve ser efetuada de baixo para cima, a superfície deve ser regularizada e o desempenamento feito com a superfície ligeiramente umedecida através de aspersão de água com brocha e com movimentos circulares. O acabamento final é efetuado utilizando uma desempenadeira com espuma (Figura 8.5).
É extremamente importante, antes de aplicar o reboco, que o mesmo seja preparado com antecedência dando tempo para a massa descansar. Esse procedimento é chamado de "curtir" a massa e tem a finalidade de garantir que a cal fique totalmente hidratada, não oferecendo assim danos ao revestimento.
Figura 8.5 - Detalhe da aplicação do reboco
O reboco é constituído, mais comumente, de argamassa de cal e areia no traço 1:2 , ou como apresentado na Tabela 8.2:| BASES | MATERIAIS | ||||||
| Tipo | Localização | cimento | cal hidratada | Pasta(2) de cal | Areia (1) | OBS. | |
| Superfícies externas | - | 1,0 | - | 2,0 a 3,5 | - | ||
| acima do nível do | - | - | 1,0 | 1,5 a 3,0 | - | ||
| Pared es | terreno | ||||||
| Superfícies externas em contato com o solo. | 1,0 | - | - | 3,0 a 4,0 | recomenda-se a incorporação de aditivo impermeabilizante a argamassa ou executar pintura impermeabilizante | ||
| Superfícies internas | - | 1,0 | - | 2,0 a 3,5 | - | ||
| inclusive paredes de banheiros, cozinhas, lavanderias e ixeiras, acima de 1,60m de altura. | - | - | 1,0 | 1,5 a 3,0 | - | ||
| Superfícies internas | 1,0 | - | - | 3,0 a 4,0 | no caso de pintura da | ||
| de paredes de banhei | superfície revestida | ||||||
| ros, cozinhas, lavan- | com tinta à base de | ||||||
| derias e lixeiras, até 1,60m de altura | resina epóxi, borracha clorada, etc... | ||||||
| Tetos | Superfícies externas | - | 1,0 | - | 2,0 a 3,5 | - | |
| e internas | - | - | 1,0 | 1,5 a 3,0 | - | ||
| (1) Areia com teor de umidade de 2% a 5%. (2) Pasta obtida a partir da extinção de cal virgem com água |
Tabela 8.2 - Traços do reboco
Podemos utilizar argamassas pré-fabricadas, para reboco, que precisam ser fornecidas perfeitamente homogeneizadas, a granel ou em sacos. Cada saco deve trazer, bem visíveis, as indicações de peso líquido, traço, natureza do produto e a marca do seu fabricante.
Outros materiais aglomerantes e agregados podem ser empregados, como as massa finas acondicionada em sacos de aproximadamente15kg, que são misturados na obra com a cal desde que satisfaçam à especificações necessárias de uso.
Em condições normais é um pouco mais dispendioso do que a argamassa preparada na obra, mas quando não se tem espaço suficiente para peneirar, secar e "curtir", a massa é vantajosa.
8.2 – GESSO
A crescente utilização de revestimentos de gesso nas edificações contribuiu para uma boa alternativa e muitas vezes econômica.
O revestimento de gesso pode ser aplicado em diversas bases, mas deve-se garantir a aderência e uma espessura ideal. A espessura do revestimento de gesso em geral depende da base, mas tecnicamente se recomenda a espessura de 5 ± 2mm (Revista Téchne, 1996)
Para a aplicação do revestimento de gesso deve-se observar o prazo mínimo de 30 dias sobre as bases revestidas com argamassa, e de concreto estrutural; e de no mínimo 14 dias para as alvenarias.
8.2.1 Preparo da base
A superfície a ser revestida deve estar sempre isenta de poeira, umidade, substâncias gordurosas, eflorescências ou outros materiais soltos. A superfície precisa apresentar-se suficientemente áspera a fim de que se consiga a adequada aderência.Inicialmente deve-se verificar a falta de prumo, nível e planeza das bases conforme limites constantes na Norma 02.102.17-006/95. (Tabela 8.3)
Tabela 8.3 - Desvios máximos de prumo, nível e planeza (ABNT,1995)
| Desvio do prumo | Desvio de nível | Planeza |
| ≤ H/900 | ≤ L/900 | • Irregularidades graduais: ≤ 3mm, em régua de 2,0m • Irregularidades abruptas: ≤ 2mm, em régua de 20cm |
L = Maior vão do teto
Caso a base não tenha esses limites deve-se retificar o plano da base utilizando-se um emboço. Pontas de ferro, resíduos de fôrmas, rebarbas de concreto ou argamassa, devem ser removidos.
O revestimento de gesso propicia a corrosão de peças metálicas comum, pois é alcalina e pode apassivar o aço, portanto deve-se tratar os componentes metálicos ou protegê-los. As alvenaria que deverão receber o revestimento de gesso não deverão ser umedecidas, pois podem movimentar causando fissuras no revestimento. Se necessário somente os revestimentos de argamassa devem ser umedecidos pelas suas características de absorção ou de secagem da pasta.(De Milito, 2001)
8.2.2 Preparo da pasta
O gesso (CaSO4) é preparado em pasta, e devido a pega rápida o volume preparado para cada vez é em geral na ordem de um saco comercial (40kg) o que eqüivale a 45 litros. A quantidade de água deverá ser entre 60% a 80% da massa do gesso seco dependendo da finura.A mistura é feita manualmente polvilhando o gesso sobre a água para que todo o pó seja disperso e molhado, evitando a formação de grumos.
Depois de concluído o polvilhamento do gesso sobre a água, esperar cerca de 10 min. Para que as partículas absorvam água, e a suspensão passe do estado líquido a um estado fluído consistente. Com a colher de pedreiro agitar parte da pasta ( aquela que vai ser utilizada inicialmente) e aguardar cerca de 5 min. para o repouso final da pasta e até que adquira consistência adequada para ser aplicada com boa aderência e sem escorrer sobre a base.
8.2.3 Aplicação;
O gesso pode ser aplicado em duas, três ou quatro camadas, ou muitas vezes em uma só camada, se a planeza, nível ou prumo da base assim o permitir. O serviço inicia-se pelo teto. Depois cada plano de parede é revestido na sua metade superior. Para a execução de uma camada de espalhamento, cada plano de parede ou teto é dividido em faixas de espalhamento, com aproximadamente a mesma largura da desempenadeira de PVC.Uma vez concluída a camada o gesseiro passa à camada seguinte em faixas perpendiculares às primeiras (camadas cruzadas), antes da pega estar muito avançada o gesseiro verifica a planeza da última camada aplicada e, com uma régua de alumínio, faz o seu sarrafeamento, cortando os excessos grosseiros de pasta, a fim de dar ao revestimento um plano medianamente regular, que irá receber os retoques, a raspagem e a camada final de acabamento de pasta.
8.2.4 Verificação visual dos serviços:
Utilizando uma régua de 2,0m de comprimento aplicada sobre o revestimento em qualquer direção, não deve apresentar desvio superior a 3 mm. Em pontos localizados, utilizando uma régua de 20cm, não deverá apresentar desvio superior a 1 mm.
Antes da aplicação de pintura, o revestimento não deve apresentar pulverulência superficial excessiva, gretamento, falhas ou estrias com profundidade superior a 1 mm.
Obs.: O revestimento com gesso deve ser aplicado somente em ambientes internos e sem umidade.
8.3 - AZULEJOS
São materiais cerâmicos ou louça vidrada, que é fabricada originalmente em quadrados de 15x15, mas existem outras dimensões. Podem ser lisos ou decorados.
8.3.1 Assentamento dos azulejos
Os azulejos podem ser assentados com juntas em diagonal, `prumo ou em amarração (Figura 8.6):a) em diagonal b) junta à prumo c) em amarração
Figura 8.6 - Juntas dos azulejos
O assentamento se faz de baixo para cima, de fiada em fiada, com argamassa de cal e areia no traço 1:3 com 100kg de cimento por m³ de argamassa (pelo processo convencional), ou com cimento-colante, de uso interno ou externo, colas etc... Os cimentos colantes e as colas devem ser aplicados com desempenadeira dentada de aço, sobre base regularizada.Teremos comentários neste capitulo a respeito das diferentes maneiras de assentarmos azulejos e materiais cerâmicos.
Para garantirmos que o azulejo fique na horizontal devemos proceder da seguinte maneira: (Figura 8.7)
• Fixar uma régua em nível acima do nível de piso acabado.
• Deixar um espaço entre a régua e o nível do piso acabado, para colocação de rodapés ou uma fiada de azulejos.
• Verificar, para melhor distribuição dos azulejos, se será colocado moldura de gesso, deixando neste caso uma espaço próximo à laje, que já deverá estar revestida.
Figura 8.7 - Detalhe do assentamento dos azulejos
8.3.2 Recortes de azulejos:É muito difícil em um painel de alvenaria não ocorrer recortes, visto que na maioria das vezes, nos projetos não é levado em consideração as dimensões dos azulejos.
Portanto, para que os recortes não fiquem muito visíveis, podemos deixá-los atrás das portas, dentro dos boxes, ou ainda dividi-los em partes iguais nos painéis (Figura 8.8).
Figura 8.8 - Exemplo de divisão dos azulejos
8.3.3 Juntas entre azulejos
As juntas superficiais entre os azulejos deverão ter largura suficiente para que haja perfeita penetração da pasta de rejuntamento e para que o revestimento de azulejo tenha relativo poder de acomodação, no mínimo como descrito na Tabela 8.4:
Tabela 8.4 - Juntas superficiais entre azulejos
| Dim. (cm) | do azulejo | Parede interna (mm) | Parede externa (mm) |
| 11x11 | 1,0 | 2,0 | |
| 11x22 | 2,0 | 3,0 | |
| 15x15 | 1,5 | 3,0 | |
| 15x20 | 2,0 | 3,0 | |
| 20x20 | 2,0 | 4,0 | |
| 20x25 | 2,5 | 4,0 |
Quando os painéis internos excederem a 32m2 e os externos 24m2 ou sempre que a extensão do lado for maior que 8,0m ou 6,0m respectivamente, devemos prever juntas de movimentação longitudinais e/ou transversais.
As juntas de movimentação necessitam aprofundar-se até a superfície da alvenaria e ser preenchida com material deformável, vedada com selante flexível e devem ter entre 8 a 15mm de largura
8.3.4 Rejuntamento
O rejuntamento pode ser efetuado utilizando pasta de cimento branco e alvaiade na proporção de 2:1 ou seja, duas partes de cimento branco e uma de alvaiade, o alvaiade tem a propriedade de conservar a cor branca por mais tempo. Podemos utilizar ainda o rejunte (material industrializado), estes normalmente vem agregado a outros componentes, que conferem características especiais a ele: retenção de água, flexibilidade, dureza, estabilidade de cor, resistência a manchas etc. Portanto, na hora de escolher a argamassa de rejuntamento, esteja atento às suas características.
Esta pasta deve ser aplicada em excesso. O excedente será retirado, com pano, assim que começar a secar. A esta operação dá-se o nome de rejuntamento
O rejuntamento não deve ser efetuado logo após ao assentamento, mas sim dando um intervalo de 3 a 5 dias, de modo a permitir que a argamassa de assentamento seque com as juntas abertas.
8.4 - PASTILHAS
É outro revestimento impermeável, empregado nas paredes, principalmente nas fachadas de edifícios. É constituída de pequenas peças coladas sobre papel grosso. A preparação do fundo para sua aplicação deve ser feita como segue:
- para pisos: fundo de argamassa de cimento e areia (1:3) com acabamento desempenado.
- para paredes: o fundo será a própria massa grossa (emboço) dosada com cimento, bem desempenada.
A argamassa de assentamento será de cimento branco e caolin em proporção igual (1:1), ou argamassa de cimento colante, de uso interno ou externo, própria para pastilhas.
A argamassa de assentamento é estendida sobre a base e as placas de pastilhas são arrumadas sobre ela fazendo pressão por meio de batidas com a desempenadeira. O papelão ficará na face externa e após a pega, que se dá aproximadamente em dois dias, o papelão é retirado por meio de água.
O rejuntamento é executado com pasta de cimento branco ou rejunte.
8.5 REVESTIMENTO DE PISOS
8.5.1 Preparo da base
Todas as vezes que vamos aplicar qualquer tipo de piso, não podemos fazê-lo diretamente sobre o solo ou sobre as lajes ( exceto as lajes de nível zero). Devemos executar uma camada de preparação em concreto magro, que chamamos de contrapiso, base ou lastro., ou uma argamassa de regularização, respectivamente.
a) - Lastro
Os lastros mais comuns são executados com concreto não estrutural no traço 1:4:8, 1:3:5 ou 1:3:6.
Para aplicarmos o concreto devemos preparar o terreno, nivelando e apiloado, ficando claro que o apiloamento não tem a finalidade de aumentar a resistência do solo mais sim uniformizá-lo.
Quando se tem um aterro e este for maior que 1,00m, devemos executa-lo com cuidados especiais, em camadas de 20cm apiloadas. Quando não se puder confiar num aterro recente, convém armar o concreto e nesses casos o concreto é mais resistente (concreto estrutural), podendo usar o traço 1:2, 5:4.
A espessura mínima do contrapiso deverá ser de 5cm; podendo atingir até ± 8cm, pois o terreno nunca estará completamente plano e em nível. Em residências, nos locais de passagem de veículos o lastro deverá ser no mínimo 7,0cm, podendo chegar até a ±10,0cm
Para termos uma superfície acabada de concreto plana e nivelada devemos proceder da seguinte forma: (Figura 8.9)
1º- determinamos o nível do piso acabado em vários pontos do ambiente, que se faz utilizando o nível de mangueira.
2º- descontar a espessura do piso e da argamassa de assentamento ou regularização, cimento cola ou cola.
3º- colocar tacos cujo nivelamento é obtido com o auxílio de linha.
4º- entre os tacos fazemos as guias em concreto.
5º- entre duas guias consecutivas será preenchido com concreto e passando a régua, apoiadas nas guias se retira o excesso de concreto.
Figura 8.9 - Procedimento para nivelar sub-base do lastro
Obs: Para os piso com grande caída o procedimento é o mesmo, apenas devemos variar as alturas das taliscas, promovendo assim as caídas. Para os piso com pouca caída é aconselhável que a caída seja dada na argamassa de assentamento ou na de regularização.Devemos ter cuidado quanto à umidade no contrapiso, pois prejudica todo e qualquer tipo de piso, seja ele natural, cerâmico ou sintético.
Caso haja umidade, deverá ser feito um tratamento impermeável para que o piso não sofra danos na fixação (desprendimento do piso), no acabamento (aparecimento de manchas) e na estrutura do piso (empenamento, etc.).
Esse tratamento consiste em colocar aditivo impermeabilizante no concreto do contrapiso ou na argamassa de assentamento ou ainda a colocação de lona plástica sob o contrapiso.
b) - Argamassa de Regularização
Nos pavimentos superiores (sobre as lajes), quando as mesmas não forem executadas com nível zero, devemos realizar uma argamassa de regularização, que em certos casos poderá ser a própria argamassa de assentamento.
Utilizamos a argamassa de regularização quando os pisos forem assentados com cola, cimento cola ou ainda quando a espessura da argamassa de assentamento exceder a 3,0cm. E utilizamos argamassa de assentamento para regularizar, quando os pisos forem assentados pelo sistema convencional. Neste caso a espessura da argamassa de assentamento não deve exceder a 3,0cm, pois o piso é assentado com a argamassa ainda fresca e a mesma perde volume comprometendo a planicidade do piso.
Para cada tipo de piso existe um tipo mais indicado de traço de argamassa de regularização, como veremos na descrição de cada piso.
8.5.2- Cimentados
O piso cimentado é executado com argamassa de cimento e areia no traço 1:3, com espessura entre 2,0 a 2,5cm e nunca inferior a 1,0cm.* Se desejamos um acabamento liso devemos polvilhar cimento em pó e alisar com a colher de pedreiro ou desempenadeira de aço (massa queimada).
* Se desejamos um acabamento áspero, usamos apenas a desempenadeira de madeira, ou texturado (vassoura, roletes etc...)
Quando o cimentado for aplicado em superfícies muito extensas, devemos dividi-las em painéis de 2,0x2,00m, com juntas de dilatação (junta seca) que podem ser executadas durante a aplicação ou depois da cura (junta serrada).
*A cura será efetuada pela conservação da superfície levemente molhada, coberta com sacos de estopa ou mantas, durante no mínimo 7 dias
Obs.: A utilização de mantas é muito utilizada nos dias de hoje, mas devemos ter o cuidado de mante-las sempre molhadas, para evitar que as mesmas absorvam a água do piso fazendo o efeito contrário.
8.5.3 - Piso de madeira
a- Regularização de base para piso de madeira
Se necessário é feita com argamassa de cimento e areia média ou grossa no traço 1:4 com espessura de 2,5cm.
b- Assentamento utilizando argamassa:
Utiliza-se uma argamassa de cimento e areia média peneirada, no traço 1:3 e se aconselha que nesta dosagem seja colocada impermeabilizante na quantidade indicada pelo fabricante.
A argamassa é estendida através de guias numa espessura média de 3,0cm, é povilhado cimento seco sobre a massa para enriquecer a sua dosagem na superfície de conta
O piso de madeira assentado com argamassa é o taco. Os tacos para assentamento com argamassa, são pintados em suas bases com piche, no piche é impreganado areia lavada e para melhorar ainda mais a aderência com a argamassa, é fixado dois pregos para taco em cada peça (Figura 8.10).
Figura 8.10 - Tacos de madeira
b) - Assentamento utilizando cola:Quando for utilizado cola para assentamento a argamassa de regularização deve ser de cimento e areia no traço 1:3 do tipo "farofa", e deverá receber um acabamento liso, nivelado e isento de umidade.
Entende-se por acabamento liso a argamassa desempenada e alisada com a colher ou desempenadeira de aço e não queimada (quando se enriquece a superfície com pó de cimento). E argamassa do tipo "farofa" aquela argamassa bem seca, pois o excesso de água faz com que o cimento se deposite em camadas inferiores deixando a superfície fraca.
Os pisos assentados com cola são:
- Tacão, peças com 2,0cm de espessura, largura variando de 7,0 a 10cm e comprimento entre 30 a 45cm podendo chegar até 50cm (Figura 8.11), podendo ser de peroba, Ipê, Pau marfim, jacarandá etc.
- Parquetes, peças menores coladas em papelão formando desenhos. (Figura 8.11)
Figura 8.11 - Parquete e Tacão
- Carpete de madeira podendo ser usado no revestimento de pisos, tetos e paredes, tanto em construções novas quanto em reformas.A sua espessura pode ser de 1,5mm, 2,5mm, 4,0mm e 7,0mm, largura de 18cm, 18,5cm, 19,0cm e 19,5cm respectivamente e comprimento variável.
O carpete de madeira é composto, em linhas gerais, por lâminas de capa e contra-capa, e uma chapa central estabilizante em sentido oposto com espessuras variadas.
A sua aplicação é feita colando sobre superfície plana com cola de contato, exceto no carpete de madeira de 7,0mm que é pelo sistema macho e fêmea, colado somente no topo das réguas com cola branca (P.V.A), travado e fixado nos cantos das paredes.
c) - Fixação utilizando parafuso:
Essa fixação é feita para as tábuas, que são aparafusadas com dois parafusos de 50 a 50 cm sobre caibros ou ganzepes(barrote) fixados no concreto da base ou com argamassa de cimento e areia no traço 1:3 (Figura 8.12).
Os parafusos são rebaixados e recobertos com a própria madeira (cavilhas) ou com massa de calafetar.
Figura 8.12 - Fixação das tábuas com parafusos sobre caibros ou ganzepes
d) - Fixação utilizando pregos:Essa fixação é feita também para as tábuas, que são pregadas nos ganzepes (barrote) com pregos retorcidos ou anelados (Figura 8.13). Para melhor fixação das tábuas, sobre a argamassa de fixação dos ganzepes (barrote) é colocado cola de madeira e no encaixe entre uma tábua e outra. Neste caso a argamassa deverá ter o traço 1:3 de cimento e areia e superfície alisada com a colher
Figura 8.13 - Fixação das tábuas por pregos anelados
e) Acabamento dos pisos de madeira
Após cinco dias no mínimo do assentamento, o piso de madeira passa por lixamento (raspagem) iniciando-se com a lixa no 16 (grossa) e depois a 36 (mais fina). Em seguida o piso é limpo e calafetado (preenchimento das juntas entre os pisos). A calafetação é realizada utilizando uma massa acrílica para madeira pigmentada na cor aproximada do piso. A aplicação é efetuada com desempenadeira de aço em camadas finas, visando corrigir os defeitos em "baixo relevo".
Para o bom resultado da calafetação, é importante que seja observado o seguinte fatores:
• A madeira deve estar perfeitamente seca e firmemente assentada para que não ocorram trincas e "estufamento" da massa ao longo do rejuntamento
• Cura da massa de calafetar, no mínimo 24horas.
Após a massa curada é efetuado o polimento utilizando lixa no100 ou 120 dependendo da madeira e do acabamento.
O acabamento final é realizado com 3 (três) demãos de synteko, Bonatech, verniz poliuretano ou encerado.
f) Recomendações
• Quando assentarmos taco, devemos fazê-lo o mais próximo possível, para evitar que se movimente com a sua utilização provocando assim a sua soltura.
• A base para assentamento com cola deve ser feita com uma argamassa bem seca para evitar que a água em excesso "verta" fazendo com que o cimento se deposite em camadas inferiores e as areias fiquem sem coesão por falta de aglomerante, deixando assim a superfície fraca.
• O pisos de madeira devem ser assentados com uma folga das paredes para facilitar a movimentação, sem que ocorra empenamento.
• Ao assentarmos com cola verificar se a base está bem nivelada e sem ondulações, principalmente para os tacões, pois se não estiverem, parte do tacão fica colado e outra não, podendo se soltar (Figura 8.14).
Figura 8.14 - Exemplo de regularização sem nivelamento
• Verificar o cerne das tábuas para piso, e parafusar bem, pois a umidade tanto do ar como do solo pode empenar as tábuas dando ondulações nos pisos o que é desagradável.(Figura 8.15)Figura 8.15 - Situação de empenamento devido a posição do cerne
Obs.: Nas tábuas fixadas por parafusos é aconselhável o uso de dois parafusos por seção, para evitar o empenamento das mesmas.
8.5.4 - Pisos cerâmicos
Antes de comprar ou especificar um piso cerâmico devemos classifica-los principalmente quanto a absorção de água (Tabela 8.5) e a abrasão (Tabela 8,6).Normalmente quanto menor o grau de absorção, melhor será a qualidade, podendo ser (Tabela 8.5):
Tabela 8. 5 - Classificação dos pisos cerâmicos quanto a absorção de água
| Grupo | Grau de absorção | Uso recomendado |
| I | 0% a 3% | Pisos, paredes, piscinas e saunas |
| IIa | 3% a 6% | Pisos, paredes e piscinas |
| IIb | 6% a 10% | Pisos e paredes |
| III | >10% | paredes |
E quanto a resistência a abrasão, ela representa a resistência ao desgaste superficial, no caso de cerâmicas esmaltadas é caracterizada por unidade PEI (Porcelain Enamel Institute) e classificado como segue (Tabela 8.6):
Tabela 8. 6 - Classificação dos pisos cerâmicos quanto a abrasão
| Abrasão | Resistência | Uso recomendado |
| Grupo 0 | Desaconselhável para piso | |
| Grupo 1 (PEI-1) | Baixa | Banheiros residênciais. Quartos de dormir etc. |
| Grupo 2 (PEI-2) | Média | Quartos sem portas para fora |
| Grupo 3 (PEI-3) | Média alta | Cozinhas residênciais, corredores, hall de residência, quintais. |
| Grupo 4 (PEI-4) | Alta | Estab. Comerciais internos, entradas de hotéis, show rooms. |
| Grupo 5 (PEI-5) | Altíssima e sem encardido | Áreas públicas, shopping centers, aeroportos, padarias, fast-food etc. |
Após a escolha do piso podemos assenta-los de duas maneiras usuais: Utilizando argamassa de assentamento ou cimento colante. Procedendo-se da seguinte maneira:
a- Regularização de base para pisos cerâmicos
Se necessário, é feita com argamassa de cimento e areia média sem peneirar no traço 1:4 ou 1:6 com espessura de 3,0cm.
b- Assentamento utilizando argamassa: (assentamento convencional)
Utiliza-se uma argamassa mista de cimento com areia média seca no traço 1:0,5:4 ou 1:0,5:6 sobre o piso regularizado (quando a espessura da argamassa de assentamento for maior de 3,0cm) ou sendo a própria argamassa de assentamento utilizada para regularizar e assentar.Ao se considerar que a colocação do material cerâmico , no caso de utilizar a argamassa para o assentamento, é feita com esta camada de argamassa ainda fresca, e que quando da secagem desta argamassa acontece o fenômeno da retração (encurtamento), ocorre o aparecimento de esforços que tendem a comprimir o revestimento. Destes esforços- que atuam no plano do revestimento - resultam componentes normais ao revestimento que tendem a arrancá-lo de sua base. O que vai impedir a separação das peças de sua base, será a aderência proporcionada pela pasta de cimento. Sabe-se que, no assentamento convencional, dificilmente se consegue obter uma pasta de cimento ideal, ou seja, com maior resistência possível, pois a mesma resulta da aspersão de pó de cimento sobre uma argamassa ainda fresca, retirando água dessa argamassa para se hidratar. A falta ou excesso de água poderá ter como conseqüência, ou o cimento mal hidratado, ou uma "aguada" de cimento. Em ambos os casos a ligação cerâmica-base estará fatalmente comprometida, será de baixa resistência e não se oporá à separação do revestimento de sua base.
Esses esforços devido à retração estão diretamente ligados a fatores importante. Quanto maior for a espessura da argamassa de assentamento, tanto maior será o esforço resultante da retração. Quando mais rica em cimento for a argamassa, tanto maior será o esforço devido à retração. E, lembrando que este esforço de compressão gera componentes verticais que tendem a arrancar as peças de sua base, quanto maior for o primeiro, tanto maiores serão os componentes verticais de tração que tendem a soltar o revestimento.
A melhor maneira de assentar os pisos cerâmicos pelo processo convencional é:
- Superfície de laje, ou contrapiso - varrer e eliminar poeiras soltas; umedecer e aplicar pó de cimento com adesivo de argamassa, formando pasta imediatamente antes de estender a argamassa de assentamento. Isto proporcionará melhor ligação da argamassa à laje.
- Espessura de argamassa de assentamento - nunca ultrapassar 2 cm a 2,5cm, a fim de minorar as tensões de retração. Caso haja necessidade de maior espessura, deverá ser efetuada em duas camadas, sendo a segunda após completada a secagem da primeira camada.
- Traço da argamassa de assentamento - nunca utilizar argamassas ricas. O traço 1:6 de cimento e areia, mais meia parte de cal hidratada é correspondente indicado. A cal proporciona melhor trabalhabilidade e retenção de água, melhorando as condições de cura e menor retração. Atenção especial será dada para a água adicionada. O excesso formará pasta de cimento aguado e pouco resistente.
- Quantidade de argamassa a preparar - será tal, de modo a evitar que o início do seu endurecimento - início de pega do cimento - se dê antes do término do assentamento. Na prática, isso corresponde a espalhar e sarrafear argamassa em área de cerca de 2m² por vez.
- Aplicação da argamassa - será apertada firmemente com a colher e, depois, sarrafeada. Lembre-se que apertar significa reduzir os vazios preenchidos de água. Isso diminuirá o valor da retração e reduzirá os riscos de soltura.
- Camada de pó de cimento - espalhar pó de cimento de modo uniforme e na espessura aproximada de 1mm ou 1 litro/m². Não atirar o pó sobre a argamassa, pois a espessura será irregular. Deixar cair o pó por entre os dedos e a pequena distância da argamassa. Esse cimento deverá se hidratar exclusivamente com a água existente na argamassa, formando a pasta ideal. Para auxiliar a formação da pasta, passar colher de pedreiro levemente.
- Peças cerâmicas - serão imersas em água limpa e deverão estar apenas úmidas, não encharcadas, quando forem colocadas. Não ser assentadas secas, porque retirarão água da pasta e da argamassa de assentamento, enfraquecendo a aderência. Não poderão ser colocadas demasiadamente molhadas, porque, desta forma, reduzirão a pasta de cimento a uma "aguada" de cimento enfraquecendo igualmente a aderência. Deve-se observar, no entanto, que o fato de ser necessário imergir os pisos em água , ocasiona certa fragilidade às peças e consequentemente quebra no ato de se colocar. Daí presume-se uma perda estimada em aproximadamente 5%.
Para se conseguir melhor efeitos das peças, quando estas não são de cores lisas, espalhar o número de peças a serem assentadas em outra área limpa e criar variações com as nuanças de cor do material de revestimento. Tais variações de cor não são defeitos dos revestimentos (pisos) e devem ser "trabalhadas" para melhorar o aspecto visual do conjunto. Depois de encontrado o melhor desenho, assentar o material.
- Fixação das peças - para pisos, após aplicados na área preparada, serão batidos com o auxílio de bloco de madeira de cerca de 12cm x 20cm x 6cm aparelhado, a martelo de pedreiro. Certificar que todas as peças foram batidas o maior número possível de vezes. Peças maiores - 15cm x 30cm, ou 20cm x 20cm - deverão ser batidas uma a uma, a fim de garantir boa aderência à pasta.
- Espaçamento das peças - nunca colocar pisos ou azulejos justapostos, ou seja , com juntas secas. As juntas de 1mm a 3mm, conforme o tamanho das peças, são necessárias por três motivos: compensar as diferenças de tamanho das peças, pois em um mesmo lote é normal a classificação na faixa de até 2mm; em segundo lugar, que a pasta de cimento penetre adequadamente entre as peças, impermeabilizando definitivamente o piso; em terceiro, para criar descontinuidade entre as peças cerâmicas, a fim de que não se propaguem esforços de compressão em virtude da retração da argamassa ou outras deformações das camadas que compõem o revestimento.
Resumindo:
• Estender a massa em pequenos panos de maneira a colocar em nº de piso que se possa alcançar.
• Povilhar por igual o cimento sobre a argamassa para enriquecer a sua dosagem na superfície de contato.
• Colocar o piso úmido e não saturado de água, pois esse excesso faz com que a pasta de cimento se torne fraca.
• Para garantir uma melhor distribuição de pasta de cimento espalhar o pó de cimento com a colher.
• Com o auxílio da desempenadeira, dar pequenos golpes sobre o piso até que a pasta de cimento comece a surgir pelas juntas.
c) - Assentamento utilizando cimento cola
O cimento cola é estendido sobre a regularização da base curada no mínimo 7 (sete) dias, com o auxílio da desempenadeira dentada em pequenos panos.
A desempenadeira dentada é utilizada pois facilita o espalhamento da argamassa de assentamento (cimento colante) garantindo uma espessura constante. Nunca deixar de usar desempenadeira denteada para espalhar adequadamente a pasta. Pois formam cordões de cerca de 4mm alternados com estrias vazias. Ao pressionar o piso ou azulejos, os cordões se espalham, formando uma camada contínua de aproximadamente 2mm.
A colagem das peças cerâmicas é simples: estendo a pasta de cimento colante sobre a base já curada e seca, em camada fina, de 1mm a 2mm, com desempenadeira dentada, formando estrias e sulcos que permitem o assentamento e nivelamento das peças. Em seguida, bate-se até nivelar, deixando juntas na largura desejada ou, no mínimo, de 1mm entre as peças.
Tanto para colocação de azulejos quanto para pisos cerâmicos pelo método dos cimentos colantes, não há necessidade de se molhar quer a superfície a ser revestida quer as peças cerâmicas. Porém, no caso de camada de regularização estiverem molhados por qualquer motivo, não haverá problemas no uso de cimento colante. E a frente de trabalho é ilimitada, interrompendo-se a aplicação do piso ou da parede no instante que se desejar. Seu reinicio obedece também às necessidades da obra e a velocidade de aplicação é, pelas características do método, mais rápida que a do processo convencional.
A espessura de 2mm é suficiente para fixar as peças cerâmicas. Isso corresponde a um consumo de cerca de 3 kgf/m² de revestimento. O cimento também retrai, para a espessura utilizável de 2mm, os esforços que poderiam atuar sobre os revestimento são praticamente nulos se comparados àqueles provenientes aos 30mm de espessura da argamassa convencional.
Os cimentos colantes, ou argamassas especiais, são fornecidos sob forma de pó seco e em embalagens plásticas herméticas, o que permite estocar o produto por tempo praticamente ilimitado.
Obs.: Para o assentamento com cimento cola. deixar na regularização da base as caídas para os ralos, as saídas, etc... pois a espessura do cimento cola é muito pequena, em torno de 5mm, não conseguindo dar as caídas.
d) - Rejuntamento
Após cinco dias do assentamento devemos preencher as juntas com pasta de cimento ou rejunte industrializado, esse procedimento é denominado de rejuntamento
O rejuntamento sobre o piso é feito com pasta de cimento comum ou rejunte, estendida sobre o piso e puxada com rodo. Limpar o excesso de rejunte com um pano após a formação do inicio da pega da pasta.
Nos pisos cerâmicos a superfície acabada (lisa) vira alguns milímetros na borda do mesmo, ficando a superfície lisa e impermeável ocasionando o desprendimento do rejunte.(Figura 8.16)
Para que isso não ocorra este excesso deve ser retirado antes da cura final.
Figura 8.16 - Detalhe da execução do rejuntamento
e) - Juntas de dilatação
Na colocações de pisos cerâmicos em grandes áreas deve-se prever juntas de dilatação(expansão).Todo revestimento cerâmico precisa de juntas e suas especificações devem ser informadas pelo fabricante.
As juntas são obrigatórias e evitam que movimentos térmicos causem "estufamento" e, consequentemente, destacamento da peça.
Existem três tipos básico de juntas as:
• superficiais, que definem a posição das peças, as
• estruturais, que devem existir na estrutura de concreto, e as de
• expansão ou movimentação, que devem existir em grandes áreas de piso cerâmico, e entre as paredes ou anteparos verticais auxiliando a movimentação dos mesmos. Elas devem ser executadas em painéis de até 32m2 para os pisos internos ou até 24m2 nos painéis externos, longitudinalmente e transversalmente. As juntas de movimentação necessitam aprofundar-se até a superfície da base (laje, contrapiso, etc...) e ser preenchida com material deformável, vedada com selante flexível e devem ter entre 8 a 15mm de largura
Além de possibilitar a movimentação de todo o conjunto do revestimento durante as dilatações e contrações, as juntas são importantes para melhorar o alinhamento das peças (juntas superficiais) e permitir a troca de uma única placa sem a necessidade de quebrar outras.
Quando temos juntas estruturais no contrapiso estas precisam ser reproduzidas no revestimento cerâmico.
f) Eflorecência
São manchas esbranquiçadas que se sobressaem ao revestimento do piso e a ele aderem. Ela aparece devido a um processo químico. O cimento comum, reagindo com a água, resulta em uma base medianamente solúvel, denominada hidróxido de cálcio. Como a argamassa de assentamento e de rejuntamento contêm cimento e essas camadas são porosas, em sua composição encontra-se o hidróxido de cálcio livre., ocasionando o contato com o ar, que por sua vez, contém anidro carbônico, dá-se a reação entre essas duas substâncias, resultanto em carbonato de cálcio, sal insolúvel de coloração branca.Pode ser facilmente retiradas mediante solução diluída de ácido muriático.
Para evitar esse processo podemos adicionar pozolanas ou escória aos cimentos ou utilizar cimento pozolânico, CP-IV ou CP-III.
8.5.5 - Porcelanato
O Porcelanato é constituído de uma mistura de argila, feldspato, caulim e outros aditivos (corantes), submetido a uma forte pressão e queima em alta temperatura (entre 1200oC a 1250oC ), resultando um piso resistente a abrasão e de baixa porosidade.O acabamento do Porcelanato pode ser o não esmaltado nos padrões semi-rústico, rústico e satinado, ou esmaltados. Os não esmaltados tem uma durabilidade maior pois o esmalte é aplicado antes da queima e mais tarde polido, portanto a fina camada de esmalte tende a desgastar.
Como o Porcelanato não é poroso, é necessário fixá-lo com argamassa colante aditivada com polímeros, como o PVA. Essa mistura tem o dobro da aderência da argamassa comum. É importante também, espaçar as peças conforme recomendação do fabricante e rejuntá-las com uma massa de rejunte também aditivada.
8.5.6 - Carpete
Geralmente os carpetes de pequena espessura são colados, por empresas especializadas, sobre a regularização ( 3,0, 4,0 e 6,0mm) e os demais podem ser soltos.A colocação das mantas deverão ser estendidas na direção de entrada da luz do dia ou na direção da porta principal.
O adesivo de contato á base de neoprene, distribuído com desempenadeira dentada metálica.
Os defeitos mais comuns na colocação são:
- emendas tortas = cortes feito a mão livre
- recorte de canto com abertura = corte a mão livre
- descolagem = falta de cola tempo de secagem
- diferença de tonalidade = inversão no sentido das mantas
- emendas abertas = corte imediato, falta de cola
- emendas em excesso = aproveitamento de sobras - vazamento de cola = excesso de cola, piso irregular.
a) - Regularização de base para carpete
É feita com argamassa de cimento e areia fina sem peneirar no traço 1:3, alisada sem pó de cimento, com desempenadeira de aço, espessura média de 3,0cm.8.5.7 - Granilite
Granilite ou marmorite, é um piso rígido polido, com juntas plásticas de dilatação, moldado in loco, ele é constituído de cimento e mármore, granito ou quartzo triturado. A cor varia de acordo com a granilha e o corante que são colocados na sua composição ( se for utilizado cimento branco).a) - Regularização de base para granilite
É feita com argamassa de cimento e areia no traço 1:3, não devendo ser alisada com a colher de pedreiro mais sim desempenada, para ficar com uma superfície áspera onde o granilite irá aderir com maior intensidade.
b) - Pasta de granilite
É constituída de uma argamassa composta de pequena carga de pedra (granito, mármores ou quartzo, cimento e corantes. O cimento poderá ser comum ou branco, a espessura é de 12 a 15mm.
Assim como o cimentado, o granilite também precisa da ajuda das juntas de dilatação para não sofrer retração. Portanto a sua aplicação deve ser precedida da colocação das juntas de dilatação constituídas por tiras de plástico fixadas no contrapiso com nata de cimento.
A argamassa de granilite é aplicada no contrapiso com colher de pedreiro e regularizada com régua de alumínio.
Após dois dias da colocação do granilite, a argamassa já está apta para receber o primeiro polimento. O polimento é executado com máquina com emprego de água e abrasivos de granulação 40, 80 e 160 progressivamente. Após o primeiro polimento, as superfícies serão estucadas com mistura de cimento comum ou branco e corantes (para tirar pequenas falhas). O polimento final será a máquina com emprego de água e abrasivos nº 220. Os rodapés, peitoris etc... serão polidos a seco com máquina elétrica portátil.
As juntas de dilatação devem formar quadros de no máximo 1,50 x 1,50m.
8.5.8 - Pedras decorativas
As pedras naturais deverão ser executadas por equipes especializadas, que fornecerão os colocadores e suas ferramentas (martelo de borracha, serra maquita, nível, régua metálica).O procedimento correto no caso das rochas, produtos naturais sujeitos a variações de cor, é fazer antes da instalação uma montagem do desenho do piso. O assentador agrupa as mais parecidas e separa as manchadas ou de coloração diferente para fazer os recortes ou para instalar em locais escondidos.
As pedras, dependendo do lugar da aplicação, podem ser rústicas com espessura irregular ou serradas e polidas com espessura regular. O seu assentamento se faz utilizando argamassa (convencional) para as rústicas e argamassa ou cimento cola para as serradas e polidas.
a) - Regularização de base para assentamento das pedras
Para o assentamento utilizando cimento cola, deverá ser executado uma regularização com argamassa de cimento e areia média sem peneirar no traço 1:3 com espessura média de 3cm e acabamento desempenado.
b) - Assentamento com argamassa (sistema convencional)
Se utiliza uma argamassa mista de cimento, cal e areia média sem peneirar no traço 1:0,5:4. Poderá ser seguido os mesmos critérios estabelecidos para o assentamento de pisos cerâmicos:- Aplicação da argamassa - será espalhada e apertada firmemente com a colher e, depois, sarrafeada.
- Camada de pó de cimento - espalhar pó de cimento de modo uniforme e na espessura aproximada de 1mm ou 1 litro/m². Não atirar o pó sobre a argamassa, pois a espessura será irregular. Deixar cair o pó por entre os dedos e a pequena distância da argamassa. Esse cimento deverá se hidratar exclusivamente com a água existente na argamassa, formando a pasta ideal. Para auxiliar a formação da pasta, passar colher de pedreiro levemente.
c) - Mármores e Granitos
Qual a diferença entre o mármore e o granito? O mármore é bem mais macio, ou seja, menos resistente a riscos do que o granito. Por isso não é recomendado em área de alto tráfego e molhadas.O granito é uma rocha magmática formada de quartzo, feldspato e mica já o mármore é uma rocha carbonática de origem sedimentar ou metamórfica, composta de calcita ou dolomita. Elas são classificadas quanto à dureza numa escala chamada de Mohs. O mármore tem dureza 3 e o granito 6. Na Tabela 8.7 está indicado os locais de aplicação dos mármores e granitos.
Os mármores mais procurados são: O branco; o travertino; o beje bahia e os importados rosso verona (Itália); verde alpe (Itália); marrom imperador (Espanha); crema marfil (Espanha); boticcino (Itália); carrara (Itália).
E os granitos mais procurados são: cinza andorinha; granito vermelho (Capão Bonito); cinza Mauá; granito branco; preto absoluto; preto São Gabriel; amêndoa rosa; amarelo Santa Cecília, verde São Francisco, verde Ubatuba.
Tabela 8. 7 - Locais indicados para aplicação dos mármores e granitos
| Locais | Mármores | Granitos |
| Cozinha | Nunca use. Ele é muito poroso e absorve substância com facilidade. Além disso, contém elementos químicos, como o carbono, que reagem com os ácidos do limão e do vinagre e de alguns detergentes . As consequências são manchas que não saem e a perda do brilho | É o mais indicado, principalmente para as bancadas. Polida a sua superfície torna-se higiênica. Os granitos vermelhos e pretos são mais resistentes. Evitar os granitos cinza (mauá, andorinha) são mais porosos. |
| Banheiro | Em bancadas e paredes não há restrição. No piso, evite o travertino. Nenhum tipo de mármore é indicado para o piso do boxe. | Pode ser usado sem problemas. Seguir as instruções da cozinha. |
| Piso externo ( e bordas de piscinas) | Não deve ser usado, a pedra desgasta. | Os polidos ficam escorregadios quando molhados. Prefira acabamentos antiderrapantes. |
| Piso interno | A princípio, todos são indicados. Embora os mais porosos manchem com a umidade. | Nenhuma restrição, mas o contrapiso do térreo deverá ser impemeabilizado. |
Nas áreas externas, os granitos não podem ser polidos, devem ter acabamentos ásperos. Podendo ser:
Flameado: Um maçarico derrete alguns minerais da rocha, deixando-a antiderrapante. Não deve ser efetuado nos granitos pretos e verde-escuros
Levigado: Lixamento com abrasivos. Dá efeito rústico, e a pedra não fica escorregadia.
Jateado: A superfície é levemente desgastada com jatos de areia.
Apicoado: Com martelo e uma ponteira, fazem-se "furinhos" sobre a chapa, deixando-a irregular e antiderrapante.
8.5.9 - Pedras brutas
Ardósia, miracema, pedra mineira, são-tomé, goiás, madeira.....Essas pedras naturais não passam por processos industriais, como o mármore e o granito, por isso dão um visual rústico.Nas áreas externas (quintais, jardins) as rochas ficam expostas ao sol e à chuva. Por isso, os tipos ideais para esses lugares são aquelas que não esquentam demais e fiquem escorregadias ao serem molhadas. Na Tabela 8.8 estão relacionadas as pedras naturais mais comuns e na Tabela 8.9 os locais mais indicados.
Tabela 8. 8 - Pedras naturais mais comuns
| Pedra | Descrição |
| Ardósia | Risca com facilidade, já que é uma pedra macia e fácil de ser cortada. É usada ao natural ou impermeabilizada com resina acrílica. |
| Arenito | Antiderrapante, costuma ser usado no estado bruto. Mas também aceita polimento. |
| Dolomita | A sua superfície é bem irregular, restringindo o uso a detalhes mais ornamentais. Aplicada em estado bruto. |
| Itacolmi | Usada na forma bruta ou com bordas serradas, tem aspecto semelhante ao da pedra mineira |
| Luminária | Pode ficar ao sol, pois não concentra calor |
| Miracema | Usada normalmente em estado brutoo, aparece com superfície irregular ou plana e é antiderrapante. Mancha facilmente com óleos e produtos químicos. Resiste a choques mecânicos e intempéries. |
| Pedra madeira | Antiderrapante, com textura irregular. Aplicado em estado bruto ou com bordas serradas. |
| Pedra sabão | Resistente ao sol e chuva, ela aceita polimento, lustro e apicoamento. |
| Pedra mineira | Antiderrapante, muito absorvente enão propaga calor. Aceita polimento e resina impermeabilizante. |
| Pedra goiás | Rocha com características semelhantes às da pedra mineira ( o nome muda devido a procedência) |
| Seixo rolado | Há aqueles naturalmente moldados pelas águas dos rios e os rolados em máquina. São duros e resistentes. |
Tabela 8. 9 - Locais mais indicados de aplicação de algumas pedras naturais
| Locais | Pedras |
| Paredes internas | Arenito, dolomita, pedra-mineira, pedra sabão, pedra goiás |
| Paredes externas | Arenito, dolomita, itacolomi, miracema, pedra-madeira, pedra sabão |
| Piso interno | Ardósia, pedra sabão, pedra goiás, são tomé |
| Piso externo | Arenito, itacolomi, miracema, paralelepípedo, pedra sabão, pedra mineira, são tomé, goiás. |
| Borda de piscina | Pedra goiás |
| Jardim | Seixos rolados |
| Bancadas (bar e cozinha) | Pedra sabão e ardósia (polidas) |
O rejuntamento das pedras deve ser feito uma a uma, utilizando uma argamassa de cal, cimento e areia fina peneirada ou massa fina industrializada na proporção de 1: 0,5: 5, e com auxílio de uma espuma retirar o excesso imediatamente.
A limpeza das pedras brutas, após o rejuntamento, é efetuada utilizando ácido muriático diluído em água na proporção de 1:5 (se as superfícies estiverem bem sujas) ou 1:10 (limpeza mais superficial). Enxágüe rápido, com bastante água para evitar danos nos revestimentos.
a) - Mosaico Português
As pedras empregadas para a execução do mosaico Português podem ser o basalto preto, calcário branco ou vermelho. Ela são quebradas manualmente no formato de cubos em torno e 4,0cm no mínimo, serão assentadas sobre colchão de cimento e areia no traço 1:6 seco, na espessura de 3,0cm. Deverão ser molhadas e apiloadas.8.5.10 - Pisos vinílicos
Os pisos vinílicos ou de vinil-amianto, são fabricados a partir da mistura de resina vinílica, fibras, plastificantes e cargas inertes com pigmentos especiais que lhe dão o aspecto característico, proporcionando um produto bastante versátil, além de possuir uma durabilidade bastante elevada e de manutenção simples.São placas de piso 30x30cm e geralmente encontradas em espessuras que variam de 1,6 a 3mm, recomendados conforme o tipo de utilização do ambiente onde é feita a aplicação.
Desempenho
O produto é recomendado para ser aplicado em qualquer piso sobre superfícies já revestidas ou a revestir. Sua base pode se o próprio contrapiso, marmorite, ladrilhos, oralite, pisos plásticos desgastados, ou qualquer outra, desde que esteja firme, limpa e seca. Não se recomenda a colocação em madeira (assoalhos ou tacos) ou sobre bases sujeitas à infiltração ascendente de umidade.
É comumente utilizado em residências, escolas, hospitais, quadras esportivas e estabelecimentos públicos e comerciais.
O piso de 1,6mm de espessura é recomendado para lugares de baixo trânsito, ou seja, ambientes de pouca utilização: quartos, banheiros, lavabos e outros compartimentos residenciais. Os com espessura 2mm podem ser aplicados em qualquer ambiente residencial ou ainda em escritórios particulares, quartos de hospitais, anfiteatros, sanitários públicos e laboratórios. Os de 3mm são utilizados em locais de grande trânsito, lugares de passagem nas residências, como o hall de entrada, elevadores, escadas, salas de aula, refeitórios coletivos, escritórios, salas de consulta ou de espera.
Alguns fabricantes ainda produzem linhas especiais para locais de trânsito pesado como cozinhas e corredores de ambientes de uso coletivo, escadas, lojas, supermercados, repartições públicas de recepção e refeitórios industriais.
Execução
Em imóveis recém-construídos, o contrapiso ou argamassa de regularização deve ser executado de forma adequada, com espessura mínima de 3cm, com argamassa, cimento e areia no traço 1:3. A superfície deve apresentar bem desempenada e para se testar a qualidade verifica-se se está "esfarelado", risca-se com uma ponta firme. Caso apresente problemas, deverá ser refeito. Além disso, ele deve ficar bem aderente na base para evitar qualquer região de possíveis depressões.
Em imóveis que já possuem revestimentos, se existirem falhas ou pedaços soltos, estes devem ser removidos e as falhas preenchidas com argamassa de cimento e areia no traço 1:3. A regularização deve ser feita com uma ou duas demãos de argamassa de P.V.A. na proporção de uma parte de P.V.A. para oito de água, enriquecida de cimento até formar uma pasta "encorpada". No caso de pisos vitrificados, a orientação é a de que se aplique uma primeira demão de regularização com a dosagem de uma parte de P.V.A. para quatro de água e uma segunda demão da argamassa comum com P.V.A. (1:8).
Sobre tacos e assoalhos de madeira, a colocação pode ser feita, desde que entre o produto e a madeira exista uma camada de compensado marítimo, mas nestes casos é interessante que seja feita uma consulta junto aos fornecedores. A colocação sobre pisos plásticos é bem simples, o único cuidado que se deve ter é com a retirada das placas soltas ou com defeitos e a posterior regularização do local.
Colocação
Apesar de a disposição das placas ser da escolha do executor, devem-se respeitar as recomendações de posicionamento, principalmente daquelas que ficam encostadas nas paredes e que não devem possuir dimensões menores que 10cm e não superiores a 25cm. Antes de se espalhar o adesivo, é recomendável dispor as placas para fazer um teste de posicionamento. A aplicação do adesivo é feita por movimentos circulares com uma desempenadeira dentada. A cola deve permanecer descansando por uns 15min. até quando com um leve toque dos dedos sobre o adesivo ele não grudar, e isso acontece somente se for aumentada a pressão sobre ele.
Cuidados e conservação
A presença de umidade compromete todo o revestimento. Ela ataca o adesivo fazendo com que as placas se soltem ou apareçam bolhas na sua parte inferior. Às vezes acontecem variações das dimensões nominais do produto, devido a tensões internas que deformam a placa.
A limpeza pode ser feita somente após dez dias da colocação, com sabão especial e água à vontade. Antes deste tempo não se deve colocar o piso em contato com a água. Para manchas resistentes, deve-se usar uma esponja de aço fina com um pouco de sabão indicado pelo fabricante. Após a lavagem, pode-se encerar com qualquer cera que não contenha solvente ou mesmo algum derivado de petróleo, pois estes elementos atacariam o produto.
8.5.11 - Pisos de borracha
Fabricados com borracha sintética, estes pisos têm sido usado principalmente em áreas de grande trânsito de pessoas, por suas características de alta resistência e superfície antiderrapante.
São placas de piso com espessura de 9 e 15 mm, de superfície pastilhada, estriada ou lisa, geralmente de cor preta, mas que também pode ser encontrada em outras cores. Possui acessórios como degraus, rodapés, canaletas e faixa amarela de alerta.l
Desempenho
É indicado para áreas de grande fluxo de pessoas, por suas qualidades acústicas e pela segurança que proporciona sua superfície antiderrapante. Além disso, é fabricado em duas linhas básicas: pisos de assentamento com argamassa e pisos colados.
Os de assentamento com argamassa são recomendados para locais de tráfego intenso, em áreas internas ou externas. São fabricados em duas espessuras: o de 9mm para locais de acesso público restrito como escolas, corredores, piscinas internas e áreas de rampa. O outro é chamado piso industrial, com 15mm de espessura, indicado para o uso mais pesado, em locais de grande movimentação como aeroportos, estações rodoviárias, estações de metrô e trem, supermercados, passarelas públicas e, recentemente, na Europa, vem sendo utilizados até em estábulos e indicado inclusive para usinas hidrelétricas.
A fixação do piso colado é feita com adesivo e não é recomendado para locais úmidos ou sujeitos a lavagem, devendo ser utilizado somente em áreas internas, principalmente em regiões de rampa e escada. É fornecido com superfície pastilhada, estriada ou lisa, e espessura de 4,5mm. Está sendo colocado no mercado uma linha especial, para aplicação em escritórios. A pastilha em relevo, neste caso, foi reduzida para permitir a movimentação de móveis.
Execução
Os pisos de fixação com cimento são colocados sobre a base preparada, onde deve ser espalhada uma argamassa no traço 1:3 (cimento e areia) e espessura mínima de 3,5cm. Embora recomendada essa espessura pode sofrer modificações a critério do engenheiro. No entanto, exige-se a garantia de um perfeito desempenamento da superfície. A colocação pode ser iniciada até dois dias após a execução do contrapiso. Para tanto basta molhá-lo com água, de maneira uniforme e recobri-lo com uma argamassa no traço 1:2, que também será espalhada na parte inferior das chapas do piso, em quantidade suficiente para preencher todas as cavidades existentes. Depois disso, deve-se dispor as placas, uma a uma, em suas posições, batendo levemente com uma desempenadeira para permitir o seu perfeito posicionamento.
A passagem sobre elas é permitida após 72 horas da colocação, mas a livre utilização do piso é aconselhada somente após seis dias. Quando a colocação é feita simultaneamente com a preparação da argamassa de assentamento, simplesmente apoia-se a chapa sobre ele, previamente preenchidas com argamassa. Se opção for pelo piso estriado, é recomendável que seja disposto pelo sistema de juntas de amarração, para evitar problemas de alinhamento entre as estrias da superfície das placas.
No caso do piso fixado com adesivo, este procedimento é feito com adesivos plásticos comuns, mas a colocação ficará comprometida se for empregado em ambientes sujeitos a lavagens. Uma opção para se evitar o problema é a utilização de adesivos com base epóxi, contra a umidade. O procedimento de colocação inicia-se pela verificação das condições da base, que deve estar bem nivelada e sem defeitos. Em seguida o espalhamento do adesivo é feito conforme as técnicas já conhecidas, através de espátulas denteadas e o posicionamento das peças é feito posteriormente.
Cuidados e conservação
Se por qualquer motivo, as placas fixadas com argamassa soltarem-se, seja por má fixação ou pressa na utilização, a orientação é que se refaça todo o trabalho de colocação, isto é, deve-se remover a massa do contrapiso e substitui-la por uma nova camada a fim de garantir a reposição da placa. O produto normal não resiste à ação de agentes químicos, como solventes, mas casos especiais de utilização, são produzidas borrachas com resistência a qualquer tipo de produto, desde que se faça uma encomenda especial.
Após o término da obra recomenda-se uma limpeza com escova e a aplicação de uma demão de cera solúvel apropriada de cor preta, cujo líquido penetre nas juntas entre as placas e elimina as molduras formadas pela poeira. A manutenção é feita com cera vegetal de boa qualidade e o brilho é conseguido pelo emprego de enceradeira.
8.5.12 - Pisos laminados
As chapas de pisos laminados são produzidas através da prensagem de papéis impregnados com resinas fenólicas, recobertos com material melamínico, sob um rígido controle de temperatura. O resultado é um produto que possui alta resistência ao desgaste e umidade.São placas de piso com espessuras de 2mm nas dimensões de 0,6m por 0,6m, encontradas também em réguas com larguras de 0,3m e 0,2m por 3,08m x 1,25m.
Desempenho
Recomendado para ser aplicado sobre quaisquer superfícies, estejam elas revestidas ou não. As bases podem ser cimentados, tacos, assoalhos, cerâmicos, ladrilhos e outras, desde que estejam niveladas e sem falhas.
O produto proporciona um acabamento texturizado, antiderrapante. Possui resistência contra as marcas deixadas por equipamentos pesados, cargas móveis, saltos de sapatos. É de difícil penetração, dissipa a eletricidade estática e não acumula poeira. Além disso, resiste bem aos agentes químicos, detergentes e tintas. Não é absorvente, não apresenta porosidades e é antialérgico.
Execução
A base ideal para a aplicação dos laminados é formado por uma argamassa de cimento e areia no traço 1:3 bem desempenada e com superfície acamurçada. Além disso, a massa deve estar bem curada e isenta de umidade por infiltração. No entanto, as placas podem ser aplicadas sobre tacos de madeira ou pisos frios, desde que estejam em boas condições e para isso é interessante que se faça uma verificação minunciosa no local. Alguns problemas que podem ocorrer são: contrapiso esfarelando ou apresentando trincas e rachadoras. Nestes casos, recomenda-se que o serviço seja refeito de forma a eliminar estes problemas. Quando a base apresentar lombadas ou concavidades, a orientação é no sentido de eliminar as mesmas por lixamentos superficiais ou então com o preenchimento do local com argamassa de cimento e areia. Não é recomendado que a superfície fique lisa ou áspera demasiadamente, o ideal é encontrar uma textura satisfatória. Em áreas que possuem umidades, é aconselhável a eliminação da mesma, seja ela de ordem interna ou externa.
Colocação
A utilização de técnicas e ferramentas adequadas para a operação de colocação dos pisos laminados é um fator importante para garantia do serviço executado. A técnica de cortar e recortar as placas, deve merecer cuidado, pois a perfeita junção entre elas depende deste trabalho, que é feito ao se marcar com um lápis, sobre a face decorativa da chapa. a linha onde se quer cortar. Depois disso, o colocador deve, com o auxílio de uma régua e do riscador, marcar e aprofundar o risco, atingindo a metade da espessura da chapa. A separação entre as partes é feita vergando-as para o lado decorativo até que se parta o sulco aberto. A operação de marcar a placa, exige cuidado, pois o desvio do instrumento com que se risca pode inutilizar a parte decorativa. Para o desgaste lateral, usa-se a plaina, a lima e a lixa, ajustando as mesmas às dimensões desejadas. A cola deve ser aplicada nas duas faces, isto é, na superfície a ser revestida e na chapa laminada.
Antes porém, deve-se espalhar sobre a base, uma demão de mistura em partes iguais de cola e diluente, fechando os poros da superfície. Após a secagem, espalha-se o adesivo com uma espátula sobre as duas faces que serão coladas. Após a evaporação do solvente, que é verificada através de um teste simples - não deve grudar nos dedos - , a placa deve ser colocada em sua situação definitiva e precionada a partir do centro para as bordas de modo a permitir a colagem. Em seguida, com um martelo ou rolete de borracha, aumenta-se a pressão, assegurando a boa fixação. Sempre deve-se prever um espaçamento adequado a fim de permitir a dilatação das placas. Em áreas molhadas ou em hospitais - onde a vedação das juntas é obrigatória - geralmente se utilizam vedantes especiais elásticos que possam ser aplicados diretamente sobre as juntas.
Cuidados e conservação
Se o produto for aplicado de acordo com as recomendações, não deverá apresentar defeitos. Se, no entanto, for necessária a descolagem de uma placa, isto é feito com o auxílio de um formão para levantá-la e um borrifador que injeta diluente sobre o adesivo e facilita a descolagem.
A limpeza pode ser feita normalmente e não precisa de cuidados especiais. Não é necessário o uso de cera, pois o brilho característico do produto é restaurado com a simples passagem de um pano úmido.
8.5.13 – Piso de Concreto
Utilizado principalmente para pisos Industriais interno ou externo, posto de gasolina, garagens de esdifícios etc. Devem ser cercados de todos os cuidados possíveis para a sua boa execução e utilização como: o cálculo estrutural, a análise do terreno de fundação, o estudo das juntas, os materiais a serem empregados o posicionamento das armaduras, a concretagem a cura e o controle de qualidade dos pisos. Devem ser armados, melhorando consideravelmente a durabilidade e manutenção.
Para os pisos armados pouco solicitados, como nos salões comerciais, garagens, quadras podemos adotar o seguinte:
- Sub base preparada preferencialmente com brita graduada tratada com cimento sendo 40% de brita 1, 40% de brita 2, 20% de areia fina e 6% de cimento em peso, compactada.
- Lona plástica sobre a sub base, para evitar que a infiltração de água pelas juntas prejudique a sub base.
- A armadura ( de preferência tela soldada ) deverá, obrigatoriamente, estar posicionada a 1/3 da face superior da placa, com recobrimento mínimo de 5,0cm.
- Quando não se tem certeza de um preparo confiável do solo, utilizar armadura ( tela soldada ) adicional a 3,0cm da face inferior da placa.
- Resistência mínima do concreto:
- 20 Mpa – Pedestres e carros, escritórios, lojas
- 25 MPa – Uso industrial geral: veículos com pneumáticos, condições moderadas de ataque químico.
- Slump entre 5 a 10 cm
- As juntas tem a função de permitir as movimentações de contração e expansão do concreto, porem representam pontos frágeis no piso, pois se não forem adequadamente projetadas e executadas, podem provocar deficiência estrutural bem como infiltração de água e outros materiais.
Os pisos armados tem vantagens sobre os pisos de concreto simples, pois permitem a redução considerável do número de juntas.
A junta é a descontinuidade do concreto e da armadura, sem no entanto ter descontinuidade estrutural ( utilização de barras de transferência ), podendo ser Juntas de Retração longitudinais e/ou transversais, construtivas ou serradas e Juntas de Expansão (encontro) situada nos encontros dos pisos com peças estruturais ou outros elementos que impedem a movimentação dos pisos.
O espaçamento das juntas podem ser:
Piso não armados: placas com no máximo 3,0m, para pisos de 10 a 12,5cm de espessura, placas de no máximo 5,0m, para pisos de 12,5 a 15 cm de espessura e, placas de no máximo 8,0m, para pisos de 15 a 25 cm de espessura.
Piso armado: placas com comprimento até 30m.
A largura da placa é limitado pela armadura distribuída, pelos equipamentos e métodos executivos.
A concretagem pode ser executada de duas maneiras: em dama (xadrez), sistema mais antigo, onde a concretagem é efetuada isoladamente das placas vizinhas, que só serão concretadas 24 horas após ou em faixas, onde as juntas serão serradas após dois dias no mínimo (Figura 8.17).
OBS: Hoje em dia , a concretagem em dama deve ser evitada, podendo ser empregada apenas em trabalhos muito simples.
Figura 8.17 - Detalhes da execução do piso de concreto
ANOTAÇÕES
1 - Na colocações de pisos em grandes áreas deve-se prever juntas de dilatação(expansão). Para cada tipo de piso deve-se estudar a junta mais indicada, e a mesma deverão coincidir com as juntas estruturais efetuadas no contrapiso.2 - Verificar sempre se a argamassa de regularização para pisos, assentados com cola, esteja seca do tipo “farofa" no ato da sua aplicação.
3 - Nos pisos de concreto pode ser adicionado fibras (de aço, sintéticas etc...), que auxiliam na redução das fissuras.
TÉCNICAS DE CONSTRUÇÃO CIVIL E CONSTRUÇÃO DE EDIFÍCIOS
09 - MANIFESTAÇÕES, ASPECTOS, CAUSAS PROVÁVEIS E
REPAROS EM REVESTIMENTO
APÓS ESTUDAR ESTE CAPÍTULO; VOCÊ DEVERÁ SER CAPAZ DE:
• Saber analisar as manifestações apresentadas nos revestimentos;
• Saber as causas prováveis das patologias dos revestimentos;
• Especificar corretamente os reparos;
• Especificar os materiais ideais para os revestimentos.
Podemos observar nas edificações os seguintes fenômenos, prejudiciais ao aspecto de paredes e tetos:
a- a pintura acha-se parcial ou totalmente fissurada, deslocando da argamassa de
revestimento; b- há formação de manchas de umidade, com desenvolvimento de bolor;
c- há formação de eflorescência na superfície da tinta ou entre a tinta e o reboco; d- a argamassa do revestimento descola inteiramente da alvenaria, em placas compactas ou por desagregação completa;
e- a superfície do revestimento apresenta fissuras de conformações variada; f- a superfície do revestimento apresenta vesículas com deslocamento da pintura; g- o reboco endurecido empola progressivamente, deslocando do emboço.
Estes fenômenos podem se apresentar como resultados de uma ou mais causas, atuando sobre a argamassa de revestimento; tais como:
a- tipo e qualidade dos materiais utilizados no preparo da argamassa de revestimento. b- mau proporcionamento das argamassas; c- má aplicação de revestimento; d- fatores externos ao revestimento;
Todos os tipos de danos de revestimento tem importância do ponto de vista da economia e satisfação do usuário.
À preocupação do usuário com o custo do reparo do revestimento deve-se acrescentar a sensação desagradável do mesmo precisar coexistir com um ambiente visualmente antiestético.
9.1 - ANÁLISE DAS CAUSAS
9.1.1 - Causas decorrentes da qualidade dos materiais utilizados
Agregados
Em nosso meio é utilizada, como agregado, a areia natural essencialmente quartzosa. São particularmente prejudiciais impurezas tais como: aglomerados argilosos, pirita, mica, concreções ferruginosas e matéria orgânica. Dos efeitos observáveis, a expansão pode ser resultante da formação de produtos de oxidação da pirita e das concreções ferruginosas - sulfatos e óxidos de ferro hidratados, respectivamente - de hidratação de argilo-minerais montmoriloníticos ou de matéria orgânica. A matéria orgânica pode ser a causa de formação de vesículas esporádicas; no interior de cada vesícula observa-se um ponto escuro (Figura 9.1)
Figura 9.1 - Vesícula formada no reboco. No centro da vesícula, material pulverulento escuro.
A desagregação do revestimento, por sua vez, tem como causa a presença de torrões argilosos, com excesso de finos na areia ou de mica em quantidade apreciável. A mica pode também reduzir a aderência do revestimento à base ou de duas camadas entre si.
Cimento
Não existe inconveniente quanto ao tipo de cimento, mas sim, quanto à finura que regulará os níveis de retração por secagem. A retração nas primeiras 24 horas é controlada pela retenção de água que, por sua vez, é proporcional ao teor de finos. Mas, em idades, maiores, a retração aumenta com o teor de finos. De modo a contornar o problema, costuma-se adicionar aditivo incorporador de ar à argamassas de cimento, exceção feita à de chapisco. Outra alternativa é a da adicionar-se cal hidratada que aumenta o teor de finos, melhorando a retenção de água e trabalhabilidade do conjunto.
Cal
A produção de cal virgem e de cal hidratada e o endurecimento da argamassa pertence a um ciclo de reações que se inicia pela decomposição do constituinte principal da matéria-prima, o carbonato, terminando pela sua regeneração no endurecimento da argamassa, como resultado da ação do anidrido carbônico do ar.
A etapa intermediária, de hidratação da cal virgem, dá-se por uma reação contínua, cuja velocidade depende das condições de calcinação da matéria-prima. Comparativamente, a cal virgem dolomítica tem velocidade de hidratação mais lenta. Quando esta reação não é completa durante a extinção em fábrica, pode continuar após o ensacamento, durante o amassamento e após a aplicação da argamassa. O inconveniente é o aumento de volume que acompanha a reação de hidratação. A hidratação retardada é a responsável pelo rasgamento do saco quando a cal é armazenada por tempo prolongado.
Se utilizada logo após a fabricação, o aumento de volume causa danos ao revestimento, mais propriamente na camada de reboco, com efeitos diferentes, quer se trate do óxido de cálcio de magnésio presentes na cal. Existindo óxido de cálcio livre, na forma de grãos grossos, a expansão não pode ser absorvida pelos vazios de argamassa e o efeito é o de formação de vesículas, observáveis nos primeiros meses de aplicação do reboco.
Ao ser a hidratação do óxido de magnésio muito mais lenta, ela se dá simultaneamente à carbonação. O revestimento endurecido empola gradativamente deslocando-se do emboço (figura 9.2)
Figura 9.2 - Aspecto típico do deslocamento da argamassa do cal do revestimento interno.
Observar-se que o empolamento e mais localizado em regiões onde há maior incidência do sol ou de aquecimento por fontes quaisquer (fogão, aquecedores, tubulação água quente).
9.1.2 - Causas decorrentes do traço da argamassa
Argamassa de cimentoA primeira camada do revestimento é constituída pelo emboço, cuja função é regularizar a superfície da base; como já visto, para que essa camada seja suficientemente elástica deve conter cal e cimento em proporções adequadas. Observam-se fissuras e deslocamento quando esta camada é excessivamente rica em cimento (proporção 1:2 em massa, por exemplo), condição agravada quando aplicada em espessura maior de 2 cm.
Argamassa de cal
O endurecimento é resultante da carbonatação da cal. Assim sendo, a resistência da argamassa é função de uma proporção adequada, areia, cal e de condições favoráveis à penetração do anidrido carbônico do ar atmosférico através de toda a espessura da camada.
Em camadas pouco espessas como as de reboco, a carbonatação é favorecida pela pequena espessura da camada, mas desfavorecida por uma porosidade baixa resultante de uma argamassa rica em finos, procedentes tanto do agregado como do aglomerante.
Podemos considerar como argamassa rica a que contém proporção cal-areia, em massa superior a 1:3. Com relação ao agregado é desaconselhável a utilização de argamassa de saibro.
9.3 - Argamassa magra de saibro e cal aplicada muito espessa. A incidência da chuva favorece o fenômeno de desagregação, iniciando-se na parte inferior da alvenaria.
A Figura 9.3 nos mostra a desagregação de um revestimento de uma única camada com espessura fora de especificação, construída de saibro e cal, com a agravante de ter sido aplicado sem chapisco sobre blocos de concreto. Para as camadas de 2cm aproximadamente ou mais, como as de emboço, é aplicada a utilização de cimento e cal.
Uma argamassa magra tem porosidade favorável à carbonatação mas não tem a resistência suficiente para manter-se aderente ao emboço ou à alvenaria, quando aplicada como revestimento em uma única camada. Constata-se casos de deslocamento acompanhado de desagregação, para argamassa de 1:16 ou ainda para proporções maiores.
9.1.3 - Causas decorrentes do modo de aplicação do revestimento
Aderência à base
Independentemente do número de camadas de argamassa aplicadas, ou da qualidade dos materiais empregados, é essencial que existam condições de aderência do revestimento à base.
9.4 - Argamassa em processo de deslocamento por falta de chapisco.
A Figura 9.4 nos mostra o deslocamento de revestimento aplicado sem chapisco. A aderência se dá pela penetração da nata no aglomerante nos poros da base e endurecimento subseqüente. Consequentemente, vai depender da textura e da capacidade de absorção da base, bem como da homogeneidade dessas propriedades.
Assim, pode apresentar problema de aderência, uma camada do revestimento aplicada sobre outra impregnada de um produto orgânico, o qual impede a penetração da nata do aglomerante. Cita-se, como exemplo, uma superfície de concreto impregnada de desmoldante ou uma camada de chapisco contendo um produto hidrofugante.
Outra causa a ser citada é a ausência de rugosidade da camada da base.
O revestimento mantém-se aderente nas regiões correspondentes às juntas do assentamento. Sendo a área dessas juntas relativamente pequena, o revestimento acaba por descolar sob efeito do seu próprio peso.
Espessura do revestimento
Segundo as prescrições da NB-231 "Revestimento de paredes e tetos com argamassas: materiais, preparo, aplicação e manutenção", a espessura do emboço não deve ultrapassar 2cm e a do reboco 2mm. Observa-se que em alguns casos deslocamento de revestimento de laje de teto o emboço chega a apresentar espessura de 5cm. Este fato, agravado por em traço rico de cimento, não permite que o revestimento acompanhe a movimentação da estrutura, deslocando-se. No reboco, o efeito observado é de desagregação por falta de carbonatação.
Aplicação da argamassa
Para argamassa contendo cimento, se o tempo de endurecimento e secagem da camada inferior não é observado antes da aplicação da camada superior, a retração que acompanha a secagem da camada inferior gera fissuras, com configuração de mapa, na camada superior.
O alisamento intenso da camada de reboco propicia uma concentração de leite de cal na superfície. Por carbonatação , forma-se uma película de carbonato uniforme que age como uma barreira à penetração do anidrido carbônico, impedindo o endurecimento do interior da camada de revestimento.
9.1.4 - Causas decorrentes do tipo de pintura
As tintas a óleo ou à base de borracha clorada e epóxi promovem uma camada impermeável que dificulta a difusão do ar atmosférico através da argamassa de revestimento. Se a pintura for aplicada prematuramente, o grau de carbonatação atingido não é suficiente para conferir à camada de reboco a resistência suficiente e este acaba por deslocar-se do emboço com desagregação (Figura 9.5).
Figura 9.5 - Revestimento em processo de deslocamento por carbonatação insuficiente.
9.1.5 - Causas externas ao revestimento
Umidade
A infiltração de água através de alicerces, lajes cobertura mal impermeabilizadas ou argamassas de assentamento magras, manifesta-se por manchas de umidade, acompanhada ou não pela formação de eflorescência ou vesículas. A infiltração constante provoca a desagregação do revestimento, com pulverulência (Figura 9.6), ou formação de bolor em pontos onde não há incidência de sol (Figura 9.7).
9.6 - Efeitos da umidade sobre o reboco. A argamassa nos pontos empolados é pulverulenta e facilmente removível. A alvenaria freqüentemente exposta ao sol não favorece a formação do bolor.
Figura 9.7 - Acúmulo de bolor no revestimento por efeito de umidade.
No caso de tintas impermeáveis, a eflorescência deposita-se entre a camada de tinta e a do reboco, comprometendo a aderência entre ambas. Estas tintas são também responsáveis pela formação de vesículas ou bolhas que resultam da percolação da água através da alvenaria e que se acumula entre o revestimento e a tinta.
Expansão da argamassa de assentamento
Ocorre predominantemente no sentido vertical e pode ser identificada por fissuras horizontais no revestimento (Figuras 9.8, 9.9, 9.10). A expansão da argamassa de assentamento pode ser provocada por reações químicas entre os constituintes desta argamassa ou mesmo entre compostos do cimento e dos tijolos ou blocos que compõem a alvenaria. As causas podem ser as seguintes:
- reação de sulfato do meio ambiente ou do componente da alvenaria com o cimento da argamassa;
- hidratação retardada da cal dolomitica usada na argamassa de assentamento.
Figura9.8 - Fissura do revestimento externo por Figura9.9 - Fissuras do revestimento por expansão da argamassa de assentamento expansão da argamassa de assentamento
Figura 9.10 - Aspecto do revestimento interno. Notam-se as fissuras do revestimento e da argamassa de rejuntamento dos azulejos.
9.2. REPAROS
A possibilidade de reparo é função do tipo e extensão do dano existente. Os danos nem sempre aparecem em toda a edificação, mas comumente localizados em pontos onde o fenômeno que os originou é mais favorecido. Nestes casos, a tendência do usuário é executar pequenos reparos, sem a preocupação com a causa. Em conseqüência, o fenômeno alastra-se progressivamente, às vezes por um largo tempo, solicitando um reparo constante, talvez antieconômico se comparado a uma execução completa. Por isso mesmo, é necessária a identificação das causas e da extensão do dano para melhor decidir-se sobre a solução a ser adotada, como segue na Tabela 9.1.
Tabela 9.1 - Identificação das causas, extensão do dano e solução.
| Manifestações | Aspecto observado | Causas prováveis atuando com ou sem simultaneidade | Reparos |
| Manchas de umidade Pó branco acumulado sobre a superfície | Umidade constante Sais solúveis presentes no elemento da alvenaria Sais solúveis presentes na água de amassamento ou unidade infiltrada Cal não carbonada | Eliminação da infiltração da umidade Secagem do revestimento Escovamento da superfície Reparo do revestimento quando pulverulento | |
| Bolor | Manchas esverdeadas ou escuras Revestimento em desagregação | Umidade constante Área não exposta ao so | Eliminação da infiltração da umidade Lavagem com solução de hipoclorito Reparo do revestimento quando pulverulento |
| V esículas | Empolamento da pintura, apresentando-se as partes internas das empolas na cor: - branca - preta - vermelho acastanhado - bolhas contendo umidade interior | - Hidratação retardada de óxido de cálcio da cal. - Presença de pirita ou de matéria orgânica na areia - Presença de concreções ferruginosas na areia - Aplicação prematura de tinta impermeável - | Renovação da camada de reboco Eliminação da infiltração da umidade |
| Deslocamento com Empolamentos | A superfície do reboco formando bolhas cujos diâmetros aumentam progressivamente O reboco apresenta som cavo sob percussão | Infiltração de umidade Hidratação retardada do óxido de magnésio da cal | Renovação da pintura Renovação da camada de reboco |
| Manifestações | Aspecto observado | Causas prováveis atuando com ou sem simultaneidade | Reparos |
| Fissuras Mape adas | As fissuras têm forma variada e distribuem-se por toda a superfície | Retração da argamassa de base | Renovação do revestimento Renovação da pintura |
| Deslocamen to em Placa | A placa apresenta-se endurecida, quebrando com dificuldade Sob percussão o revestimento apresenta som cavo | A superfície de contato com a camada inferior apresenta placas freqüentes de mica Argamassa muito rica Argamassa aplicada em camada muito espessa A superfície da base é muito lisa A superfície da base está impregnada com substância hidrófuga Ausência da camada de chapisco | Renovação do revestimento: - apicoamento da base - eliminação da base hidrófuga - aplicação de chapisco ou outro artifício para melhoria da aderência |
| A placa apresenta-se endurecida mas quebradiça, desagregando-se com facilidade Sob percussão o revestimento apresenta som cavo | Argamassa magra Ausência da camada de chapisco | Renovação do revestimento | |
| Fissuras Horizontais | Apresenta-se ao longo de toda a parede | Expansão da argamassa de assentamento por hidratação retardada, do óxido de magnésio da cal | Renovação do revestimento após hidratação completa da cal da argamassa de assentamento |
| Deslocamento do revestimento em placas, com som cavo sob percussão | Expansão da argamassa de assentamento por reação cimentosulfatos ou devido à presença de argilo-minerais expansivos no agregado | A solução a adotar é função da intensidade da reação expansiva | |
| Deslocam ento com Pulve rulência | A película de tinta desloca arrastando o reboco que se desagrega com facilidade O reboco apresenta som cavo sob percussão | Excesso de finos no agregado Traço em aglomerantes Traço excessivamente rico em cal Ausência de carbonatação da cal O reboco foi aplicado em camada muito espessa | Renovação da camada de reboco |
OBS: Estão excluídas desta análise as fissuras de revestimento, resultantes de causas tais como recalques de fundação, movimentação de estrutura, dilatações térmicas diferenciadas, etc.
TÉCNICAS DE CONSTRUÇÃO CIVIL E CONSTRUÇÃO DE EDIFÍCIOS
10 - TINTAS E VIDROS
APÓS ESTUDAR ESTE CAPÍTULO; VOCÊ DEVERÁ SER CAPAZ DE:
• Escolher o tipo de tinta ideal para a sua edificação;
• Especificar corretamente o preparo das bases para a aplicação das tintas;
• Especificar corretamente o esquema de pintura;
• Verificar a qualidade das tintas;
• Classificar corretamente os vidros;
• Especificar corretamente a colocação dos vidros.
10.1 - TINTAS
A tinta é uma composição líquida, pigmentada que, quando aplicada sobre uma superfície, torna-se uma película protetora e decorativa, além de exercer função sanitária e influir na distribuição da luz. Sua composição básica inclui pigmento, veículo, solventes e aditivos.
Os pigmentos são partículas sólidas (pó) e insolúveis. Podem se divididos em dois grandes grupos, ativos e inertes. Os pigmentos ativos possuem função de conferir cor e capacidade de cobertura a tinta , enquanto que os inertes (ou cargas) encarregam-se de proporcionar outras características, tais como lixabilidade, dureza, consistência, etc.. Uma tinta pode conter vários pigmentos.
O veículo de uma tinta é constituído por resinas, sendo responsável pela formação da película protetora na qual se converte a tintas depois de seca. Os solventes são utilizados pelo fabricante nas diversas fases da fabricação da tinta, para facilitar o empastamento dos pigmentos, para regular a viscosidade da pasta de moagem, facilitar a fluidez dos veículos e das tintas prontas, na fase de enlatamento. O usuário emprega o solvente para adequar a tinta às condições de pintura, visando à facilidade de aplicação, alastramento, etc.. Entre os solventes mais comuns encontram-se a água, aguarrás, álcoois, cetonas, xilol, etc...
10.1.1 - SEUS TIPOS
Aqui são relacionados os tipos comumente encontrados na construção civil classificados de acordo com os veículos utilizados em sua formulação.
Caiação - Nas construções rurais, é a caiação a pintura mais indicada para as paredes por ser mais econômica que as demais, de fácil execução, além de ser desinfetante. No preparo da tinta recomendam-se os seguintes cuidados: cal de boa qualidade; queima de cal em vasilhame limpo e passagem da pasta através de uma peneira fina. A adição da água deve ser em quantidade necessária para obter-se uma pasta maleável, ou seja, um leite de cal mais ou menos denso.
Há necessidade de, no mínimo, três demãos, sendo que, no caso de aplicação de cores, a primeira demão deve ser branca.
Nas caiações em paredes externas, junta-se à tinta uma certa quantidade de óleo de linhaça para melhor aderência da pintura. Quando é necessária maior proteção contra a infiltração de água da chuva, adiciona-se à cal produtos impermeabilizantes.
Aplicação: brochas, pincéis grandes, etc...
Látex P.V.A. - é uma tinta aquosa, à base de acetato de polivinila (P.V.A.).
Látex Acrílico - é também uma tinta aquosa, à base de emulsões acrílicas, que conferem a tinta maior resistência ao intemperismo. Este fato faz com que as tintas acrílicas sejam recomendadas, preferencialmente, para superfícies externas.
Esmalte Sintético - é uma tinta à base de resinas alquídicas, de óleos secativos e solventes.
Tinta Óleo - é semelhante ao esmalte sintético, com preponderância do teor óleo.
Tinta Epóxi - é uma tinta em solução, à base de resinas epóxi, de grande resistência à abrasão. Apresenta-se em dois componentes: tinta e catalisador.
Verniz Poliuretano - é uma solução de resinas poliuretânicas, em solventes alifáticos.
Tinta de borracha Clorada - é uma solução à base de borracha clorada, de alta plasticidade e de grande resistência à água.
10.1.2 - SUA QUALIDADE
Ao se abrir uma embalagem pela primeira vez, a tinta deve satisfazer às seguintes condições: não apresentar excesso de sedimentação, coagulação, galeificação, empedramento, separação de pigmentos ou formação de pele (nata); torna-se homogênea mediante agitação manual; não apresenta odor pútrido e nem expelir vapores tóxicos. Na superfície interna da embalagem não deve haver sinais de corrosão. No momento de aplicação, a tinta precisa se espalhar facilmente, de maneira que o rolo ou pincel deslizem sem resistência (suavemente), devendo as marcas destes acessórios desaparecerem logo após a aplicação da tinta, resultando uma película uniforme, quanto ao brilho, cor e espessura.
Rendimento e cobertura são dois conceitos distintos. O primeiro expressa a relação entre a área pintada e o volume de tinta gasto (l / m²). O outro refere-se à capacidade da tinta de cobrir totalmente a superfície (contraste e cor). Na prática, esta capacidade é medida em número de demãos.
Estas duas propriedades estão intimamente ligadas ao tipo, qualidade e quantidade de resinas e de pigmentos utilizados na formulação da tinta. É justamente aqui, na variação destes elementos, que se têm as maiores diferenças de qualidade entre as tintas no mercado.
A durabilidade de uma tinta refere-se à resistência à ação do intemperismo ao longo do tempo. A melhor tinta é aquela que demora mais para calcinar, desbotar, perder sua boa aparência, bem como suas propriedades de proteção. A qualidade também depende do tipo da tinta e a maneira de se medir previamente a durabilidade de uma tinta é através de testes de imtemperismo acelerado, o que os pode ser feito em laboratório.
As tintas devem ser laváveis, apresentar resistência à ação de agentes químicos, comuns no uso doméstico, tais como detergentes, água sanitária, etc... Além disso, precisam prevenir o desenvolvimento de organismos biológicos - fungos e bactérias.
Normalmente, os tipos de tinta mencionados devem ser armazenados em locais secos e ventilados, não sujeitos a grandes variações térmicas. Assim, após um ano da data da fabricação, a tinta armazenada na embalagem original, cheia e fechada, atendendo às recomendações de temperatura do fabricante, não pode apresentar formação de pele e os problemas já mencionados anteriormente.
10.1.3 - PREPARAÇÃO DA SUPERFÍCIE
A adequada preparação da superfície é fator tão importante como a escolha de bons produtos para a sua pintura. Os seguintes cuidados devem ser observados: ela deve ser limpa, seca, isenta de poeira, gordura, sabão ou mofo, deve-se utilizar água morna com detergente para eliminar manchas de gordura; aplicar uma solução de água com cerca de 25% de água sanitária para remover as partes mofadas e, em seguida, enxaguar a superfície; corrigir com argamassa as imperfeições profundas da parede; as pequenas imperfeições (rasas) devem ser corrigidas com massa corrida (em reboco interno) ou massa acrílica (em reboco externo); raspar ou escovar as partes soltas ou mal aderidas; eliminar o brilho de qualquer origem, usando lixa de grana adequada.
Antes de iniciar a pintura sobre um reboco novo, é preciso aguardar que ele esteja seco e curado. Se a tinta for aplicada sobre o reboco mal curado, provavelmente a pintura descascará, porque a impermeabilidade da tinta dificultará a saída da umidade e as trocas gasosas necessárias à carbonatação do reboco, sem a qual tornar-se-á pulverulento sob a película da tinta, causando o descascamento.
Rebocos deficientes, com pouco cimento, apresentam superfície poucos coesas, fato que pode ser verificado ao se esfregar a mão sobre o reboco, constatando-se a existência de partículas soltas (grãos de areia). Neste caso, recomenda-se aplicar uma demão de fundo à base de solvente , com alto poder de penetração e grande resistência à alcalinidade natural do reboco. Este procedimento resultará nos seguintes benefícios: fixação de partículas soltas, aumentando a coesão da superfície; proteção do acabamento contra alcalinidade do reboco; uniformização da absorção da superfície e aumento do rendimento do acabamento.
A superfície de madeira, pintada pela primeira vez, deve ser lixada para que sejam eliminadas as farpas. Em seguida aplica-se uma demão de fundo branco fosco, com diluição de até 15% de diluente e corrigem-se as imperfeições com massa a óleo. Após a secagem, lixa-se novamente, removendo-se a poeira e aplicando-se o acabamento.
Na repintura sobre madeira, o procedimento é semelhante ao da primeira pintura, dispensando-se aplicação de fundo branco fosco.
No caso de envernizamento da madeira, não se aplica fundo branco fosco e nem massa a óleo, mas sim selador para madeira, lixa-se e se aplica o verniz.
Para a pintura nova sobre ferro é necessário remover-se a ferrugem, utilizando lixa ou escova de aço, e aplica-se fundo a base de zarcão ou óxido de ferro e pintar. Na repintura, elimina-se a ferrugem e aplica-se o fundo apenas nas partes onde a superfície metálica esteve exposta. Após a secagem, lixa-se para nivelar a base e aplica-se o acabamento. Outro produto conhecido como Neutralizador de Ferrugem, pode ser usado antes de aplicarmos o zarcão, ele é aplicado a frio e transforma quimicamente a superfície do ferro ou oxidos nela existentes em fosfatos inertes do ponto de vista da corrosão, impedindo o aparecimento de ferrugem.
10.1.4 - ESQUEMA DE PINTURA
Qualquer que seja o esquema de pintura a ser aplicado, recomenda-se observar atentamente as orientações sobre a preparação da superfície. O número de demãos e as indicações sobre a diluição das tintas baseiam-se em produtos de boa qualidade, podendo haver significativas variações, já que existe uma grande diferença de qualidade entre as tintas disponíveis no mercado. No entanto, recomenda-se seguir a orientação do fabricante.
O acabamento convencional sobre rebocos (interno e externo) requer uma demão de tinta látex (P.V.A. ou acrílica), bem diluída (com até 100% de água), duas demãos de tinta látex com diluição de 20 a 30% de água.
No acabamento liso interno, deve-se aplicar massa corrida em camadas finas e duas demãos de tinta látex, com diluição de 20 a 30% de água. No externo processe-se da mesma forma, apenas utilizando-se de tinta látex acrílica, com diluição de 20 a 30% de água.
Quando se pretende um acabamento acrílico texturado, deve-se aplicar uma demão de látex textura acrílica, com diluição de 40 a 50% de água (usar rolo de lã) , uma demão de látex textura acrílica, com diluição de 10% de água (usar rolo de espuma). Quando se deseja resistência superior e maior durabilidade do acabamento, aplicam-se duas demãos de tinta látex acrílica sobre a textura acrílica.
No acabamento liso de áreas molháveis - banheiros, cozinhas, etc. - deve-se aplicar massa acrílica em camadas finas, duas demãos de esmalte sintético brilhante, sendo a primeira com diluição de até 15% de diluente e a segunda com até 5%. Quando se pretende um acabamento texturizado, deve-se usar uma demão de látex textura acrílica com diluição de até 10% de água (usar rolo de espuma) e, finalmente, duas demãos de esmalte sintético brilhante, sendo a primeira com diluição de até 15% de diluente e a segunda até 5%.
No acabamento texturado em corredores, escadarias, etc. deve-se aplicar uma demão de látex textura acrílica, com diluição de 40 a 50% de água (usar rolo de lã), uma demão de látex textura acrílica, com diluição de até 10% de água (usar rolo de espuma) e, finalmente, uma demão de liqui-brilho, com diluição de até 10% de água, com a finalidade de facilitar a limpeza, aumentando o brilho da superfície.
A repintura sobre superfícies críticas, isto é, látex em mau estado, calcinado, descascando, ou caiação, deve ser efetuada removendo-se as partes soltas com espátula, fazer os reparos, lixar a superfície, eliminar o pó e aplicar o fundo à base de solventes (1), de alto poder de penetração, convenientemente diluído, para que a superfície não se torne brilhante. Se isto ocorrer, lixa-se levemente para quebrar o brilho. Em seguida, aplicam-se duas demãos de tintas látex - P.V.A. ou acrílica - com diluição de 20 a 30% de água.
No acabamento direto sobre bloco de concreto (interno ou externo), recomenda-se frisar a massa de assentamento de maneira que os frisos sejam rasos, o que facilita a aplicação da pintura. A massa de assentamento não deve apresentar falhas, fissuradas ou orifícios. Se isto ocorrer, deve-se efetuar os reparos necessários com a mesma massa.. Em seguida aplica-se uma demão de látex textura acrílica, com diluição de 40 a 50% de água (usar rolo de lã). Preferencialmente, sobre a massa de assentamento (frisos), esta primeira demão deve ser feita com pincel, uma demão de látex textura acrílica, com diluição de 30 a 40% de água, resultando um aspecto final semelhante à própria textura do bloco (usar rolo de lã). Para maior resistência e durabilidade do acabamento, recomenda-se aplicar mais duas demãos de tinta látex (P.V.A. ou acrílica), com diluição de 20 a 30% de água.
Para obter um acabamento texturizado, esta segunda demão de textura acrílica deve ser aplicada com diluição de até 10% de água, (usar rolo de espuma). Neste caso, recomenda-se especial atenção no sentido de que os frisos da massa de assentamento não sejam profundos e de que não haja irregularidades acentuadas (buracos) na superfície dos blocos, pois a tinta menos diluída tenderá a encher tais depressões. Se forem profundas, poderá haver trincamento na textura acrílica. Para maior resistência e durabilidade, recomenda-se aplicar mais duas demãos de tinta látex com diluição de 20 a 30% de água.
Na face externa das telhas de fibrocimento, deve-se aplicar uma demão de fundo à base de solventes, de alto poder de penetração e resistência à alcalinidade, diluído com até 100% de diluente, duas demãos de tinta látex acrílica, com diluição de 20 a 30% de água. Para a pintura da face interna, dispensa-se a aplicação de fundo à base de solventes. Deve-se observar, entretanto, que não é aconselhável pintar apenas a superfície interna da telha, pois não havendo impermeabilização na face externa, a umidade penetrará, prejudicando a pintura interna. Além disso, a pintura do lado externo aumentará a vida útil da telha. Nas superfícies de litocerâmica não esmaltada ou de tijolo à vista aplica-se massa de assentamento adequadamente frisada, não apresentando falhas, fissuras ou orifícios. Caso isto ocorra, os fabricantes recomendam que se efetuem reparos necessários com a mesma massa. Em seguida, deve-se aplicar uma demão de silicone, conforme orientação do fabricante, o que aumentará a impermeabilização da superfície, sem alterar o aspecto. Para proporcionar brilho e mais resistência a estas superfícies, deve-se consular os fabricantes de tintas sobre quais produtos aplicar.
Nas barras lisas de cimento (internas e externas) recomenda-se aplicar duas demãos de tinta látex acrílica, som diluição de 20 a 30% de água.
No concreto aparente deve-se eliminar os eventuais resíduos de substâncias desmoldantes utilizadas para retirar as formas para concreto, com o auxílio de detergentes ou removedores à base de aguarrás. Lixa-se a superfície e em seguida aplica-se silicone, de acordo com as instruções do fabricante, o que aumenta a impermeabilização sem alterar o aspecto. Para que a superfície se torne brilhante e mais resistente, recomenda-se também consultar os fabricantes de tintas sobre quais produtos aplicar. Quando se deseja pintar o concreto aparente, deve-se aplicar duas demãos de tinta acrílica. Eventuais reparos precisam se efetuados com nata de cimento ou massa acrílica. principalmente nos casos em que se deseja pintá-la.
Em pinturas sobre madeira devem ser observadas as orientações a respeito da preparação da superfície, normalmente aplicando-se duas demãos de esmalte sintético brilhante, acetinado ou fosco, lembrando-se de que este último é recomendado para superfícies internas. A primeira demão de esmalte pode ser diluída com até 15% de diluente e a segunda, com até 5%. É preciso lixar a superfície levemente entre as demãos.
No primeiro envernizamento da madeira normalmente são necessárias três demãos de verniz brilhante ou fosco, sendo que o fosco não é recomendado para superfícies externas. A diluição na primeira demão pode ser de até 20% de diluente, e a segunda e terceira com 5 e 10% respectivamente. Lixar levemente entre as demãos. O reenvernizamento é feito normalmente com duas demãos.
Nas superfícies de ferro, depois de preparadas adequadamente, são aplicadas duas demãos de esmalte sintético brilhante, acetinado ou fosco, sendo que este último não é recomendado para superfícies externas. A primeira demão deve ser diluída com até 15% de diluente e a segunda com até 5%. Também deve-se lixar levemente entre as demãos.
10.1.5 - CUIDADOS NA APLIAÇÃO DAS TINTAS
Nas superfícies de reboco ocorrem muitos problemas em função de umidade, cura insuficiente e alcalinidade. Estes "inimigos" da pintura podem acarretar inconvenientes conhecidos por eflorescência, desagregamento e saponificação.
A eflorescência manifesta-se pelo aparecimento de manchas esbranquiçadas na superfície pintada. A causa é a umidade, isto é, a tinta foi aplicada sobre o reboco ainda úmido. A secagem se dá pela eliminação da água sob forma de vapor, que arrasta o hidróxido de cálcio do interior para a superfície pintada, onde se deposita, causando a mancha.
Para se prevenir este inconveniente, antes de pintar o reboco, deve-se aguardar até que esteja completamente seco e curado, o que demora cerca de 30 dias. Para a correção, se houver apenas eflorescência, sem desagregamento, é suficiente aguardar a secagem total da parede, aplicar uma demão de fundo à base de solvente de grande resistência à alcalinidade e repintar.
Observa-se, porém, que a umidade sempre acarreta problemas na superfície, que não podem ser resolvidos apenas com a pintura. Primeiro é necessário eliminar a umidade, preparar a superfície e depois, aplicar a tinta. Aqui é tratado apenas, o caso de umidade proveniente de um reboco que ainda não estava seco, cuja solução é simplesmente aguardar a secagem total da parede. Entretanto é oportuno lembrar que as causas mais comuns de umidade são: vazamento em encanamentos, infiltração de águas pluviais e má impermeabilização de alicerce, sendo que esta última é a mais difícil de ser eliminada.
O desagregamento manifesta-se pela destruição ou descascamento da pintura, podendo envolver também o substrato, que se torna pulverulento. A causa deste problema reside no fato de a tinta ter sido aplicada antes que o reboco estivesse curado. A carbonatação (cura) do reboco se dá pelo processo de reação do gás carbônico com óxidos metálicos provenientes do reboco que contém cal. A prevenção, neste caso, é aguardar até que a parede esteja seca e curada, antes de iniciar a pintura. A correção pode ser feita da seguinte forma: raspam-se as partes de agregadas: corrigir as imperfeições profundas do reboco com argamassa; aguardar a secagem e a cura; aplicar uma demão de fundo à base de solventes; e repintar.
A saponificação manifesta-se pelo aparecimento de manchas na superfície pintada, provocando o descascamento ou a destruição da película de tinta P.V.A. ou pelo retardamento indefinido da secagem de tintas a base de resinas alquílicas. A superfície apresenta-se, neste caso, sempre pegajosa, podendo até ocorrer o escorrimento de óleo.
A causa da saponificação é a alcalinidade natural do reboco, pela utilização do cimento e cal. Esta alcalinidade, na presença de um certo grau de umidade, reage com a acidez característica de alguns tipos de resina, acarretando os defeitos já mencionados. Para a sua prevenção sempre que se pintar sobre reboco, é necessário que ele esteja seco e curado. Para se evitar possíveis defeitos decorrentes da alcalinidade, recomenda-se aplicar, previamente, uma demão de fundo à base de solvente, de grande resistência à alcalinidade.
A correção para tintas do tipo látex é a seguinte: raspar, escovar e lixar toda a superfície, eliminando as partes atacadas e as mal aderidas. Aplicar uma demão de fundo à base de solvente, de grande resistência à alcalinidade. Em seguida, repintar. A correção para tintas à base de resinas alquílicas é feita da seguinte forma: remover totalmente a tinta mediante lavagem com solvente, raspando e lixando, Como é difícil remover este tipo de tinta, em certos casos, costuma-se aquecer a pintura com um maçarico até que ela estoure, raspando-se em seguida, ainda quente (este procedimento é somente aconselhável quando executado por profissionais experientes). Aplicar duas demãos de fundo à base de solventes, de grande resistência à alcalinidade. E, em seguida, repintar.
O caso de manchas causadas por pingos de chuva ocorre quando se trata de pingos isolados em paredes recém pintadas. Decorrem do fato de estes pingos trazerem à superfície os materiais solúveis. Torna-se oportuno esclarecer que, se cair realmente uma chuva e não apenas pingos isolados, não haverá manchas. A correção é efetuada com a lavagem de toda a superfície pintada, com água, sem esfregar.
As trincas e fissuras, estreitas, rasas e sem continuidade ocorrem por duas razões: a primeira é o tempo insuficiente de hidratação da cal, antes da aplicação do reboco; a segunda é a camada excessivamente espessa de massa fina. A correção é feita desta forma: abrem-se as fissuras com estilete; corrige-se a superfície com massa acrílica (interna e externamente) ou massa corrida (internamente) lixa-se, elimina-se o pó e se repinta.
O descascamento ou não aderência é causado por pintura sobre caiação, sem prévia preparação da superfície. A cal não apresenta boa aderência sobre o substrato, constituindo camada pulverulenta.
Portanto qualquer tinta aplicada sobre caiação está sujeita a se descascar rapidamente. A causa do descascamento da tinta pode ocorrer também quando, na primeira pintura sobre o reboco, a primeira demão não foi suficientemente diluída e/ou havia excesso de poeira na superfície.
A prevenção, no primeiro caso, deve ser a não aplicação de tinta diretamente sobre a caiação. No segundo caso, a tinta deve ser diluída de acordo com as instruções do fabricante.
A primeira demão deve ser bem diluída para penetrar na superfície. A correção em ambos os casos deve ser efetuada com a raspagem ou escovagem da superfície até a total remoção das partes soltas ou mal aderidas.
Após estas providências, recomenda-se a correção das imperfeições com massa acrílica (externa e internamente) ou massa corrida (internamente). Aplica-se então uma demão de fundo à base de solvente para melhorar a firmeza da superfície. Em seguida repintar.
O aparecimento de bolhas seguida de descascamento em paredes externas geralmente é causado pelo uso indevido da massa corrida, seja pela correção da superfície ou para "pintura", sendo aplicada com rolo, bem diluída, como se fosse tinta. Cabe aqui observar que a massa corrida P.V.A. não é indicada para superfícies externas.
A correção, no primeiro caso, deve ser feita pela remoção da massa corrida e a aplicação de uma demão de fundo à base de solventes. Em seguida, corrigir as imperfeições com massa acrílica e repintar. No segundo caso, deve-se raspar ou escovar a superfície até a remoção total da "pintura". Depois aplica-se uma demão de fundo à base de solventes, corrigem-se as imperfeições com massa acrílica e repinta-se.
Os mesmos problemas. isto é, bolhas e descascamentos, podem ocorrer na primeira pintura em paredes internas, sobre massa corrida. Isto acontece quando, após o lixamento da massa, a poeira não foi devidamente eliminada da superfície e/ou a tinta não foi adequadamente diluída e/ou a massa corrida utilizada era muito fraca (com pouca resina).
Outra hipótese da ocorrência dos mesmos problemas constata-se na repintura, quando a nova tinta aplicada umedece a película da tinta anterior, provocando a sua dilatação.
A correção, em todos os casos, deve ser feita com a remoção (raspagem) das partes onde ocorreu o fenômeno. Isto feito, recomenda-se retocar a superfície com massa corrida, aplicar uma demão de fundo à base de solventes (1) e repintar.
A correção de manchas amareladas provocadas por gordura, óleo ou nicotina é feita com a lavagem da superfície por meio de solução de água com 10% de amoníaco ou detergentes que contém amônia. Este procedimento, quando desejável, pode ser substituído pela aplicação de fundo à base de solvente. Se esta aplicação resultar uma película brilhante, quebra-se o brilho lixando suavemente. Em seguida, repinta-se.
Os problemas mais comuns em superfícies de madeira pintadas com tinta de sistemas alquímicos são o retardamento da secagem, manchas, má aderência e trincas.
O retardamento indefinido da secagem e/ou manchas são causados pela migração de ácidos orgânicos e/ou resinas naturais características de determinados tipos de madeira. A primeira precaução é evitar tais madeira. Estes casos são raros e de difícil solução. Recomenda-se consultar os fabricantes de tintas sobre cada caso específico.
A repintura sobre madeira impregnada com resíduos de soda cáustica (ou similares) utilizada na remoção da pintura anterior é uma segunda causa do problema que pode ser prevenido se, antes da repintura, forem eliminados estes resíduos a partir da lavagem de toda a superfície, com água em abundância. Aguardar a secagem total e repintar.
A correção é feita com a remoção total da pintura. Em seguida, lava-se a superfície com água em abundância para que sejam eliminados os resíduos de soda cáustica. Aguarda-se a secagem total da superfície e torna-se a pintar.
Trincas e má aderência geralmente ocorrem quando se utiliza massa corrida P.V.A. para corrigir imperfeições de madeira, principalmente em portas. Não se deve utilizar massa corrida P.V.A. para este fim. O certo é o emprego de massa a óleo.
A correção, neste caso, é feita com a eliminação da massa corrida, aplicação de uma demão de fundo branco fosco bem diluído, correção das imperfeições com massa a óleo, lixamento e eliminação de pó para, em seguida, repintar.
Tabela 10.1 - Defeitos observados, agentes causadores e possíveis mecanismos de degradação
| DEFEITOS | AGENTES | POSSÍVEIS MECANISMOS DE DEGRADAÇÃO |
| Perda de aderência, empola mento, descascame nto | água | - pode ocorrer pela presença de água sob a película de pintura. A baixa permeabilidade ao vapor de água pode permitir o acúmulo de umidade sob a película, que provoca esforços originando os citados problemas. |
| Perda de aderência, empola mento, descascame nto. | sais álcais | - pode estar associado ao ataque de álcais ou ao surgimento de eflorêscencia pelo carreamento de sais solúveis em água através da parede, que podem surgir sob e película ou sobre ela. |
| Fendilhamento e Fissuras | intemperismo | - podem ocorrer pela perda da capacidade de flexibilidade da película após a ação da radiação solar particularmente sua parcela de radiação ultravioleta. |
| aplicação | - podem ocorrer pela preparação inadequada da base. | |
| Alteração no aspecto | partículas em suspensão no ar | - a retenção de poeira pela pintura e a conseqüente lavagem pela chuva provoca o surgimento de regiões manchadas. |
| intemperismo | - a alteração na cor e brilho da pintura é o resultado da ação de alguns agentes agressivos tais como radiação ultravioleta, água, sais, etc., de gradando o pigmento e veículo da pintura. | |
| Manchas escuras na superfície | fungos | - as condições ambientais, umidade e temperatura podem favorecer o crescimento de fungos. Normalmente ocorrem tanto no interior quanto no exterior da edificação nas faces com má ventilação e sem incidência de radiação solar direta. |
| Umidade | água | - preparação inadequada da base; - aplicação inadequada da pintura; - produto inadequado ao fim a que destina. |
10.1.6 - CONDIÇÕES AMBIENTAIS DURANTE A APLICAÇÃO
Os serviços de pintura devem sempre ser realizados em ambiente com temperaturas variando entre 10ºC e 35ºC, a menos que o fabricante estabeleça outro intervalo de variação para um tipo específico de tinta. As pinturas executadas em superfícies exteriores não devem ser efetuadas quando ocorrer precipitação pluvial, condensação de vapor d'água na superfície da base ou ventos fortes, com o transporte de partículas em suspensão no ar.
As pinturas de interiores podem ser efetuadas mesmo quando as condições climáticas impeçam as do exterior, desde que seja obedecida a variações de temperatura, e que não ocorra condensação de vapor de água na base a ser pintada. De preferência, a pintura em superfícies interiores deve ser realizada em condições climáticas que permitam que portas e janelas permaneçam abertas.
Cada demão de tinta subseqüente, somente deverá ser aplicada quando a anterior estiver adequadamente seca, de modo tal que o contato com a película, anteriormente aplicada, não provoque na mesma enrugamentos, descoloramentos, etc... Também devem ser evitados escorrimentos ou salpicos de tinta nas superfícies não destinadas à pintura - vidros, pisos, alvenarias e concretos aparentes, etc...Os salpicos que não puderem ser evitados precisam ser removidos enquanto a tinta ainda estiver fresca, empregando-se removedor adequado.
A última demão de tinta deve proporcionar a superfície uma película de pintura uniforme, sem escorrimentos, falhas ou imperfeições. A pintura recém-executada deve ser protegida contra a incidência de poeira ou de água, ou mesmo contra contatos acidentais durante o período de secagem.
10.1.7 - MATERIAL DE TRABALHO
Podemos utilizar vários tipos de materiais e equipamentos para se efetuar uma boa pintura. Segue abaixo algumas sugestões:
• de madeira:
Figura 10.1 - Materiais utilizados no preparo e aplicação das pinturas em madeira
• de metais:
Figura 10.2 - Materiais utilizados no preparo e aplicação das pinturas em metais
• parede:Figura 10.3 - Materiais utilizados no preparo e aplicação das pinturas em paredes
NOTA
Pincel ou Trincha?
São praticamente a mesma coisa. Os pincéis tem sempre o corpo e o cabo redondos e às cerdas é dado um formato de acordo com a finalidade de uso. São mais comumente usados para trabalhos artesanais, etc...
As trinchas tem sempre o corpo e o cabo de forma retangular e achatada. São mais usados para pinturas em paredes, madeira ou metal.
Rolos?
São indicados para pintura de grandes superfícies. Proporcionam grande rendimento, sem muito esforço físico. Mais comumente, os rolos são utilizados como segue:
- rolos de lã: para aplicação de látex, P.V.A. ou acrílico, em alvenaria.
- rolos de espuma lisa: para aplicação de esmalte, verniz ou óleo em madeira ou alvenaria interna.
- rolos de espuma texturizada: aplicação de látex ou tinta texturada em alvenarias.
10.1.8 - RENDIMENTOS
Tabela 10.2 - Relacionamos abaixo, alguns rendimentos mais comuns em tintas de boa qualidade:
| TINTAS | RENDIMENTO Galão ( 3,6 l ) / DEMÃO |
| Látex P.V.A. | 30 m² |
| Látex Acrílico | 30 m² |
| Massa corrida P.V.A | 20 m² |
| Massa corrida acrílica | 20 m² |
| Tinta à óleo | 35 m² |
| Esmalte sintético | 40 m² |
| Grafite | 40 m² |
| Zarcão | 30 m² |
| Massa à óleo | 20 m² |
| Verniz | 35 m² |
| Epoxy | 35 m² |
| Silicone | 30 m² |
10.1.9 - RECOMENDAÇÕES GERAIS
a - Antes de pintar uma superfície, certifica-se de que a mesma esteja adequadamente preparada e que a tinta a ser aplicada seja compatível com a superfície;
b - Não pintar o reboco antes que o mesmo esteja completamente seco e curado; c - Não aplicar massa corrida P.V.A. em superfícies externas; d - Não aplicar tinta diretamente sobre paredes caiadas;
e - Não utilizar produtos látex (P.V.A.) e acrílico) sobre superfícies de madeira ou ferro (exemplos: massa corrida para corrigir imperfeições de portas antes de pintar; primeira demão de látex nas portas antes de aplicar o esmalte);
f - Não utilizar verniz fosco ou esmalte fosco em superfícies externas. O verniz ou esmalte brilhantes são mais resistentes;
g- Não utilizar massa corrida diluída com água como se fosse uma tinta de fundo.
10.2 - VIDRO
O vidro é uma substância inorgânica e amorfa, obtida através do resfriamento de uma massa em fusão. Suas principais qualidades são a transparência e a dureza.
O vidro não é poroso nem absorvente, é ótimo isolador, possui baixo índice de dilatação e condutividade térmica, suporta pressões de 5.800 a 10.800 kg por cm².
O vidro é composto por: sílica, soda, cálcio, magnésio, alumina, cloreto de sódio, nitrato de sódio, óxido, arsênico, corantes (óxido de cobalto-azul, óxido de ferro-verde, óxido de selênio-cinza) e sucata de vidro.
Podemos utilizar o vidro da seguinte maneira:
• vidro oco: para garrafas, frascos, etc....
• vidro plano: janelas, portas, etc....
• vidros finos: lâmpada, aparelhos eletrônicos.
• vidros curvos: usados na ind. automobilística.
O vidro em sua fabricação atinge uma temperatura de 800 a 1000°C.
O vidro colorido, além do aspecto estético, os vidros podem reduzir o consumo energético de um edifício ou residência.
Tabela 10.3 - Classificação dos vidros (ABNT)
| TIPO | ACABAMENTO DE SUPERFÍCIE | ||
| Vidro recozido | Vidro liso | ||
| Vidro segurança temperado | Vidro float | ||
| Vidro segurança laminado | Vidro impresso | ||
| Vidro segurança aramado | Vidro fosco | ||
| Vidro termo-absorvente | Vidro espelhado | ||
| Vidro termo-refletor | Vidro gravado | ||
| Vidro composto | Vidro esmaltad | ||
| TRANSPARÊNCIA | COLORAÇÃO | COLOCAÇÃO | |
| Vidro transparente | Vidro incolor | caixilhos | |
| Vidro translúcido | Vidro colorido | autoportantes | |
| Vidro opaco | mista. | ||
Na colocação em caixilhos utilizamos massa de vidraceiro para a sua fixação (Figura 10.4).
Figura 10.4 - Exemplo de fixação dos vidros nos caixilhos
10.2.1- VIDRO TEMPERADO
Vidro temperado, significa ter um vidro passado por um processo especial de aquecimento (em torno de 650°C.), seguindo de um rápido resfriamento, que o transforma num material extremamente forte, resistente aos choques mecânicos e térmicos, conservando as características de transmissão luminosa, de aparência e de composição química.O vidro temperado tem uma resistência mecânica cerca de quatro vezes superior à do vidro comum. A têmpera gera no interior da chapa um conjunto de esforços de tração e compressão em equilíbrio, que reforçam consideravelmente a resistência mecânica, além de conferir-lhe as características de segurança. A segurança reside no fato de, rompendo-se, apresentar fragmentos de pequenas dimensões e com arestas menos cortantes, com menor risco de acidentes graves.
IMPORTANTE: Depois de acabado, o vidro temperado, não permite novos processamentos, como cortes, furos e recortes. Podem ser feitas opacações leves e desenhos, mas isto reduz sensivelmente a resistência do material.
- PROPRIEDADES:
• Tensão de ruptura: vidro comum 400 kgf/cm²
vidro temperado 1470 kgf/cm²
Figura 10.5 - Cargas nos vidros
Tabela 10.4 - Resistência ao impacto:| Vidro espessura de 6,00 mm | Bolas de aço de 225g | Bolas de aço de 900g | Saco de areia de 500g |
| vidro comum | 0,53 m | 0,2 m | 0,81 m |
| vidro temperado | 3,00 m | 1,1 m | 2,43 m |
Figura 10.6 - Impacto nos vidros
• Resistência à flambagem: uma peça de 6mm de espessura de 100 x 35 cm suporta uma carga axial de 1000 kg.Figura 10.7 - Flambagem
• Módulo de elasticidade : 700.00 kgf/cm²• Peso específico : 2,5 kg/m²/mm
• Resistência ao choque térmico : resiste a uma diferença de temperatura entre suas faces de até 220°C, enquanto o vidro comum rompe-se a uma diferença de 60°C.
DADOS TÉCNICOS:
Tabela 10.5 - Dimensões máximas de fabricação:
| tipo de vidro | espessura mm | dimensões máximas (cm) | |
| caixilhos e instalações | portas | ||
| temperado | 6 | 110 x 200 | - |
| temperado | 8 | 150 x 260 | 100 x 220 |
| temperado | 10 | 240 x 320 | 100 x 220 |
| diáfano | 8 | 110 x 220 | 100 x 220 |
| diáfano | 10 | 110 x 250 | 100 x 220 |
- relações largura/comprimento :
6mm = 1/4 8mm = 1/8 10mm = 1/10
- tolerâncias dimensionais:
Em todos os casos, a tolerância é de ± 3 m/m para largura e comprimento.
- furos:
O vidro temperado só pode ser furado antes da têmpera Tolerâncias para os diâmetros e localizações dos furos:
a) diâmetro mínimo = espessura da chapa
b) diâmetro máximo = 1/3 da largura da chapa
c) posição dos furos: a distância mínima entre borda do vidro e a borda do furo deve ser 3 vezes a espessura da chapa.
Figura 10.8 - Posição dos furos em vidros temperados
TIPOS DE VIDROS:
O vidro temperado é oferecido nos seguintes tipos, cores e espessuras: Vidro polido (cristal) - incolor 0,8 e 10 mm
verde 6,8 e 10 mm
Vidro diáfano - incolor 8 e 10 mm
cinza 8 e10 mm
Vidro liso - cinza 6,8 e 10 mm
bronzes 6,8 e 10 mm
TÉCNICAS DE CONSTRUÇÃO CIVIL E CONSTRUÇÃO DE EDIFÍCIOS
11 - DETALHES DE EXECUÇÃO EM OBRAS COM CONCRETO ARMADO
APÓS ESTUDAR ESTE CAPÍTULO; VOCÊ DEVERÁ SER CAPAZ DE:
• Escolher os tipos de materiais ideais para execução de obras utilizando concreto armado;
• Especificar corretamente as fôrmas o ecoramento e o contraventamento;
• Especificar corretamente as armaduras bem como a sua posição; • Especificar corretamente a concretagem e o adensamento; • Especificar corretamente a cura e a desforma.
Sabemos, que apesar da grande evolução na tecnologia do concreto, nas obras de pequeno e médio porte não se consegue executar um concreto com todas as suas
características, de resistência à compressão, pega, trabalhabilidade, perda ao fogo etc..., o que fará com que as construções sejam prejudicadas quanto a durabilidade, estabilidade, funcionalidade das estruturas em concreto armado, devido sempre a problemas referentes a custos, e também por falta de tecnologia por parte de pequenos construtores.
Seriam óbvias as vantagens em economia propiciadas pela utilização de concreto de maior resistência, mas é importante frisar que grandes benefícios poderiam também ser obtidos no que concerne à durabilidade das estruturas, pois concretos mais fortes tem também, em geral, maior resistência à abrasão e baixa permeabilidade.
No que se refere aos constituintes da mistura os pontos-chaves são o fator águacimento, consumo de cimento e resistência. Atenção também deve ser dada às especificações sobre agregados, cimentos, aditivos e cuidado especial é recomendável quanto aos teores de cloretos e sulfatos no concreto.
Vamos abordar de modo prático alguns detalhes para uma boa execução de obras em concreto armado, ficando aqui em ressalva que qualquer problema em obra deverá ser bem estudado para se fornecer uma solução adequada, pois cada uma tem seus aspectos exclusivos e particulares.
11.1 - MATERIAIS EMPREGADOS EM CONCRETO ARMADO
11.1.1 Cimento
O projeto deverá estabelecer os tipos de cimento adequados, técnicamente e economicamente, a cada tipo de concreto, estrutura, método construtivo, ou mesmo, em relação aos materiais inertes disponíveis.Exemplo de alguns tipos de cimento passíveis de emprego em aplicações específicas:
cimento Portland comum:
- concreto armado em ambientes não agressivos
- lançamento de pequenos volumes ou grandes volumes
- desde que empregados, na mistura, outros aglomerantes ativos (tais como materiais pozolânicos ou escória de alto forno) para redução do calor de hidratação. - Concreto protendido ou pré-moldado
- Não recomendado para emprego em ambientes agressivos;
- cimento Portland de alta reistência inicial - pré-moldados;
- para descimbramento a curto prazo;
- não recomendado para lançamento de grandes volumes;
- cimento de moderada e alta resistência a sulfatos.
- estruturas em contato com sulfatos
- estruturas em meios ligeiramente ácidos;
- concreto massa;
- pouco recomendável o emprego em estruturas onde sejam necessárias a desforma e o descimbramento rápido
- cimento Portland de alto forno
- recomendável para estruturas em meios ácidos ou sujeitas a ataque de sulafatos e/ou ácidos; - aplicável a concreto massa;
- possível o emprego com agregados álcali-reativos
- cimento Portland pozolânico.
- recomendável para concreto massa e para uso com agregados reativos com álcalis; - aplicável a estruturas sujeitas a ataques ácidos fracos ou de sulfatos;
- cimento aluminoso.
- para refratários; em ambientes ligeiramente ácido.
O cimento, ao sair da fábrica acondicionado em sacos de várias folhas de papel impermeável, apresenta-se finamente pulverizado e praticamente seco, assim devendo ser conservado até o momento da sua utilização.
Quando o intervalo de tempo decorrido entre a fabricação e a utilização não é demasiado grande, a proteção oferecida e em geral, suficiente.
Caso contrário, precauções suplementares devem ser tomadas para que a integridade dos característicos iniciais do aglomerante seja preservada.
A principal causa da deterioração do cimento é a umidade que, por ele absorvida, hidrata-o pouco a pouco, reduzindo-lhe sensivelmente as suas características de aglomerante.
O cimento hidratado é facilmente reconhecível. Ao esfregá-lo entre os dedos sente-se que não está finamente pulverizado, constata-se mesmo, freqüentemente, a presença de torrões e pedras que caracterizam fases mais adiantadas de hidratação.
RECOMENDAÇÕES:
O cimento sendo fornecido em sacos, deve-se verificar sua integridade, não aceitando os que estiverem rasgados ou úmidos. Os sacos que contém cimento parcialmente hidratados, isto é, com formação de grumos que não são total e facilmente desfeitos com leve pressão dos dedos, não devem ser aceitos para utilização em concreto estrutural.
Para armazenar cimento é preciso, em primeiro lugar, preservá-lo, tanto quanto possível, de ambientes úmidos e em segundo, não ser estocado em pilhas de alturas excessivas, pois o cimento ainda é possível de hidratar-se (Figura 11.1). É que ele nunca se apresenta completamente seco e a pressão elevada a que ficam sujeitos os sacos das camadas inferiores reduz os vazios, forçando um contato mais intenso entre as partículas do aglomerante e a umidade existente.
Portanto para evitar essas duas principais causas de deterioração do cimento é aconselhável:
1º - As pilhas não excederem de mais de 10 sacos, salvo se o tempo de armazenamento for no máximo 15 dias, caso em que pode atingir 15 sacos.
2º - As pilhas devem ser feitas a 30 cm do piso sobre estrado de madeira e a 30 cm das paredes e 50 cm do teto (Figura 11.1).
Figura 11.1 - Local para guarda de materiais
Os lotes recebidos em épocas diferentes e diversas não podem ser misturados, mas devem ser colocados separadamente de maneira a facilitar sua inspeção e seu emprego na ordem cronológica de recebimento. Deve-se tomar cuidados especiais no armazenamento utilizando cimento de marcas, tipos e classes diferentes. O tempo de estocagem máxima de cimento deve ficar em torno de 30 dias.A capacidade total armazenada deve ser suficiente para garantir as concretagens em um período de produção máxima, sem reabastecimento.
11.1.2 Agregados miúdo e graúdo
Devemos tomar o cuidado para que em nossas obras não se receba agregados com grande variabilidade, algumas vezes por motivo de abastecimento ou econômico, daqueles inicialmente escolhidos.Esta variabilidade prejudica a homogeneidade e características mecânicas do concreto.
Se recebemos, com granulometria mais fina que o material usado na dosagem inicial, necessitaremos uma maior quantidade de água para mantermos a mesma trabalhabilidade e, consequentemente, haverá uma redução na resistência mecânica. Se ocorrer o inverso haverá um excesso de água para a mesma trabalhabilidade, aumentando a resistência pela diminuição do fator água/cimento, o qual será desnecessário, pois torna-se antieconômico, além de provocar uma redução de finos, que prejudicará sua coesão e capacidade de reter água em seu interior, provocando exudação do mesmo.
RECOMENDAÇÕES:
Deve-se ao chegar os agregados, verificar a procedência, a quantidade, e o local de armazenamento e devem estar praticamente isentos de materiais orgânicos como humus, etc.... e também, siltes, carvão.
Quando da aprovação de jazida para fornecer agregados para concreto devemos ter conhecimento de resultados dos seguintes ensaios e/ou análises:
• reatividade aos álcalis do cimento (álcali-sílica, álcali-silicato, álcali-carbonato);
• estabilidade do material frente a variações de temperatura e umidade;
• análise petrográfica e mineralógica;
• presença de impurezas ou materiais deletéricos;
• resitência à abrasão;
• absorsão do material
No entanto, no caso de obras de pequeno porte, é praticamente inviável a execução de tais ensaios e análises. Neste caso, deve-se optar pelo uso de material já consagrado no local ou pela adoção de medidas preventivas, em casos específicos (uso de material pozolânicos, por exemplo).
Para evitarmos a variabilidade dos agregados devemos esclarecer junto aos fornecedores a qualidade desejada e solicitar rigoroso cumprimento no fornecimento.
Para o armazenamento dos agregados poderemos fazê-lo em baias com tapumes laterais de madeira (Figura11.2) ou em pilhas separadas, evitando a mistura de agregados de diferentes dimensões, deveremos fazer uma inclinação no solo, para que a água escoa no sentido inverso da retirada dos agregados, e colocar uma camada com aproximadamente 10 cm de brita, 1 e 2 para possibilitar a drenagem do excesso de água.
Recomenda-se que as alturas máximas de armazenamento sejam de 1,50m, diminuindose o gradiente de umidade, principalmente nas areias e pedriscos, evitando-se constantes correções na quantidade de água lançado ao concreto.
Estando a areia com elevada saturação, deve-se ter o cuidado de verificar no lançamento do material na betoneira, se parte da mesma não ficou retida nas caixas ou latas, pedindo que seja bem batida para a sua total liberação.
Figura 11.2 - Baias de madeira para separar os agregados
11.1.3 - Água
A resistência mecânica do concreto poderá ser reduzida, se a água utilizada no amassamento conter substâncias nocivas em quantidades prejudiciais.
Portanto, a água destinada ao amassamento deverá ser as águas potáveis.
Do ponto de vista da durabilidade dos concretos, o emprego de águas não potáveis no amassamento do concreto pode criar problemas a curto ou longo prazo.
Se, para o concreto simples, o uso de águas contendo impurezas, dentro de certos limites, pode não trazer conseqüências danosas, o mesmo não ocorre com o concreto armado, onde a existência de cloretos pode ocasionar corrosão das armaduras, além de manchas e eflorescências superficiais.
11.1.4 - Armaduras
Os problemas existentes com as barras de aço é a possibilidade de corrosão em maior ou menor grau de intensidade, em função de meio ambiente existente na região da obra, o que provoca a diminuição da aderência ao concreto armado e diminuição de seção das barras.No primeiro caso, esta diminuição é provocada pela formação de uma película não aderente às barras de aço, impedindo o contato com o concreto. No segundo caso de diminuição de seção, o problema é de ordem estrutural, devendo ser criteriosamente avaliada a perda de seção da armadura.
RECOMENDAÇÕES:
Meios fortemente agressivos (regiões marítimas, ou altamente poluídas):
- Armazenar o menor tempo possível;
- Receber na obra as barras de aço já cortadas e dobradas, em pequenas quantidades;
- Armazenar as barras em galpões fechados e cobertos com lona plástica;
- Receber as armaduras já montadas;
- Pintar as barras com pasta de cimento de baixa consistência (avaliar a eficiência periodicamente).
Meios mediamente agressivos :
- Armazenar as barras sobre travessas de madeira (Figura 11.3) de 30 cm de espessura, apoiadas em solo limpo de vegetação e protegido de pedra britada.
- Cobrir com lonas plásticas;
- Pintar as barras com pasta de cimento de baixa consistência.(avaliar a eficiência periodicamente);
Obs.: As barras que foram pintadas com camadas de cimento, para sua utilização na estrutura deverão ser removidas, a qual pode ser feito manualmente através de impacto de pedaço de barra de aço estriada e ajudar a limpeza através de fricção das mesmas.
Meios pouco agressivos:
- Armazenar as barras em travessas de madeira (Figura 11.3) de 20 cm de espessura, apoiadas em solo limpo de vegetação e protegido por camada de brita.
Para a limpeza das barras com corrosão devemos fazer em ordem de eficiência:
- jateamento de areia;
- limpeza manual com escova de aço; - limpeza manual com saco de estopa úmido.
Figura 11.3 - Armazenagem das barras de aço sobre travessas
Tipos de aço:
Os aços estruturais de fabricação nacional em uso no Brasil podem ser classificados em três grupos:
• Aços de dureza natural laminados a quente: utilizados a muito tempo no concreto armado. Nos dias de hoje possui saliências para aumentar a aderência do concreto.
• Aços encruados a frio: obtidos por tratamento a frio trabalho mecânico feito abaixo da zona crítica, os grãos permanecem deformados aumentando a resistência.
• Aços para concreto protendido: aços duros e pertencem ao grupo de aços usados para concreto protendido. Pode ser encontrado em fios isolados ou formando uma cordoalha.
No Brasil a indicação do aço é feita pelas letras CA (concreto armado) seguida de um número que caracteriza a tensão de escoamento em kg/mm². Segue ainda uma letra maiúscula A ou B, que indica se o aço é de dureza natural ou encruado a frio.
Os mais utilizados são: CA 25
CA 50 A, CA 50 B
CA 60 A, CA 60 B
OBS.: O comprimento usual das barras é de 11, com tolerância de mais ou menos 9%. E sua unidade é em milímetros (Tabela 11.1).
Tabela 11.1 - Bitola dos aços em "mm" e respectivos pesos por metro
| Bitolas em "mm" | Kg/m + 10% |
| 5,0 | 0,154 |
| 6,3 | 0,276 |
| 8,0 | 0,429 |
| 10,0 | 0,616 |
| 12,5 | 1,089 |
| 16,0 | 1,705 |
| 20,0 | 2,464 |
| 25,0 | 4,378 |
11.2 – SISTEMA DE FÔRMAS E ESCORAMENTOS CONVENCIONAIS
Para se ter a garantia de que uma estrutura ou qualquer peça de concreto armado seja executado fielmente ao projeto e tenha a forma correta, depende da exatidão e rigidez das fôrmas e de seus escoramentos.
Geralmente as fôrmas tem a sua execução atribuída aos mestres de obra ou encarregados de carpintaria, estes procedimentos resultam em consumo intenso de materiais e mão-de-obra, fazendo um serviço empírico, as fôrmas podem ficar superdimensionadas ou subdimensionadas. Hoje existe um grande elenco de alternativas para confecção de fôrmas, estudadas e projetadas, para todos os tipos de obras.
As fôrmas podem variar cerca de 40% do custo total das estruturas de concreto armado. Considerando que a estrutura representa em média 20% do custo total de um edifício, concluímos que racionalizar ou otimizar a forma corresponde a 8% do custo de construção.
Nessa análise, estamos considerando os custos diretos, existem os chamados indiretos, que podem alcançar níveis representativos. No ciclo de execução da estrutura (forma, armação e concreto), o item forma é geralmente, o caminho crítico, responsável por cerca de 50% do prazo de execução do empreendimento. Portanto, o seu ritmo estabelece o ritmo das demais atividades e, eventuais atrasos. A forma é reponsável por 60% das horas-homem gastas para execução da estrutura os outros 40% para atividade de armação e concretagem.
Portanto devemos satisfazer alguns requisitos para a sua perfeita execução, que são:
a) Devem ser executadas rigorosamente de acordo com as dimensões indicadas no projeto, e ter a resistência necessária.
b) Devem ser praticamente estanques.
c) Devem ser projetadas para serem utilizadas o maior número possível de vezes.
Na concretagem devemos tomar algumas precauções, em relação as fôrmas, para que a estrutura não seja prejudicada:
a) Antes de concretar, as fôrmas devem ser limpas.
b) Antes de concretar, as fôrmas devem ser molhadas até a saturação.
c) Não colocar a agulha do vibrador entre a fôrma e as armaduras, isso pode danificar os painéis.
11.2.1 - Materiais e ferramentas
De acordo com o acabamento superficial das fôrmas pode-se definir o tipo de material a ser empregado na sua execução.
- Tábuas de madeira serrada
- Chapa de madeira compensada resinada
- Chapa de madeira compensada plastificada, além dos pregos, barras de ferro redondo, para serem utilizados sob forma de tirantes. Existem também, diferentes tipos de fôrmas metálicas assim como pontaletes tubulares.
a) Tábuas de madeira serrada:
Devem ter as seguintes qualidades:
- Elevado módulo de elasticidade e resistência razoável
- Não ser excessivamente dura
- Baixo custo
As tábuas mais utilizadas são o pinho de 2º e 3º, o cedrilho, timburi. e similares; sendo as bitolas comerciais mais comuns de: 2,5 x 30,0 cm ( 1" x 12 "), 2,5 x 25,0 cm ( 1"x 10 "), 2,5 x 20,0 cm ( 1" x 8" ).
As tábuas podem ser reduzidas a qualquer largura, desdobradas em sarrafos, dos quais os mais comuns são os de 2,5 x 15,0 cm; 2,5 x 10,0 cm; 2,5 x 7,0 cm; 2,5 x 5,00 cm.
b) Chapas de madeira compensada:
As chapas de madeira compensada, mais usadas para fôrma, tem dimensões de 2,20 x 1,10 m e espessura que variam de 6,0; 10,0; 12,0mm.
As chapas tem acabamento resinado, para utilização em estruturas de concreto armado revestida, e acabamento plastificado, para utilização em estruturas de concreto armado aparente.
As chapas compensadas são compostas por diversas lâminas coladas ou por cola "branca" PVA, ou cola fenólica. As chapas coladas com cola fenólica são mais resistentes ao descolamento das lâminas quando submetidas a umidade.
c) Escoramentos :
Podemos utilizar para escoramentos pontaletes de eucaliptos ou peças de peroba como os cibros 5,0 x 6,0 cm; 5,0 x 7,0 cm; 8,0 x 8,0 cm; as vigas 6,0 x 12,0cm e 6,0 x 16,0 cm, além dos escoramentos tubulares metálicos.
Quando os pontaletes forem apoiar no terreno, para evitar recalques, devemos colocar tábuas ou pranchas que deverão ser maiores quando mais fraco for os terrenos, de modo que as cargas dos pontaletes seja distribuída numa área maior.
Prever cunhas duplas nos pés de todos os pontaletes para possibilitar uma desforma mais fácil, e nos vãos intermediários dos escoramentos, devem com certeza serem colocados, de modo a permitir a colocação das contra flechas.
Nos pontaletes com mais de 3,00m, prever travamentos horizontais e contravontamentos para evitar flambagem.
Cuidado com emendas nos pontaletes !!!
Cada pontalete de madeira só poderá ter uma emenda, a qual não pode ser feita no terço médio do seu comprimento. Nas emendas, os topos das duas peças devem ser planos e normais ao eixo comum. Devem, nestes casos, ser pregados cobre juntas de sarrafos em toda a volta das emendas.
d) Pregos:
Os pregos obedecem as normas EB-73 e PB-58/ ABNT. A designação dos pregos com cabeça será por dois nºs. a x b .(Tabela 11.2)
a = refere ao diâmetro, é o nº do prego na Fiera Paris
ex: 15 = 2,4 mm 18 = 3,4 mm b = representa o comprimento medido em "linhas" - 2,3 mm, unidade correspondente a 1/12 da polegada antiga.
Tabela 11.2 - Dimensões dos pregos em "mm"
| NÚMERO | DIMENSÕES EM mm |
| 5 X 5 | 1,0 X 11,50 |
| 15 X 15 | 2,4 X 33,90 |
| 15 X 18 | 2,4 X 40,68 |
| 15 X 21 | 2,4 X 47,46 |
| 16 X 18 | 2,7 X 40,68 |
| 16 X 21 | 2,7 X 47,46 |
| 16 X 24 | 2,7 X 54,24 |
| 17 X 21 | 3,0 X 47,46 |
| 17 X 24 | 3,0 X 54,24 |
| 17 X 27 | 3,0 X 61,02 |
| 17 X 30 | 3,0 X 67,80 |
| 18 X 24 | 3,4 X 54,24 |
| 18 X 27 | 3,4 X 61,02 |
| 18 X 30 | 3,4 X 67,80 |
| 18 X 36 | 3,4 X 81,14 |
| 19 X 27 | 3,9 X 61,02 |
| 19 X 33 | 3,9 X 74,53 |
| 19 X 39 | 3,9 X 88,14 |
- Fôrmas de tábuas: 18 x 27
19 x36
- Fôrmas de chapas: 15 x 15
18 x 27
- Escoramentos: 19 x 36
18 x 27
O diâmetro deve ser escolhido entre 1/8 e 1/10 da espessura da peça de menor espessura.
Devemos deixar os materiais em locais cobertos , protegidos do sol e da chuva. No manuseio das chapas compensadas deve-se tomar o cuidado para não danificar os bordos. Para a execução das fôrmas além das ferramentas de uso do carpinteiro, como o martelo; serrote; lima; etc., se utiliza uma mesa de serra circular e uma bancada com gabarito para a montagem dos painéis (Figura 11.4).
Figura 11.4 - Bancada com gabarito para montagem dos painéis das fôrmas
A mesa de serra deve ter uma altura e todos os sistemas de proteção que permita proceder ao corte de uma seção de uma só vez e as dimensões da mesa de serra devem ser coerentes com as dimensões das peças a serrar, e ainda é de grande importância adotar um disco de serra com dentes compatíveis com o corte a ser feito (Figura 11.5).Figura 11.5 - Tipos de disco para corte de tábuas e chapas compensadas
11.2.2 - Peças utilizadas na execução das fôrmas:São dados diversos nomes às peças que compõem as fôrmas e seus escoramentos as mais comuns são:
1 - PAINÉIS: Superfícies planas, formadas por tábuas ou chapas, etc. Os painéis formam os pisos das lajes e as faces das vigas, pilares, paredes.
2 - TRAVESSAS: Peças de ligações das tábuas ou chapas, dos painéis de vigas, pilares, paredes, geralmente feitas de sarrafos ou caibros.
3 - TRAVESSÕES: Peças de suporte empregados somente nos escoramentos dos painéis de lajes, geralmente feitas de sarrafos ou caibros.
4 - GUIAS: Peças de suporte dos travessões. Geralmente feitas de caibros ou tábuas trabalhando a cutelo ( espelho ), no caso de utilizar tábuas, os travessões são suprimidos.
5 - FACES: Painéis que formam os lados das fôrmas das vigas.
6 - FUNDO DAS VIGAS: Painéis que forma a parte inferior das vigas.
7 - TRAVESSAS DE APOIO: Peças fixadas sobre as travessas verticais das faces da viga, destinadas ao apoio dos painéis de lajes e das peças de suporte dos painéis de laje (travessões e guias).
8 - CANTONEIRAS: Peças triangulares pregadas nos ângulos internos das fôrmas.
9 - GRAVATAS: Peças que ligam os painéis das formas dos pilares, colunas e vigas.
10 - MONTANTES: Peças destinadas a reforçar as gravatas dos pilares.
11- PÉS- DIREITOS: Suportes das fôrmas das lajes. Geralmente feitos a de caibros ou varas de eucaliptos.
12 - PONTALETES: Suportes das fôrmas das vigas. Geralmente feitos de caibros ou varas de eucaliptos.
13 - ESCORAS (mãos - francesas): Peças inclinadas, trabalhando a compressão.
14 - CHAPUZES: Pequenas peças feitas de sarrafos, geralmente empregadas como suporte e reforço de pregação das peças de escoramento, ou como apoio extremo das escoras.
15 - TALAS: Peças idênticas aos chapuzez, destinadas à ligação e a emenda das peças de escoramento.
16 - CUNHAS: Peças prismáticas, geralmente usadas aos pares.
17 - CALÇOS: Peças de madeira os quais se apoiam os pontaletes e pés direitos por intermédio de cunhas.
18 - ESPAÇADORES: Peças destinadas a manter a distância interna entre os painéis das formas de paredes, fundações e vigas.
19 - JANELAS: Aberturas localizadas na base das fôrmas, destinadas a limpeza.
20 - TRAVAMENTO: Ligação transversal das peças de escoramento que trabalham a flambagem.
21 - CONTRAVENTAMENTO: Ligação destinada a evitar qualquer deslocamento das fôrmas. Consiste na ligação das fôrmas entre si.
11.2.3 - Detalhes de utilização:
a) - Nos Pilares
Os pilares são formados por painéis verticais travados por gravatas. Quando os pilares forem concretados antes das vigas, para garantir o prumo, temos que prever contraventamentos em duas direções perpendiculares entre si (Figuras 11.6 e 11.7) os quais deverão estar bem apoiados no terreno em estacas firmemente batidas ou engastalhos nas bases, lajes etc... Devem ser bem fixados com pregos (18x27 ou 19x36) nas ligações com a fôrma e com os apoios (estacas ou engastalhos).
Em pilares altos, prever contraventamentos em dois ou mais pontos de altura, e nos casos de contraventamentos longos prever travessas com sarrafos para evitar flambagem (Figuras 11.6 e 11.7).
Figura 11.6 - Detalhes do escoramento e contraventamentos em pilares
Devemos colocar gravatas com dimensões proporcionais às alturas dos pilares para que possam resistir ao empuxo lateral do concreto fresco.Na parte inferior dos pilares, as distância entre as gravatas devem ser máximo de 30 a 40 cm. Não devemos esquecer de deixar na base dos pilares uma janela para a limpeza e lavagem do fundo, bem como deixar janelas intermediárias, a cada 2,0m (Figura 11.7), para concretagem em etapas nos pilares altos. Esta janela tem a função de facilitar a vibração evitando a desagregação do concreto, responsável pela formação de vazios nas peças concretadas"bicheiras".
Figura 11.7 - Detalhes do escoramento e contraventamentos em pilares bem como das janelas
Tipos de gravatas usuais para o fechamento dos painéis dos pilares:- Tipo 1 = sarrafo simples, de 2,5 x 7,0 ou 10 cm
- Tipo 2 = dois sarrafos de 2,5 x 7,0 ou 10 cm
- Tipo 3 = caibro com dois sarrafos de 2,5 x 7,0 ou 10,0 cm
Figura 11.8 - Tipos de gravatas utilizadas em pilares (Cardão.1969)
Além das gravatas podemos reforçar as formas dos pilares com arame recozido nº12 ou nº 10 (seção 2), ou ainda com espaguetes, tensores, que podem ser introduzidas dentro de tubos plásticos para serem reaproveitados ( seção 3) (Figura 11.9).(1) (2) (3)
Figura 11.9 - Tipos de reforços em gravatas
Tensores
Espaguetes
Figura 11.10 - Modelos de tensores e espaguetes utilizados em fôrmas
b)-Nas vigas e lajes
As fôrmas das vigas são constituídas por painéis de fundo e painéis das faces firmemente travadas por gravata, mãos-francesas e sarrafos de pressão. Devemos certificar se as formas tem as amarrações, escoramentos e contraventamentos suficientes para não sofrerem deslocamentos ou deformações durante o lançamento do concreto. E verificarmos se as distâncias entre eixos (para o sistema convencional) são as seguintes:
- para as gravatas : 0,50, 0,60 a 0,80m
- para caibros horizontais das lajes : 0,50 m
- entre mestras ou até apoio nas vigas : 1,00 a 1,20m
- entre pontaletes das vigas e mestras das lajes : 1,00m
Nas formas laterais das vigas, que não são travadas pelos painéis de laje, não é suficiente a colocação de gravatas ancoradas através do espaço interior das fôrmas com arame grosso (arame recozido nº 10), espaguetes ou tensores , principalmente nas vigas altas, é necessário prever também um bom escoramento lateral com as mãos francesas entre a parte superior da gravata e a travessa de apoio (Figura 11.11) ou contra o piso ou terreno, evitando as "barrigas" ou superfícies tortas.
Na base da forma e sobre as guias é importante pregar um sarrafo denominado “sarrafo de pressão”, para evitar a abertura da forma (Figura 11.11).
Figura 11.11 - Detalhe de uma fôrma de viga
Outros tipos de fôrmas e escoramentos de vigas:Figura 11.12 - Detalhe de fôrma de vigas de pequena dimensão (Cardão, 1969)
Figura 11.13 - Detalhe da Fôrma das vigas sem sarrafo de pressão
Figura 11.14 - Detalhes da fôrma das lajes maciças
Figura 11.15a - Detalhes da fôrma das lajes maciças conjugado com vigas
Figura 11.15b - Detalhes da fôrma das lajes maciças conjugado com vigas
11.2.4 - Juntas das Fôrmas
As juntas das fôrmas devem ser fechadas para evitar o vazamento da nata de cimento que pode causar rebarbas ou vazios na superfície do concreto. Pode ser utilizado mata-juntas, fita adesiva e até mastiques elásticos (Figura 11.16).
Devemos evitar o fechamento das juntas com papel de sacos de cimento ou de jornais, o que não é muito eficiente. Isso pode ocorrer principalmente em pequenas obras.
Figura 11.16 - Fechamento das juntas de fôrma utilizando mata-juntas e fita adesiva
Recomendações:- Fazer o fechamento das juntas pouco antes da concretagem
- Colocar as tábuas das formas com o lado do cerne voltado para dentro (Figura 11.17), para evitar que as juntas se abram.
Figura 11.17 - Detalhe da fôrma utilizando tábuas
11.2.5 - Sistema de forma leve
São sistemas em que se utiliza mão-de-obra manual, ou seja, não necessitando do emprego de equipamentos para o içamento das peças. São encontradas de tres maneiras:a) Madeira : o escoramento das vigas são executadas em madeira por sistema chamados de garfos ou H de viga, e as lajes formadas por escoras, longarinas e transversinas de madeira (Figura 11.18).
b) Misto :É um sistema que utiliza escoramento metálico com finalidade de suporte de carga sendo a fôrma revestida com chapas de compesado e podem ser dimensionadas para uma pressão que pode chegar até 60k/m². O peso próprio dessas formas variam de 0,4 a 0,6kN/m², sendo sua aplicação feita manualmente, e somente se necessário, às vezes utiliza-se roldanas e corda para a subida vertical do equipamento (Figura 11.19).
Figura 11.18 - Escoramento de madeira tipo "H"
Figura 11.19 - Escoramento metálico
c) Industrializado metálico: São aqueles sistemas em que praticamente se utilizam elementos metálicos para fôrma e escoramento. compostos por painéis leves constituídos, geralmente, por uma estrutura de alumínio e compensado, forrando o painel. As fôrmas metálicas chegam a Ter um peso próprio de aproximadamente 0,13kN/m2, consistindo como bastante leves.
11.2.6 - Sistema médio de fôrmas
São sistemas que se utilizam equipamentos para o içamento dos painéis com a utilização, por exemplo, de grua ou guindaste.Esses painéis são estruturados e a forma pesa em média de 0,6 a 1,00 kN/m2. São utilizados compensados e vigas metálicas em aço ou alumínio
Os painéis estruturados tem grandes aplicações em obras-de-arte, barragens, reservatórios, paredes e núcleos de edificações.
11.2.7 - Sistema pesado de fôrmas
São sistemas nos quais que se utilizam gruas para o içamento da fôrma. Consiste essa modalidade de escoramento na utilização da chamada mesa voadora, que é uma estrutura metálica forrada por compensado sobre vigas mistas em alumínio ou aço.Essa estrutura fica apoiada sobre escoras ou treliças metálicas sob roldanas para a locomoção do sistema,para que, após a desforma, todo o conjunto seja levado à lateral da edificação e transportado por meio de grua para os pavimentos ou área de trabalho superiores ou próximos. As mesas voadoras pesam em média de 0,4 a 0,8 kN/m2. As principais aplicações desses sistemas são os muros, paredes, galerias e principalmente lajes.
11.2.8 - Sistema trepante e auto-trepante
São sistemas que com carro e cursor variável permitem deslocar a fôrma para frente e para trás na plataforma de trabalho, sem grua. Podem ser empregados em estruturas com mais de 100m de altura, sendo as fôrmas elevadas por comando hidráulicos.Figura 11.20 - Fôrma deslizante
11.2.9 - Sistema de fôrmas deslizante
São sistemas de fôrmas que deslizam verticalmente impulsionadas por macacos hidráulicos com aproximadamente 1,2 ton. de capacidade, sendo que a plataforma de trabalho dos operários sobe junto com a fôrma, o processo exige concretagem contínua. São de pequena altura, e apoiadas por barras de aço presas nas paredes de concreto (Figura 11.20). Esse sistema se aplica especialmente às obras verticais de reservatórios elevados, silos verticais, núcleos de prédios, poços de elevador e escadas, revestimentos de poços, grandes pilares, chaminés cilíndricas e torres para telecomunicações.
11.3 - RECOMENDAÇÕES QUANTO AO MANUSEIO E COLOCAÇÃO DAS BARRAS DE AÇO
1.3.1 - Dobramento das barras
Em algumas obras encontramos casos de quebra de barras de aço, quando do seu dobramento através de ferramentas manuais, este fato é observado na maioria das vezes em obras onde existe grande variabilidade de bitolas, para as quais, operários menos experientes não atentam para a necessidade de substituir o diâmetro do pino de dobramento, pois, para algumas bitolas eles são finos levando a barra, a sofrerem um ensaio extremamente rigoroso de dobramento, chegando a romper por tração.
A recomendação para estes casos, que os diâmetros dos pinos sejam os mais próximos possíveis aos especificados na Tabela 11.3.
Caso as barras continuem quebrando, recomendamos que sejam feitos ensaios de caracterização do lote.
Tabela 11.3 - Diâmetros de dobramento - Valores mínimos de db (Ganchos, dobras)
| BITOLAS | CA 25 | CA 50 | CA 60 | |
| POL | mm | |||
| 3/16" | 5 | 4φ | 5φ | 6φ |
| 1/4" | 6,3 | 4φ | 5φ | 6φ |
| 5/16" | 8 | 4φ | 5φ | 6φ |
| 3/8" | 10 | 4φ | 5φ | 6φ |
| 1/2" | 12,5 | 4φ | 5φ | 6φ |
| 5/8" | 16 | 4φ | 5φ | 6φ |
| 3/4" | 20 | 5φ | 8φ | |
| 1" | 25 | 5φ | 8φ | |
| 11/4" | 32 | 5φ | 8φ |
11.3.2 - Barras de espera de pilares
O que acontece com as barras de espera, são quanto ao seu posicionamento pois acontece em obras em que as esperas dos pilares não coincidem com sua localização em planta.
Para que isso ocorra, as causas podem ser diversas, tais como:
- falta de amarração adequada;
- movimentação das barras durante a concretagem - descuidos na locação dos pilares, etc.
Para evitar esse problema, recomendamos como principal a fiscalização das ferragens. Para melhorar a rigidez da armadura impedindo o seu deslocamento, recomendamos que se execute um quadro de madeira para servir de apoio às barras de espera e que o mesmo seja fixado no restante da armadura (Figura 11.21).
Caso as recomendações citadas não forem obedecidas, deixando as barras de espera fora de posição após a concretagem, não deve ser permitido que as mesmas sejam dobrados para alcançar sua posição (engarrafamento das armaduras), devendo nestes casos consultar o projetista.
Figura 11.21 - Quadro de madeira para servir de suporte às barras de espera dos pilares
As esperas de pilares (arranques) tem o comprimento mínimo dado por Norma NBR 6118/1980 (Tabela 11.4), o que deve ser respeitado, salvo recomendações do calculista.
Tabela 11.4 - Comprimentos básicos para as esperas de acordo com o fck do concreto (Fusco,1994)
| Fck (Mpa) | CA-50A - Barra estriada | |
| Boa aderência | Má aderência | |
| 15 | 40φ | 56φ |
| 20 | 32φ | 45φ |
| 25 | 28φ | 40φ |
| 30 | 24φ | 34φ |
| 35 | 22φ | 31φ |
| 40 | 20φ | 28φ |
11.3.3 - Armação de Fundação
As fundações das estruturas podem ser expostas a agentes agressivos presentes nas águas e/ou solos de contato. Merecem menção dentre tais agentes agressivos:
• Íons sulfatos, freqüentemente presentes em solos e águas subterrâneas; a ação dos sulfatos, quando presentes em solução produz, ao reagir com o hidróxido de cálcio e com o aluminato tricálcico hidratado, o gesso e o sulfo-aluminato de cálcio, que tem volumne consideravelmente maior do que os compostos iniciais, levando a expansão e desagregação do concreto;
• Líquidos que possam lixiviar o cimento; a lixiviação significa a extração ou dissolução dos compostos hidratados da pasta de cimento
Todas as vigas baldrames, e principalmente os blocos de estacas, sapatas, não devem, suas armaduras, serem apoiadas diretamente sobre o solo.
Porque as armaduras poderão ficar descobertas pelo concreto o que ocasionará a corrosão.
Para que isso não ocorra recomendamos que seja colocado no fundo das valas uma camada de concreto magro (lastro de concreto não estrutural). A pedra britada, poderia ser utilizada como lastro, mas os vazios formados pela elevada granulometria faz com que a pasta de cimento escoe formando vazios no concreto “bicheiras”, podendo deixar as armaduras expostas.
Figura 11.22 - Lastro de brita sob as vigas baldrames
Figura 11.23 - Lastro de britas sob os blocos de estacas
11.3.4 - Emendas
As emendas de barras por transpasses devem ser feitas rigorosamente de acordo com as recomendações do projetista. Quando não houver indicações, as emendas devem ser feitas na zona de menor esforço de tração, alternadas em diversos locais de uma seção (NBR 6118/1980), em várias - barras, se necessário, mas nunca em mais barras do que a metade.Em qualquer caso o comprimento da emenda mínima deve ser ≥15φ ou ≥20cm.
As emendas com luvas são excelentes. Emendas soldadas de aço CA-50 podem ser feitas com solda especial.
11.3.5 - Afastamento mínimo das barras
Como o concreto deve envolver toda a armadura e que não se apresente falhas de concretagem, é necessário que haja um mínimo de afastamento entre as barras. Admite-se que entre as barras tanto na vertical como na horizontal pelo menos 2cm e não menos do que o próprio diâmetro da barra.Cuidado com o congestionamento formado pelas armaduras das vigas com as dos pilares, a fim de facilitar o lançamento do concreto.
11.4 - COMO SE PREPARA UM BOM CONCRETO
Faremos aqui algumas recomendações sobre o preparo do concreto, com o objetivo de garantir sua homogeneidade, durabilidade e qualidade.
11.4.1 - Concreto preparado manualmente
Devemos evitar este tipo de preparo, pois a mistura das diversas massadas, não ficam com a mesma homogeniedade. O concreto preparado manualmente é aceitável para pequenas obras e deve ser preparado com bastante critério seguindo no mínimo as recomendações abaixo:
• Deve-se dosar os materiais através de caixas com dimensões pré determinadas, ou com latas de 18 litros, e excesso de areia ou pedra no enchimento das mesmas deve ser retirado com uma régua;
• A mistura dos materiais deve ser realizada sobre uma plataforma, de madeira ou cimento, limpa e impermeável (preferencialmente em "caixotes") (Figura 11.24);
• Espalha-se a areia formando uma camada de 10 à 15cm, sobre essa camada esvazia-se o saco de cimento, espalhando-o de modo a cobrir a areia e depois realiza-se a primeira mistura, com pá ou enxada até que a mistura fique homogênia (Figura 11.24);
• Depois de bem misturados, junta-se a quantidade estabelecida de pedra britada, misturando os três materiais (Figura 11.25);
• A seguir faz-se um buraco no meio da mistura e adiciona-se a água, pouco a pouco, tomando-se o cuidado para que não escorra para fora da mistura, caso a misturs for realizada sobre superfície impermeável sem proteção lateral "caixotes" (Figura 11.26).
Para regular a quantidade de água e evitar excesso, que é prejudicial, é conveniente observar a consistência da massa, da seguinte maneira:
• Se a plainada com a pá, a superfície deve ficar úmida, sem perder água.
• Se espremido com a mão um punhado de massa, a forma da espremedura deve permanecer.
Figura 11.24 - Mistura da areia e do cimento sobre superfície impermeável
Figura 11.25 - Adição das britas
Figura 11.26 - Colocação da água
11.4.2 - Concreto preparado em betoneira
Recomenda-se o mesmo cuidado no enchimento das caixas ou latas, medidas de areia e pedra do item 11.4.1.
Os materiais devem ser colocados no misturador na seguinte ordem:
• É boa a prática de colocação, em primeiro lugar, parte da água, e em seguida do agregado graúdo, pois a betoneira ficará limpa;
• É boa a regra de colocar em seguida o cimento, pois havendo água e pedra, haverá uma boa distribuição de água para cada partícula de cimento, haverá ainda uma moagem dos grãos de cimento;
• Finalmente, coloca-se o agregado miúdo, que faz um tamponamento nos materiais já colocados, não deixando sair o graúdo em primeiro lugar;
• Colocar o restante da água gradativamente até atingir a consistência ideal.
O tempo de mistura deve ser contado a partir do primeiro momento em que todos os materiais estiverem misturados.
Podemos estabelecer os tempos mínimos com relação ao diâmetro "d" da caçamba do misturador, em metros (Tabela 11.5).
Tabela 11.5 - Tempos mínimos de mistura de acordo com o diâmetro e tipo de betoneira
TEMPOS MÍNIMOS DE MISTURA | ||||
| Misturador tipo | Eixo Vertical | Eixo Horizontal | Eixo inclinado | |
| Tempo mínimo de mistura (seg.) |
Figura 11.27 - Seqüência da mistura em betoneira
OBS: Os materiais devem ser colocados com a betoneira girando e no menor espaço de tempo possível. Após colocados os materiais, deixe misturar no mínimo por 3 min.
Se o concreto ficar mole, adicione a areia e a pedra aos poucos, até atingir a consistência adequada.
Se ficar seco, coloque mais cimento e água, na proporção de 5 partes de cimento por 3 de água.
OBS : - Nunca adicione somente água, pois isso diminui a resistência do concreto.
- Devemos sempre colocar um operário de confiança para operar a betoneira, pois é ele que controla o lançamento dos materiais.
11.4.3 - Concreto dosado em central
Para a utilização dos concretos dosados em central, o que devemos saber é programar e receber o concreto.
a) - Programação do concreto: devemos conhecer alguns dados, tais como:
• localização correta da obra
• o volume necessário
• a resistência característica do concreto a compressão (fck) ou o consumo de cimento por m³ de concreto.
• a dimensão do agregado graúdo
• o abatimento adequado (slump test), Tabela 11.6
Tabela 11.6 - Limite de abatimento (Slump-Test) para diversos tipos de concreto
Tipo de Construção | Consistência (Trabalhabilidade) | Valores de abatimento em – mm - | |||||
| Tipo de execução de concreto: | |||||||
| Regular ou razoável Rigoroso Agregados em volume Agregados Sem ou com controle tecnológico em peso | |||||||
| V i b r a ç ã o | |||||||
| sem | com | com | |||||
| Min. | Máx. | Min. | Máx. | Min. | Máx. | ||
| Fundações e muros não armados | Firme | 20 | 40 | 20 | 60 | 10 | 50 |
| Fundações e muros armados | Firme até plástico | 30 | 80 | 30 | 70 | 20 | 60 |
| Estruturas comuns | Plástico | 60 | 80 | 50 | 70 | 40 | 60 |
| Peças esbeltas ou com excesso de armadura | Mole até Plástico | 80 | 110 | 70 | 90 | 60 | 80 |
| Concreto aparente | Plástico até mole | 70 | 100 | 60 | 80 | 50 | 70 |
| Concreto bombeado – até 40m Mais de 40m | Mole | ----- | ----- | 80 | 100 | 70 | 90 |
| Muito mole | ----- | ----- | 90 | 130 | 80 | 100 | |
| Elementos pré fabricados | Plástico até firme | 30 | 100 | 30 | 80 | 20 | 70 |
| Lastros-pisos | Firme até plástico | 60 | 80 | 50 | 70 | 30 | 40 |
| Pavimentação | Firme | ----- | ----- | 20 | 50 | 10 | 30 |
| Blocos maciços(concr. Socado) | Muito firme | ----- | ----- | 10 | 30 | 0 | 20 |
b) - Recebimento: antes de descarregar, deve-se verificar:
• o volume do concreto pedido
• a resistência característica do concreto à compressão (fck).
• aditivo se utilizado
Se tudo estiver correto, só nos resta verificar , o abatimento (slump test) para avaliar a quantidade de água existente no concreto. Para isso devemos executá-lo como segue:
• coletar a amostra de concreto depois de descarregar 0,5 m³ de concreto ou ≅ 30 litros.
• coloque o cone sobre a placa metálica bem nivelada e preencha em 3 camadas iguais e aplique 25 golpes uniformemente distribuídos em cada camada.
• adense a camada junto a base e no adensamento das camadas restantes, a haste deve penetrar até a camada inferior adjacente.
• retirar o cone e com a haste sobre o cone invertido meça a distância entre a parte inferior da haste e o ponto médio do concreto.
11.4.4 - Aplicação do concreto em estruturas
Na aplicação do concreto devemos efetuar o adensamento de modo a torná-lo o mais compacto possível.
O método mais utilizado para o adensamento do concreto é por meio de vibrador de imersão, para isso devemos ter alguns cuidados:
• aplicar sempre o vibrador na vertical
• vibrar o maior número possível de pontos
• o comprimento da agulha do vibrador deve ser maior que a camada a ser concretada.
• não vibrar a armadura
• não imergir o vibrador a menos de 10 ou 15 cm da parede da fôrma • mudar o vibrador de posição quando a superfície apresentar-se brilhante.
Figura 11.28 - Aplicação do vibrador na vertical
Porém antes da aplicação do concreto nas estruturas devemos ter alguns cuidados:• a altura da camada de concretagem deve ser inferior a 50 cm, facilitando assim a saída das bolhas de ar.
• e alguns cuidados nos pilares, vigas, lajes como segue:
a) Nos pilares
Verificar o seu prumo, e fazer com que a fôrma fique travada nos "engastalhos", e contraventá-las.
Engravatar a fôrma a cada aproximadamente 50 cm, e em casos de pilares altos a 2,00m fazer uma abertura "janela" para o lançamento do concreto, evitando com isso a queda do concreto de uma altura fazendo com que os agregados graúdos permaneçam no pé do pilar formando ninhos de pedra a vulgarmente chamado "bicheira".
Podemos ainda fazer uma outra abertura no pé do pilar para, antes da concretagem, fazer a remoção e limpeza da sua base.
O concreto deverá ser vibrado com vibrador específico para tal, e não a "marteladas" como o usual.
Fazer um "cachimbo" nas janelas para facilitar a concretagem (Figura 11.29).
Figura 11.29 - Cachimbo para facilitar a concretagem
b) - Nas vigas
Deverá ser feito formas, contraventadas a cada 50cm, através de gavatas, mãosfrancesas etc., par evitar, no momento de vibração, a sua abertura e vazamento da pasta de cimento.Verificar a estanqueidade das fôrmas;
Limpar as fôrmas e molhá-las antes de concretar
As vigas deverão ser concretadas de uma só vez, caso não haja possibilidade, fazer as emendas à 45º (Figura 11.30).
As emendas de concretagem devem ser feitas de acordo com a orientação do
Engenheiro calculista. Caso contrário, a emenda deve ser feita a 1/4 do apoio, onde geralmente os esforços sÃo menores. Devemos evitar as emendas nos apoios e no centro dos vãos, pois ao momentos negativos e positivos, respectivamente, são máximos.
Figura 11.30 - Emendas de concretagem em vigas realizada à 450
Quando uma concretagem for interrompida por mais de três horas a sua retomada só poderá ser feita 72 horas - após a interrupção; este cuidado é necessário para evitar que a vibração do concreto novo, transmitida pela armadura, prejudique o concreto em início de endurecimento. A superfície deve ser limpa, isenta de partículas soltas, e para maior garantia de aderência do concreto novo com o velho devemos:1º retirar com ponteiro as partícula soltas
2º molhar bem a superfície e aplicar
3º ou uma pasta de cimento ou um adesivo estrutural para preencher os vazios e garantir a aderência.
4º o reinicio da concretagem deve ser feito preferêncialmente pelo sentido oposto.
c) - Nas Lajes
Após a armação, devemos fazer a limpeza das pontas de arame utilizadas na fixação das barras, através de imã, fazer a limpeza e umedecimento das formas antes de concretagem, evitando que a mesma absorva água do concreto. O umedecimento nas fôrmas de laje maciça não pode originar acúmulo de água, formando poças.Garantir que a armadura negativa fique posicionada na face superior, com a utilização dos chamados "Caranguejos." (Figura 11.31)
Figura 11.31 - Detalhe da colocação de caranguejos no posicionamento das armaduras das lajes
Recomendamos o uso de guias de nivelamento e não de pilaretes de madeira para nivelarmos a superfície das lajes.(Figura 11.32)Figura 11.32 - Detalhe das guias de nivelamento
Recomendamos ainda que as passarelas, para movimentação de pessoal no transporte de concreto, seja feita móveis e apoiadas diretamente sobre as formas, independentes da armadura (Figura 11.33). Desta forma evitaremos a vibração excessiva das armaduras com eventual risco de aderência na parte de concreto já parcialmente endurecido, e a deslocação das mesmas principalmente as armaduras negativas.
Figura 11.33 - Passarela para concretagem
11.4.5 - Cobrimento da armadura
A importância do Cobrimento de concreto na armadura é de vital importância na durabilidade mas também pelos benefícios adicionais, como por exemplo a resistência ao fogo. É preocupante ao constatar que esse ponto é freqüentemente negligenciado.Na execução, deve ser dada atenção apropriada aos espaçadores para armadura e uso de dispositivos para garantia efetiva do cobrimento especificado (Figura 11.34).
Devemos em todos os casos garantir o total cobrimento das armaduras, lembrando que o aço para concreto armado estará apassivado e protegido da corrosão quando estiver em um meio fortemente alcalino propiciando pelas reações de hidratação do cimento, devemos fazer cumprir os cobrimentos mínimos exigidos no projeto e dado pela Norma. (Tabela 11.7)
Tabela 11.7 - Cobrimento das armaduras
| Para concreto revestido com argamassa de espessura mínima de 1cm | |
| Em lajes no interior de edifícios | 0,5cm |
| Em paredes no interior de difícios | 1,0cm |
| Em lajes e paredes externas | 1,5cm |
| Em vigas, pilares e arcos no interior dos edifícios | 1,5cm |
| Em vigas, pilares e arcos externos | 2,0cm |
| Para concreto aparente | |
| No interior de edifício | 2,0cm |
| Ao ar livre | 2,5cm |
| Demais casos | |
| Para concreto em contato com o solo | 3,0cm |
| Para concreto em meio fortemente agressivo | 4,0cm |
• pastilhas (espaçadores): plásticas ou de argamassa, que além de mais econômicas, aderem melhor ao concreto e podem ser facilmente obtidas na obra, com o auxílio de formas de madeira, isopor (caixa de ovos), (para fazer gelo), metálica etc...
• cordões de argamassa.
e = recobrimento
Figura 11.34 - Pastilhas de argamassa
Figura 11.35 - Pastilhas plásticas
11.4.6 - Cura
A cura é um processo mediante o qual mantém-se um teor de umidade satisfatório, evitando a evaporação da água da mistura, garantindo ainda, uma temperatura favorável ao concreto, durante o processo de hidratação dos materiais aglomerantes.A cura é essencial para a obtenção de um concreto de boa qualidade. A resistência potencial, bem como a durabilidade do concreto, somente serão desenvolvidas totalmente, se a cura for realizada adequadamente.
Existem dois sistemas básicos para obtenção da perfeita hidratação do cimento:
1 – Criar um ambiente úmido quer por meio de aplicação contínua e/ou freqüente de água por meio de alagamento, molhagem, vapor d’água ou materiais de recobrimento saturados de água, como mantas de algodão ou juta, terra, areia, serragem, palha, etc.
OBS.: Deve-se ter cuidados para que os materiais utilizados não sequem e absorvam a água do concreto.
2 – Prevenir a perda d’água de amassamento do concreto através do emprego de materiais selantes, como folhas de papel ou plástico impermeabilizantes, ou por aplicação de compostos líquidos para formação de membranas.
a) Tempo de Cura
Para definir o prazo de cura, motivo de constante preocupação de engenheiros e construtores nacionais, é necessário considerar dois aspectos fundamentais: - a relação a/c e o grau de hidratação do concreto; - tipo de cimento.Para concretos com resistência da ordem de 15Mpa devemos curar o concreto num período de 2 a dez dias, de acordo com a relação a/c utilizada e o tipo de cimento, conforme mostra a Tabela 11.8:
Tabela 11.8 - Número de dias para cura de acordo com a relação a/c e do tipo de cimento
| a/c Cimento | 0,35 | 0,55 | 0,65 | 0,70 |
| CPI e II 32 | 2 | 3 | 7 | 10 |
| CPIV – POZ 32 | 2 | 3 | 7 | 10 |
| CPIII – AF – 32 | 2 | 5 | 7 | 10 |
| CPI e II – 40 | 2 | 3 | 5 | 5 |
| CPV – ARI | 2 | 3 | 5 | 5 |
- condições locais, temperatura, vento e umidade relativa do ar;
- geometria das peças, que pode ser definida pela relação, área de exposição/volume da peça.
Em certas condições, haverá necessidade de concretos mais compactos (menos porosos), exigindo um prolongamento do período em que serão necessárias as operações de cura. Nessas condições haverá necessidade de considerar também a variável agressividade do meio ambiente.
O maior dano causado ao concreto pela falta da cura não será uma redução nas resistências à compressão, pelo menos nas peças espessas, que retêm mais água e garantem o grau de umidade necessário para hidratar o cimento. A falta de uma cura adequada age principalmente contra a durabilidade das estruturas, a qual é inicialmente controlada pelas propriedades das camadas superficiais desse concreto. Secagens prematuras resultam em camadas superficiais porosas com baixa resistência ao ataque de agentes agressivos. Ironicamente, as obras mais carentes de uma cura criteriosa – pequenas estruturas, com concreto de relação a/c elevada – são as que menos cuidados recebem, especialmente componentes estruturais, como pilares e vigas. Além disso, é prática usual nos canteiros de obras cuidar da cura somente na parte superior das lajes.
11.4.7 - Desforma
A desforma deve ser realizada de forma criteriosa. Em estruturas com vãos grandes ou com balanços, deve-se pedir ao calculista um programa de desforma progressiva, para evitar tensões internas não previstas no concreto, que podem provocar fissuras e até trincas.
Quando os cimentos não forem de alta resistência inicial ou não for colocado aditivos que acelerem o endurecimento e a temperatura local for adequada, a retirada das fôrmas e do escoramento não deverá ser feito antes dos seguintes prazos:
• faces laterais 3 dias
• retirada de algumas escoras 7 dias
• faces inferiores, deixando-se algumas
escoras bem encunhadas 14 dias
• desforma total, exceto as do item abaixo 21 dias
• vigas e arcos com vão maior do que 10 m 28 dias
A desforma de estruturas mais esbeltas deve ser feita com muito cuidado, evitando-se desformas ou retiradas de escoras bruscas ou choques fortes.
11.4.8 - Consertos de falhas
Devemos proibir, nas obras, que após a desforma de qualquer elemento da estrutura de concreto armado sejam fechadas falhas (bicheiras) do concreto, para esconder eventuais descuidos durante a concretagem ou por outro qualquer motivo.
Para os concertos nas falhas simples devemos assim proceder:
• remover o concreto solto, picotar e limpar bem o lugar a ser reparado.
• limpar bem as barras das armaduras descoberta removendo toda a ferrugem.
• aplicar um adesivo a base de epóxi na superfície de contato do concreto e das barras de aço com o novo concreto de enchimento.
• preenchimento do vazio, com concreto forte, sendo aconselhável aplicar aditivo inibidor de retração (expansor).
Figura 11.36 - Método mais comum de consertos de falhas
11.4.9 - O que devemos verificar antes da concretagem - Plano de Concretagem
Antes da concretagem devemos verificar um conjunto de medidas a serem tomadas antes do lançamento do concreto objetivando a qualidade da peça a ser concretada, que são:a) Fôrma e Escoramento
• Conferir a montagem baseada no projeto;• Capacidade de suporte da fôrma relativo a deformações provocadas pelo peso próprio ou devido às operações de lançamento;
• Estanqueidade;
• Limpeza e aplicação de desmoldante;
• Tratamento da superfície de contato.
b) Armadura
• Bitolas, quantidades e dimensões das barras;• Posicionamento;
• Fixação;
• Cobrimento das armaduras (pastilhas, espaçadores)
• Limpeza
c) Lançamento
• Programar antecipadamente o volume de concreto, início e intervalos das cargas;• Programar o tempo previsto para o lançamento;
• Dimensionar a equipe envolvida no lançamento, adensamento e cura do concreto;
• Prever interrupções nos pontos de descontinuidade (juntas, encontros de pilares, paredes com vigas ou lajes);
• Especificar a forma de lançamento (convencional, bomba estacionária, autobomba com lança, esteira, caçamba);
• Providenciar equipamentos e dispositivos (carrinhos, jericas, guincho, guindaste, caçamba);
• Providenciar ferramentas diversas (enxada, pás, desempenadeiras, ponteiros, etc..)
• Providenciar tomadas de força para equipamentos elétricos;
• Durante o lançamento devemos evitar o acúmulo de concreto em determinados pontos da fôrma, lançar o mais próximo da sua posição final, evitar a segregação e o acúmulo de água na superfície do concreto, lançar em camadas horizontais de 15 a 30cm, a partir da extremidade para o centro das fôrmas, lançar nova camada antes do início de pega da camada inferior, a altura de lançamento não deve ultrapassar a 2,0m;
• No caso de lançamento convencional verificar: o intervalo compatível de entrega do concreto, limitar o transporte a 60m, preparar rampas e caminhos de acesso, iniciar a concretagem pela parte mais distante do local de recebimento do concreto;
• No caso de lançamento por bombas verificar: altura de lançamento, prever local de acesso e de posicionamento para os caminhões e bomba.
d) Adensamento
• Providenciar, vibradores de imersão (agulha), vibradores de superfície (réguas vibratórias), vibradores externos (vibradores de fôrma);• O vibrador de imersão deve penetrar cerca de 5,0cm da camada inferior;
• Iniciar o adensamento logo após o lançamento;
• Evitar o adensamento a menos de 10cm da parede da fôrma devido a formação de bolhas de ar e perda de argamassa;
e) Cura
• Iniciar a cura tão logo a superfície concretada tenha resistência à ação da água;• A cura deve ser contínua;
ANOTAÇÕES
Noções de segurança:- Para evitar quedas de pessoas em aberturas, beirada das lajes, escorregões ocasionados pela desforma, emprego de escadas inadequadas devemos: proteger as beiradas das lajes, poços, com guarda-corpos de madeira, metal ou telados. As escadas devem ser dimensionadas em função do fluxo de trabalhadores, ser fixadas nos pisos inferiores e superiores.
- Para evitar quedas de materiais e objetos, devemos evitar o empilhamento e armazenamento próximo a beiradas de laje. Madeira de desforma e estroncas devem ser armazenadas no centro do pavimento.
- O içamento de materiais só deve ser feito por pessoal qualificado
- Para o transporte, corte, dobra e manipulação de armações de aço devem ser utilizados os equipamentos de proteção individual obrigatórios (capacete, óculos de segurança contra impactos, avental, luva e mangote de raspa, protetor auricular, calçado, cinturão de segurança tipo pára-quedista e trava-quedas).
- Retirar da área de produção as ferramentas defeituosas, danificadas ou improvisadas.
TÉCNICAS DE CONSTRUÇÃO CIVIL E CONSTRUÇÃO DE EDIFÍCIOS
12 - ESCADAS
APÓS ESTUDAR ESTE CAPÍTULO; VOCÊ DEVERÁ SER CAPAZ DE:
• Escolher o tipo de escada ideal para a sua edificação;
• Calcular corretamente as escadas; • Executar corretamente a escada calculada.
12.1 - CONSIDERAÇÕES GERAIS, NORMAS E TERMINOLOGIA
As escadas servem para unir, por degraus sucessivos, os diferentes níveis de uma construção. Para isso deveremos seguir algumas normas:
a) A proporção cômoda entre o plano horizontal e o plano vertical dos degraus é definida pela expressão:
0,63 ≤ 2e + p ≤ 0.64m
Sendo: e = plano vertical, altura ou espelho.
p = plano horizontal, largura ou piso.
As alturas máximas e larguras mínimas admitidas são:
1º - Quando de uso privativo:
a) altura máxima 0.19 m
b) largura mínima 0.25 m
2º - Quando de uso comum ou coletivo:
a) altura máxima 0.18 m
b) largura mínima 0.27 m
Os pisos dos degraus poderão apresentar saliências até de 0,02m, que não será computada na dimensão mínima exigida (Figura 12.1).
Figura 12.1 - Detalhe dos degraus de uma escada (G.Baud,1976)
Temos nas escadas a linha de plano horizontal ou linha de piso que é a projeção sobre um plano horizontal do trajeto seguido por uma pessoa que transita por uma escada.Em geral esta linha ideal se situa na parte central dos degraus, quando a largura da escada for inferior ou igual a 1,10m. Quando exceder a essa grandeza a linha de planos horizontais se traça a 50 ou 55cm da borda interior (Figura 12.2). Esta é a distância a que circula uma pessoa que com a mão se apoia no corrimão lateral e é a que se conserva nas curvas.
Sobre a linha de planos horizontais tomam-se exatamente os valores da largura do degrau, que deverão ser constantes ao longo da mesma.
O conjunto dos degraus compreendidos entre dois níveis, ou entre dois patamares chama-se lanço ou lance.
Um lance não deve ter mais de que 16 degraus ou ainda não exceder a 2,90 m de altura a vencer. Se o número exceder aos valores será preciso intercalar um descanso intermediário (patamar). A largura deste deverá ser no mínimo três pisos (plano horizontal), nunca inferior à largura da escada. Em cada piso a escada desemboca em um descanso que se chama patamar ou descanso de chegada.
Figura 12.2 - Posição da linha do plano horizontal
As portas que abrem sobre o patamar não devem ocupar a superfície útil do mesmo.As escadas ainda deverão ser dispostas, de tal forma que assegurem a passagem com altura livre igual ou superior a 2,00 m.
Figura 12.3 - Altura livre mínima de passagem
b) A largura da escada de uso comum ou coletivo, ou a soma das larguras, no caso de mais de uma, deverá ser suficiente para proporcionar o escoamento do nº de pessoas que dela dependem no sentido da saída. Para determinação desse número toma-se- á a lotação do andar que apresente maior população mais a metade de lotação do andar vizinho, inverso a saída.O cálculo da lotação dos edíficios poderá ser feito em função da área bruta do andar por pessoa, descontando os recintos sem permanência humana.
| - Locais de reuniões (pessoas em pé) | = 0,3 m² / pessoa |
| - Locais de reuniões (com assentos corridos) | = 0,8 m² / pessoa |
| - Locais de reuniões (com assentos unitário) | = 1,5 m² / pessoa |
| - Lojas, terminais, salas de aulas | = 3,0 m² / pessoa |
| - Laboratórios de escolas | = 4,0 m² / pessoa |
| - Escritórios, oficinas | = 9,0 m² / pessoa |
| - Depósitos, indústrias | = 10,0 m² / pessoa |
| - Hotéis, hospitais, etc. | = 15,0 m² / pessoa |
Consideramos a "unidade de saída" aquela largura igual a 0,60m, que é a mínima em condições normais, permitindo o escoamento de 45 pesssoas da população calculada do edifício, correspondente a uma fila.
Com os dados apresentados fica mais fácil adotarmos uma largura de escada satisfatória, mas nunca inferior ao que segue:.
A largura mínima das escadas de uso privativo será de 0,90 quando no caso especial de acesso giraus, adegas e similares 0,60 m, e a de uso coletivo será:
• de 1,50m nas edificações para hospitais, clínicas e similares, locais de reuniões esportivas, recreativas, etc.
• de 1,20 m para as demais edificações.
Em casos de escadas de uso comum, a capacidade dos elevadores e escadas rolantes não será levada em conta para efeito do cálculo do escoamento da população de edifício. A largura máxima permitida para uma escada será de 3,00m.
Arranjos possíveis (Tabela 12.1) (Figura12.4):
Tabela 12.1 - Largura das escadas em relação ao número de pessoas
| Fila | Unid. saída | Largura (m) | Escoamento(pessoas) |
| 2 | 2 | 1,20 | 90 |
| 3 | 2,5 | 1,50 | 135 |
| 4 | 4 | 2,40 | 180 |
| 5 | 4,5 | 2,70 | 225 |
| 6 | 5 | 3,00 | 270 |
Figura 12.4 - Exemplo de ocupação (fila) de uma escada
As escadas em curva só são permitidas quando excepcionalmente justificáveis, desde que a curvatura externa tenha raio de 6,00 metros, no mínimo, e os degraus tenham largura mínima de 0,28m, medida na linha do plano horizontal, desenvolvida a distância de 1,00m.As escadas de uso comum ou coletivo terão obrigatoriamente:
• Corrimãos de ambos os lados, obedecidos os requisitos seguintes:
a) Altura constante, situada entre 0,75 m e 0,85 m, acima do nível da borda do piso dos degraus.
b) Serão fixados pela sua face inferior.
c) Estarão afastados das paredes no mínimo 4 cm.
d) Largura máxima de 6 cm
OBS: - Se a soma da largura e do afastamento do corrimão não ultrapassar 10 cm, a medida da largura da escada não precisa ser alterada, garantindo o escomento.
A altura do guarda corpo exigida é entre 90 a 120cm, sendo recomendado 110cm, que nestes casos devemos acrescentar o corrimão.
Quando a largura da escada for superior a 1,80 m , deverá ser instalado também corrimão intermediário.
Se dá o nome de CAIXA ao espaço ou local em cujo interior se acha a escada. A forma da caixa e da escada é citada pelas condições locais de altura e espaço, que podem ser por exemplo (Figura 12.5):
Figura 12.5 - Exemplo de caixa de escada (G.Baud, 1976)
As escadas deverão ter a inclinação sempre constante em um mesmo lance. O valor do plano horizontal e da altura (plano vertical) não devem variar jamais de um patamar a outro (Figura 12.6), contudo é aceitável uma exceção quando se trata de degraus de saída, este pode ter um plano horizontal de 2 à 5 mm superior aos dos outros degraus.A inclinação mais favorável é de 30° para as escadas internas.
Portanto devemos tomar a cautela no instante do cálculo da escada, no seu desenho e marcação na obra, para que não haja a mudança de inclinação, fazendo com isso o seu perfeito desenvolvimento.
Mudança de Inclinação Inclinação comuns das escadas
Figura 12.6 - Inclinação das escadas (G.Baud, 1976)
12.2 - CÁLCULOS E DESENHOS PRÁTICOS DE ESCADAS
Na realidade uma escada não se calcula com máquina de calcular e sim, com um "compasso", que, ao invés de traçar círculos, divide suas alturas e larguras estabelecendo o seu desenvolvimento (G.Baud, 1976).
No entanto sabemos que um degrau com 14 centímetros de altura é fácil de subir e que depois dos 18, torna-se muito cansativo, portanto para base de cálculo poderemos adotar um espelho entre 14 a 18cm. A sua largura deve ser suficiente para receber, se possível no centro da linha do plano horizontal ou de piso, um pé inteiro, sem que o mesmo esbarre no espelho (Figura 12.7), com isso podemos estabelecer um limite de um mínimo de 25 cm e um máximo de 35 cm.
Figura 12.7 - Dimensões dos pisos e espelhos para calculo de escada
Para se calcular uma escada devemos:1º - Medir com precisão a distância entre o piso e o nível a ser atingido, isto é, do piso inferior ao piso superior, e dividi-la por uma altura entre 14 a 18 cm, até obter um número exato de degraus.
2º - Calcular o desenvolvimento das escadas: que é elemento útil para fixação das dimensões da caixa, quando ainda não está definida, e quando já se tem, verificar se a escada encaixa-se no vão existente.
O desenvolvimento é obtido com facilidade uma vez conhecido o comprimento dos lances, visto já ter calculado a largura dos pisos, e o comprimento dos patamares.
Assim para calcularmos o comprimento do lance faremos:
C = ( N - 1) p+s
sendo: C = Comprimento do lance. N = Nº de degraus.p = piso ( plano horizontal). s = saliência ou pingadeiras
Portanto o desenvolvimento será:
D = C+P
sendo: C = Comprimento do lance.P = Dimensão do patamar
Exemplos:
1º - Tendo uma altura a vencer de 2,70 m, e a escada em um lance com piso de 30cm teremos: distância = 2,70m
Adotando um espelho de 15cm teremos: 2,70m + 0,15= 18 degraus C = ( 18 - 1). 0,30 = 5,10m D = 5,10 + 0,0 = 5,10 m
2º - Tendo a altura a vencer de 2,90m, e a escada em um lance com piso de 30 cm teremos:
distância = 2,90 m
Mantendo os mesmos 18 degraus teremos:2,90 +18=0,1611 de espelho C = (18-1).0,30 = 5,10m
D = 5,10 + 0,0 = 5,10 m
COMENTÁRIOS:
Como visto nos exemplos podemos, para calcular uma escada, adotar o espelho, como no 1º exemplo, e verificar quantos degraus teremos na escada ou adotar o nº de degraus, como no 2º exemplo, e determinarmos o espelho. Em ambos os casos ficamos restritos apenas a verificar se a escada irá se encaixar no vão que temos ou não, por esse motivo é que se calcula o desenvolvimento da mesma. Caso não se encaixe devemos procurar uma solução para vencermos a altura.
Como podemos observar no 2º exemplo, este rigor na divisão não pode ser adotado, na prática, por isso mesmo é que os carpinteiros traçam a escada em tamanho natural, utilizando um nivelamento ou galga.
12.2.1 - Como desenhar as escadas dadas nos exemplos
a) método 1 (prático):
Figura 12.8 - Método prático de desenho de escada
- Desenha-se os níveis, de onde nasce a escada e onde termina, no nosso caso, níveis 0,00 e 2,70.
- Deixa-se um vão, que terá o nº de degraus multiplicado pelo valor do piso (Desenvolvimento) = D= 5,10m e teremos uma reta AB.
- Dividindo a reta AB- com valores do piso, teremos os nºs de degraus.
- De onde nasce a escada e onde termina, traça-se uma reta AC.
- Traçando-se paralelas a reta BC tendo como base os pontos 1,2,3,4..., encontraremos na intersecção com a reta AC os valores 1', 2', 3', 4', que a partir desses e mediante uma paralela a reta AB encontraremos na sua intersecção com a reta BC os valores dos espelhos.
b) Método 2 = ( Pelo Método de Divisão de Retas)
- Traçar uma reta qualquer AC (Figura 12.9)
- Dividi-la com um valor qualquer, tantas vezes quantos degraus se tenha: (c)
- Traçar uma reta AB, partindo do A, com uma inclinação qualquer, de valor igual a distância a vencer. (Diferença de nível)
- Unindo-se o ponto B com C, traça-se paralelas a BC que passam pelos pontos C1 .
Figura 12.9 - Divisão de reta
- As intersecções das paralelas com a linha AB nos fornece o valor dos espelhos. (c') - Com auxílio de um compasso, transportar os valores dos espelhos para o desenho (Figura12.10).
Figura 12.10 - Desenho da escada
12.3 - ESCADAS COM SEÇÕES EM CURVA
Quando ao mudarmos de direção e não a fizermos com lances retos, devemos nos prevenir e fazer com que na curva, as larguras dos pisos sobre a linha do plano horizontal permaneça com a mesma dimensão:
Traçado prático para obtenção das escadas em curva.
12.3.1 - Divisão da escada com seção em curva
1) Fora do traçado da escada, desenhar uma reta e marcar nela os traços dos degraus que é preciso repartir ou compensar e além disso o do último degrau reto (Figura 12.12).
2) Traçar uma reta 4-A que parta da extremidade da primeira e forme um ângulo qualquer com ela.
3) Sobre esta última reta, tomar: a) marca normal 4-5; b) o comprimento desenvolvido da linha de vazio ou de rebordo 5'A.
4) Unir 5' -5 e 12-A; suas prolongações determinam o ponto F.
5) Unindo F com os pontos de separação das marcas normais determinando-se 6', 7', 8', 9', 10' e 11'.
6) Trasladar os valores encontrados ao plano da escadaria: 5'- 6'; 6' - 7'; 7'- 8'; etc.
Figura 12.11 -Desenho da escada com seção em curva (G.Baud, 1976)
Figura 12.12 -Divisão dos pisos para a escada com seção em curva (G.Baud, 1976)
12.4 - ESCADAS DE SEGURANÇA
Consideramos escada de segurança as escadas a prova de fogo e fumaça dotadas de antecâmeras ventilada. Para um bom projeto de escada de segurança, devemos verificar e pesquisar as normas de segurança que normalizam o projeto e a execução das mesmas.Ficamos restritos aqui, apenas a exemplificar alguns tipos de escada de segurança:
Figura 12.13 - Exemplo de escada de segurança
12.5 - COMO EXECUTAR AS ESCADAS NA OBRA
A marcação de escadas na obra deve seguir o projeto, no entanto na maioria das vezes, na execução da obra muda-se as cotas e com isso cabe ao profissional adaptar a escada as novas medidas. Deixando bem claro que as variações de medidas devem ficar na ordem de centímetros, caso contrário devemos recalcular a escada.
Para marcar a escada na obra devemos ter um anteparo, que pode ser uma parede (nas escadas enclausuradas) ou mesmo uma tábua (fôrma lateral), onde possamos riscar a escada nas medidas reais. E a fazemos da seguinte forma (Figuras 12.14 e 12.15) :
1º - Medir na horizontal a somatória do nº de degraus. Ex.: 10 degraus de p=30 cm = 3,00m.(Figura 12.14)
2º - Esticar uma linha do nível inferior ao superior. (Figura 12.15)
3º - Com o auxílio de um prumo verificar a verticalidade do ponto de chegada (nível superior). (Figura 12.15)
4º - Com o auxílio de uma galga com dimensão do piso e um nível de bolha, marca-se a escada
Figura 12.14 - Início da divisão da escada
Figura 12.15 - Divisão da escada utilizando o nível de mão (pedreiro) e uma galga
Depois de marcá-la, faremos a forma da mesma maneira das lajes, pontaletada e contraventada, sendo portanto os lances formados por painéis inclinados de tábuas no sentido longitudinal limitadas nas laterais por tábuas pregadas de pé, tábuas em pé também formam os espelhos.(Figura 12.16)Devemos ter o cuidado, para que as tábuas dos espelhos não deformem na concretagem. Para se evitar, ligam-se aquelas tábuas uma as outras, pela borda superior usando sarrafos longitudinais.
Figura 12.16 - Detalhes do escoramento e da fôrma de uma escada
Podemos executar as escadas também com o auxílio da laje pré moldada, quando não temos que vencer grandes alturas e o seu uso for privativo (Figuras 12.17 e 12.18).Figura 12.17 - Degraus em concreto utilizando laje pré moldada
Figura 12.8 - Degraus com tijolos maciços utilizando laje pré moldada
OBS: O cimbramento será feito da mesma maneira do executado nas lajes pré-moldadas. A concretagem das escadas são feitas com concreto estrutural, "seco" e de baixo para cima.ANEXOS
FERRAMENTAS
EPI – EQUIPAMENTOS DE PROTEÇÃO INDIVIDUAL
FUNÇÃO x EPI | |||||||||||||||||||||||||
| 9 uso obrigatório | |||||||||||||||||||||||||
| ’ uso eventual | |||||||||||||||||||||||||
| Administração em geral | 9 | 9 | |||||||||||||||||||||||
| Almoxarife | 9 | ’ | 9 | ||||||||||||||||||||||
| Armador | 9 | ’ | ’ | ’ | 9 | 9 | |||||||||||||||||||
| Azulejista | 9 | ’ | 9 | 9 | |||||||||||||||||||||
| Carpinteiro | 9 | ’ | ’ | ’ | ’ | 9 | |||||||||||||||||||
| Carpinteiro (serra) | 9 | 9 | 9 | ’ | 9 | ||||||||||||||||||||
| Eletricista | 9 | ’ | 9 | 9 | 9 | ||||||||||||||||||||
| Encanador | 9 | ’ | ’ | 9 | |||||||||||||||||||||
| Equipe-concretagem | 9 | 9 | 9 | ’ | 9 | ’ | |||||||||||||||||||
| Equipe-montagem | 9 | 9 | 9 | ||||||||||||||||||||||
| Operador-betoneira | 9 | 9 | 9 | ’ | 9 | 9 | ’ | ||||||||||||||||||
| Operador-compactador | 9 | 9 | 9 | ||||||||||||||||||||||
| Operador-empilhadeira | 9 | 9 | ’ | ||||||||||||||||||||||
| Operador-guincho | 9 | ’ | 9 | ||||||||||||||||||||||
| Operador-máquina | 9 | ’ | 9 | ||||||||||||||||||||||
| Operador-martelete | 9 | 9 | ’ | ’ | 9 | 9 | 9 | ||||||||||||||||||
| Operador de policorte | 9 | ’ | 9 | 9 | 9 | 9 | |||||||||||||||||||
| Pastilheiro | 9 | ’ | 9 | 9 | |||||||||||||||||||||
| Pedreiro | 9 | ’ | ’ | 9 | ’ | 9 | |||||||||||||||||||
| Pintor | 9 | ’ | ’ | ’ | ’ | ’ | 9 | ||||||||||||||||||
| Poceiro | 9 | ’ | ’ | 9 | ’ | 9 | |||||||||||||||||||
| Servente Geral | 9 | Déverá sempre utilizar Correspondente a sua equipe | Déverá sempre utilizar Correspondente a sua equipe | 9 | |||||||||||||||||||||
| Soldador | 9 | 9 | 9 | 9 | 9 | ’ | 9 | 9 | 9 | 9 | 9 | ||||||||||||||
| Vigia | 9 | 9 | ’ |
Cabe ao empregador: - Cumprir as disposições legais sobre Segurança Saúde no Trabalho
- Fornecer aos empregados gratuitamente, o EPI adequado ao risco e em perfeito estado.
- Tornar obrigatório o uso do EPI
- Substituir, imediatamente, o EPI danificado ou extraviado - Higienizar e realizar manutenção periódica do EPI
Cabe ao empregado: - Observar as Normas de Segurança do Trabalho
- Usar o EPI fornecido pela empresa a finalidade a que se destina - Responsabilizar-se por sua guarda e conservação
PREGOS NA ESCALA NATURAL 1:1
TABELAS PARA OBRAS COM CONCRETO ARMADO
= Telas para estrutura de concreto armado
NORMAS: NBR 7481, NBR 5916 E NBR 7480 DA ABNT
Categorias do aço: CA-60: 3 ≤ 0 ≤ 9mm
Dimensões padronizadas: Largura: 2,45m Comprimento: Rolo: vide tabela - Painéis:
4,20m e 6,00m
Emendas: (Em cm)
Por simples justaposição
das telas para armaduras prinicpais: (3 malhas) (desenho da justaposição 3 malhas)
Para armadura de distribuição: (1 malha)
286
TABELAS DE CARGAS PERMANENTES
Peso próprio| Concreto Armado | 2,5 tf/m³ |
| Lajes e paredes de concreto | 25h(cm) Kgf/m² |
| Vigas e pilares | 0,25.bw(cm).h(cm) Kgf/m |
| Laje pré | Verificar |
bw= largura h = altura
Peso de revestimento de laje
50kg/m²
Peso de enchimento
| Material | Peso específico γ (tf /m³) |
| Caco pumex | 0,60 |
| Argila expandida | 0,85 |
| Entulhos | 1,10 - 1,50 |
Peso de paredes
| Tijolos Maciço | 1,6 tf/m³ | ||||
| Tijolo Baiano | 1,2 tf/m³ | ||||
| Blocos de concre | to | 1,3 tf/m³ | |||
| Parede | Tijolo Maciço kgf/m² | Tijolo Baiano kgf/m² | |||
| Espelho | 160 | 120 | |||
| 1/2 tij. | 240 | 180 | |||
| um tij. | 400 | 300 | |||
Bloco de concreto
| Espessura (cm) | Esp.Acabada (cm) | Peso kgf/m² |
| 9 | 12 | 170 |
| 14 | 17 | 240 |
| 19 | 22 | 300 |
Peso de cobertura
| Tipo de cobertura | Peso kgf/m² |
| Com telhas de barro e tesouras de madeira ι ≤ 40% | 70 |
| Com telhas onduladas de fibrocimento e estr. de madeira | 40 |
| Com telhas de alumínio e estr: aço... alumínio | 30 20 |
| Com canalete 90 e estr. de madeira | 35 |
TABELAS DE PESOS ESPECÍFICOS DE MATERIAIS USUAIS
Materiais soltos
| Material | Kg/m3 |
| Areia seca | 1300 a 1600 |
| Areia úmida | 1700 a 2300 |
| Areia fina sec | 1500 |
| Areia grossa seca | 1800 |
| Argila seca | 1600 a 1800 |
| Argila úmida | 1800 a 2100 |
| Cal hidratada | 1600 a 1800 |
| Cal hidráulica | 700 |
| Cal em pó | 1000 |
| Cal virgem | 1400 a 1600 |
| Cimento a granel | 1400 a 1600 |
| Cimento em sacos | 1200 |
| Gesso em pó | 1400 |
| Terra apiloada seca | 1000 a 1600 |
| Terra apiloada úmida | 1600 a 2000 |
| Terra arenosa | 1700 |
| Terra vegetal seca | 1200 a 1300 |
| Terra vegetal úmida | 1600 a 1800 |
| Entulhos de obra | 1500 |
Rochas e materiais rochosos ( peso específico aparente)
| Material | Kg/m3 |
| Ardósia | 2600 a 2700 |
| Arenito | 2100 a 2300 |
| Basalto | 1700 |
| Brita basáltica | 1700 |
| Brita calcárea | 1600 |
| Brita granítica | 1800 |
| Cascalho de rocha seco | 1500 |
| Cascalho de rocha úmido | 1800 a 2000 |
| Granito | 2600 a 3000 |
| Mármore | 2500 a 2800 |
| Pedra sabão | 2700 |
| Rocha marroada | 1600 a 1700 |
| Seixo arenoso | 1600 |
Revestimentos e concretos
| Material | Kg/m3 |
| Argamassa de cal | 2000 a 2200 |
| Argamassa cimento/cal/areia | 1900 |
| Argamassa cimento/areia | 2100 |
| Argamassa de cal e areia | 1700 |
| Concreto simples | 2400 |
| Concreto armado | 2500 |
| Concreto com argila expandida | 2000 |
| Concreto com brita de escória | 1500 |
Tabela de metais
288
| Material | Kg/m3 |
| Aço | 7800 |
| Alumínio | 2600 |
| Bronze | 8500 |
| Chumbo | 11300 |
| cobre | 8900 |
| Ferro forjado | 7900 |
| Ferro fundido | 7400 |
| Latão | 8500 |
| Zinco | 7200 |
Materiais diversos
| Material | Kg/m3 |
| Asfalto | 1600 a 2000 |
| Borracha para juntas | 1700 |
| Carvão mineral em pó | 700 |
| Carvão vegetal | 400 |
| Cortiça aglomerada | 400 |
| Cortiça natural | 240 |
| lenha | 500 |
| Papel | 1400 a 1600 |
| Plástico em chapa e canos | 2100 |
| Vidro | 2400 a 2600 |
Madeiras (com 15% de umidade)
| Material | Kg/m3 |
| Madeiras leves (cedro, jequitibá, pinho araucária, pinho de ripa e pinus heliotis) | Até 600 |
| Madeiras médias (canela, cerejeira, eucalipto, freijó, imbuia, louro, peroba do campo, pau marfim) | 600 a 750 |
| Madeiras duras (angico-vermelho , branco e preto, braúna, cabriuva, carvalho, ipê, jacarandá, maçaranduba, mogno, peroba rosa, e sucupira) | Acima de 750 |
TABELA PRÁTICA DE TRAÇOS DE CONCRETO
| TABELA DE TRAÇOS DE CONCRETO | ||||||||||||||||||||||
| Aconselha-se nos casos | Traço | Consumo de cimento p/ m3 de concreto | Consumo de areia p/ m3 de concreto | Consumo de brita e água por m3 de concreto | Resistência a compressão kg/cm2 (provável) | Altura das caixas (cm) | Nº de caixas por 1 saco de cimento | Fatores de água/cimento Cimento/água | Rendimento p/ saco de 50 kg | |||||||||||||
| Volume | Kg | Sacos de 50kg | Litros | Seca L | Num 3% L | Nº 1 L | Nº 2 L | Água L | 3 dias | 7 dias | 28 dias | Areia | Brita Nº 1 | Brita Nº 2 | Areia | Brita Nº 1 | Brita Nº 2 | L/k g | Kg/L | L/saco 50kg | Litros | |
| 1:1:2 | 500 | 10 | 363 | 363 | 465 | 363 | 363 | 226 | 220 | 300 | 400 | 28,7 | 22,4 | 22,4 | 1 | 1 | 1 | 0,44 | 2,27 | 2,20 | 97,7 | |
| 1:1/2:3 | 400 | 8 | 273 | 409 | 524 | 409 | 409 | 189 | 180 | 250 | 350 | 21,5 | 33,6 | 33,6 | 2 | 1 | 1 | 0,49 | 2,04 | 24,5 | 129,2 | |
| 1:2:21/2 | 375 | 7,5 | 264 | 525 | 676 | 330 | 330 | 206 | 140 | 200 | 300 | 28,7 | 28,1 | 28,1 | 2 | 1 | 1 | 0,55 | 1,82 | 27,5 | 133,2 | |
| Obras de responsabilidade | 1:2:3 | 350 | 1 | 243 | 486 | 622 | 364 | 364 | 210 | 110 | 170 | 250 | 28,7 | 33,6 | 33,6 | 2 | 1 | 1 | 0,61 | 1,84 | 30,5 | 145,5 |
| 1:21/2:3 | 300 | 6 | 225 | 362 | 719 | 331 | 331 | 207 | 100 | 150 | 220 | 23,9 | 33,6 | 33,6 | 3 | 1 | 0,65 | 1,54 | 32,5 | 187,9 | ||
| Colunas, Baldrames e Vigas Médias | 1:2:4 | 300 | 6 | 210 | 420 | 538 | 420 | 420 | 202 | 90 | 130 | 210 | 28,7 | 22,4 | 22,4 | 2 | 2 | 2 | 0,68 | 1,47 | 34,0 | 168,3 |
| 1:21/2:31/2 | 300 | 6 | 207 | 517 | 662 | 362 | 362 | 208 | 80 | 120 | 190 | 23,9 | 19,6 | 19,6 | 3 | 2 | 2 | 0,71 | 1,41 | 35,6 | 170,6 | |
| Estr. de Concr. Armado | 1:21/2:4 | 275 | 5,5 | 195 | 487 | 625 | 390 | 390 | 201 | 70 | 110 | 180 | 23,9 | 22,4 | 22,4 | 3 | 2 | 2 | 0,75 | 1,37 | 36,5 | 181,2 |
| Cintas de Amarração Vergas, Peq. Lages | 1:21/2:5 | 250 | 5 | 174 | 435 | 557 | 435 | 435 | 195 | 50 | 90 | 150 | 23,9 | 28,0 | 28,0 | 3 | 2 | 2 | 0,79 | 1,27 | 39,5 | 203,3 |
| 1:3:5 | 225 | 4,5 | 162 | 486 | 622 | 405 | 405 | 202 | 40 | 70 | 130 | 28,7 | 28,0 | 28,0 | 3 | 2 | 2 | 0,86 | 1,14 | 14,0 | 218,1 | |
| 1:3:8 | 200 | 4 | 147 | 441 | 561 | 441 | 441 | 198 | 50 | 50 | 100 | 28,7 | 33,6 | 33,6 | 3 | 2 | 2 | 0,95 | 1,05 | 17,5 | 240,9 | |
| Casos especiais, leitos e camadas preparatórias | 1:4:8 | 175 | 3,5 | 114 | 456 | 584 | 456 | 456 | 194 | 28,7 | 29,9 | 29,9 | 4 | 5 | 3 | 1,20 | 0,83 | 60,0 | 312,5 | |||
| As caixas para pedra e areia terão em todos os casos como medidas de boca 0,35 x 0,48 m |
290
TESOURAS, TERÇAS E PONTALETES
DET. ESPIGÃO
| Viga 6 x 16 | Viga 6 x 12 | Caibro 5 x 6 | Ripas 1 x 5(m) | ||||
| Quant. | Compr. (m) | Quant. | Compr. (m) | Quant. | Compr. (m) | 520,00 | |
| 01 (Pont.) | 2,5 | 01 | 2,50 | 24 | 2,50 | ||
| 03 (Pont.) 07 01(Berço) | 3,0 4,0 4,0 | 26 04 04 02 | 3,00 3,50 4,0 4,5 | 07 05 26 30 | 3,00 3,50 4,00 4,50 | ||
| Sarrafo 2,5 x 10,0 (m) | |||||||
| 03 | 5,0 | 15,00 |
CAIBROS
Obs. - Acrescentar 20cm em cada viga com emendas.
- Acrescentar 10cm em cada caibro com emendas.
- Ripas acrescentar 10%
- Sarrafo para travamento na linha da cumeeira.
RELAÇÃO DE MATERIAIS
REFERÊNCIAS BIBLIOGRÁFICAS
1 ASSOCIAÇÃO BRASILEIRA DE NORMAS TÉCNICAS. NBR 6118/1980 Projeto e execução de obras de concreto armado. Rio de Janeiro, 1980
2 ASSOCIAÇÃO BRASILEIRA DE NORMAS TÉCNICAS. NBR 8036/1993 Programação de sondagens de simples reconhecimento dos solos para fundação. Rio de Janeiro, 1993
3 BORGES, A. C. Prática das Pequenas Construções, 6a edição, 2 volumes. Editora Edgard Blucher. São Paulo,1992
4 BAUD, G. Manual de Construção. Editora Hemus. São Paulo, 1976
5 BAUER, L. A ,Falcão. Materiais de Construção. Editora Pini. São Paulo 1995
6 CARDÀO, Celso. Técnica da Construção. 4a edição. Editora Glob. Rio de Janeiro, 1969
7 DIAS, P.R.Vilela. Uma metodologia de Orçamentação para Obras Civis. 2a edição. Ed. Copiare. Curitiba/PR, 2000
8 FALCONI, F.F., et al. Fundações Teoria e prática. 2a edição. Editora Pini. São Paulo, 1998.
9 FUSCO, P.B., Técnica de armar as estruturas de concreto. Editora Pini. São Paulo, 1995.
10 LIMA, J.C.O. Sistema treliçado global - Boletim Técnico de Edifício. 9a edição. 1993
11 MELLO. F.Caio. Tesouras de Telhados. Editora Tecnoprint. 199612 MOLITERNO. Antonio. Caderno de Projetos de Telhados em Estrutura de Madeira.
1o volume. Editora Edgard Blucher. 1992
13 PIANCA, J. Batista. Manual do Construtor. 3a edição. 5 volumes. Editora Globo. Porto Alegre. 1974
14 RODRIGUES, P.P. Firme.et al. Pisos Indistriais de Concreto Armado. IBTS - Instituto Brasileiro de Telas Soldadas. São Paulo.
15 SAMPAIO, J. C Arruda. PCMAT. Programa de Condi'~oes e Meio Ambiente do Trabalho da Indústria da Construção. Editora Pini. São Paulo 1998.
16 SANTOS, Edvaldo G. Estruturas, desenhos de concreto armado.2 volumes. 4a edição. Editora Calcitec.
17 TERZIAN, P. Roberto. Detalhaes de execução - Fôrma e Ferragens. Apostila 4o Simpatcon. Campinas/SP, 1978.
18 YAZIGI, Walid. A técnica de Edificar. Editora Pini. São Paulo. 1998.
Outras Publicações:
Boletins Técnicos do IPT
Boletins Técnicos da ABCP
Revistas T'écnicas - Construção Mercado e Téchne - Editora Pini
Manual Técnico Blindex - Publicação ABESC
Manual de execução de Telhado - IPT
Manual de tipologia de Projeto e de Racionalização das Intervenções por ajuda mútua.
Jornal da AFALA - Associação dos Fabricantes de Lajes.

Nenhum comentário:
Postar um comentário